Valutazione immobiliare indipendente, accurata e gratuita
Appartamento in vendita a Molfetta a 69.000 € (cod.658e8525)
Caasa non ha sufficienti informazioni per commentare l'appartamento in vendita a Molfetta - 658e8525.
Analisi immobiliare
I dati in posseso di Caasa per quest'immobile sono insufficienti, inaffidabili o contraddittori per proporre un'analisi attendibile.
Mercato immobiliare a Molfetta
Per quanto riguarda più in generale la città di Molfetta, sono presenti al momento più di 300 annunci per
appartamenti in vendita (meno del 5% dell'intera provincia)
e il maggior numero di annunci per questa tipologia sono relativi alla zona di Centro Città.
Relativamente alla dinamica dei prezzi, possiamo dire che negli ultimi 6 mesi i prezzi medi in tutta la città per appartamenti in vendita sono
sostanzialmente stabili (+0,54%).
NOVITÀ Il risultato che vedi dipende dai dati che siamo riusciti ad estrarre dall'annuncio: ottieni una stima più accuranta di questo immobile, inserendo dati più precisi.
N.B. L'Opinione di Caasa® è un servizio sperimentale realizzato tramite tecniche di Intelligenza Artificiale, fornito senza alcuna garanzia di correttezza e completezza. Leggi il disclaimer o segnalaci un problema.
IMMAGINI
IN SINTESI
DESCRIZIONE
di recente ristrutturazione con balcone di recente ristrutturazione con terrazza
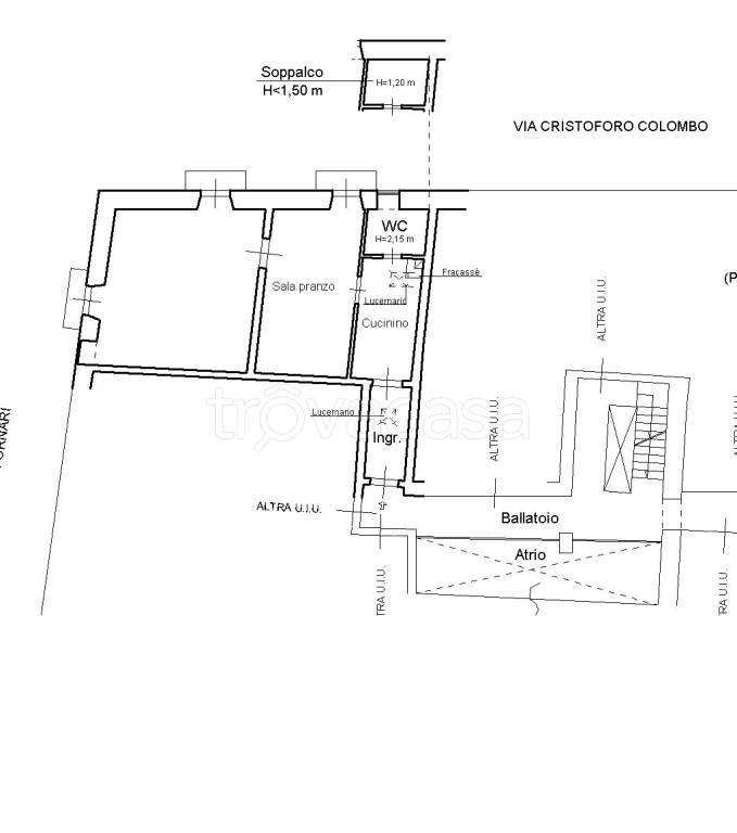
Appartamento in Vendita - Zona Centro Ponente** Scopri questo affascinante appartamento situato al secondo piano di un elegante stabile ristrutturato nel cuore della zona centro ponente. Con una superficie commerciale di 85 m², questo immobile offre due ampie stanze, perfette per creare spazi accoglienti e funzionali e la cucina, mentre il bagno è dotato di tutte le comodità necessarie. L'appartamento è libero e pronto per essere abitato, offrendo la possibilità di personalizzazione in base alle proprie esigenze. Goditi il tuo tempo libero sul balcone, spazi ideali per rilassarsi all'aria aperta. Contattaci per maggiori dettagli e per organizzare una visita. Questo appartamento è l'ideale per chi cerca un ambiente accogliente e pronto per essere personalizzato secondo il proprio stile di vita

