Valutazione immobiliare indipendente, accurata e gratuita
Appartamento in vendita a Mola di Bari a 89.387 € (cod.6534b046)
Caasa non ha sufficienti informazioni per commentare l'appartamento in vendita a Mola di Bari - 6534b046.
Analisi immobiliare
I dati in posseso di Caasa per quest'immobile sono insufficienti, inaffidabili o contraddittori per proporre un'analisi attendibile.
Mercato immobiliare a Mola di Bari
Per quanto riguarda più in generale la città di Mola di Bari, sono presenti al momento più di 200 annunci per
appartamenti in vendita (meno del 5% dell'intera provincia) .
Possiamo inoltre considerare che in tutta la città negli ultimi 6 mesi, i prezzi per appartamenti in vendita sono
in debole aumento (+2,18%).
NOVITÀ Il risultato che vedi dipende dai dati che siamo riusciti ad estrarre dall'annuncio: ottieni una stima più accuranta di questo immobile, inserendo dati più precisi.
N.B. L'Opinione di Caasa® è un servizio sperimentale realizzato tramite tecniche di Intelligenza Artificiale, fornito senza alcuna garanzia di correttezza e completezza. Leggi il disclaimer o segnalaci un problema.
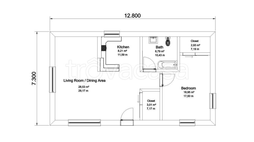
IMMAGINI
IN SINTESI
PROPOSTO DA:
Simplex Domus S.R.L.
DESCRIZIONE
di nuova costruzione in asta giudiziaria di nuova costruzione
Asta appartamento a Mola di Bari (BA) [SY598107] Via Papa Giovanni XXIII, 81, 70042 Mola di Bari BA, Italia Abitazione economica composta da piano terra, interrato e ammezzato. Dall’ingresso/soggiorno si accede al resto dell’abitazione composta al pi […]
