Valutazione immobiliare indipendente, accurata e gratuita
Appartamento in vendita a Mola di Bari a 74.250 € (cod.6534afe5)
Caasa non ha sufficienti informazioni per commentare l'appartamento in vendita a Mola di Bari - 6534afe5.
Analisi immobiliare
I dati in posseso di Caasa per quest'immobile sono insufficienti, inaffidabili o contraddittori per proporre un'analisi attendibile.
Mercato immobiliare a Mola di Bari
Per quanto riguarda più in generale la città di Mola di Bari, sono presenti al momento più di 200 annunci per
appartamenti in vendita (meno del 5% dell'intera provincia) .
Relativamente alla dinamica dei prezzi, possiamo dire che negli ultimi 6 mesi i prezzi medi in tutta la città per appartamenti in vendita sono
in debole aumento (+2,18%).
NOVITÀ Il risultato che vedi dipende dai dati che siamo riusciti ad estrarre dall'annuncio: ottieni una stima più accuranta di questo immobile, inserendo dati più precisi.
N.B. L'Opinione di Caasa® è un servizio sperimentale realizzato tramite tecniche di Intelligenza Artificiale, fornito senza alcuna garanzia di correttezza e completezza. Leggi il disclaimer o segnalaci un problema.
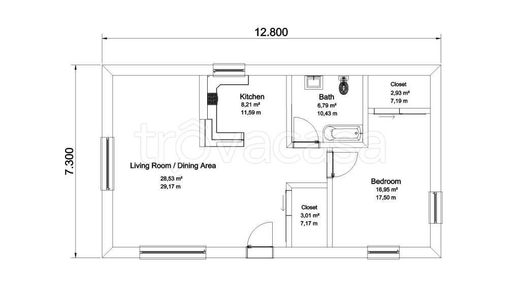
IMMAGINI
IN SINTESI
PROPOSTO DA:
Centro Aste Bari
DESCRIZIONE
di nuova costruzione in asta giudiziaria di nuova costruzione
Asta appartamento a Mola di Bari (BA) [SY600178] Via L. Ariosto, 126, 70042 Mola di Bari BA, Italia Appartamento al secondo piano. Superficie Commerciale mq 66. Proposta immobiliare in asta. Info dettagliate in agenzia o telefonicamente. Possibilita’ […]
