Valutazione immobiliare indipendente, accurata e gratuita
Appartamento in vendita a Modugno a 73.425 € (cod.6562b8af)
Caasa non ha sufficienti informazioni per commentare l'appartamento in vendita a Modugno - 6562b8af.
Analisi immobiliare
I dati in posseso di Caasa per quest'immobile sono insufficienti, inaffidabili o contraddittori per proporre un'analisi attendibile.
Mercato immobiliare a Modugno
Per quanto riguarda più in generale la città di Modugno, sono presenti al momento oltre 500 annunci per
appartamenti in vendita (meno del 5% dell'intera provincia) .
La dinamica dei prezzi in tutta la città mostra che negli ultimi 6 mesi, i prezzi per appartamenti in vendita sono
in sostanziale aumento (+5,08%).
NOVITÀ Il risultato che vedi dipende dai dati che siamo riusciti ad estrarre dall'annuncio: ottieni una stima più accuranta di questo immobile, inserendo dati più precisi.
N.B. L'Opinione di Caasa® è un servizio sperimentale realizzato tramite tecniche di Intelligenza Artificiale, fornito senza alcuna garanzia di correttezza e completezza. Leggi il disclaimer o segnalaci un problema.
IMMAGINI
IN SINTESI
DESCRIZIONE
di nuova costruzione di nuova costruzione con cantina in asta giudiziaria
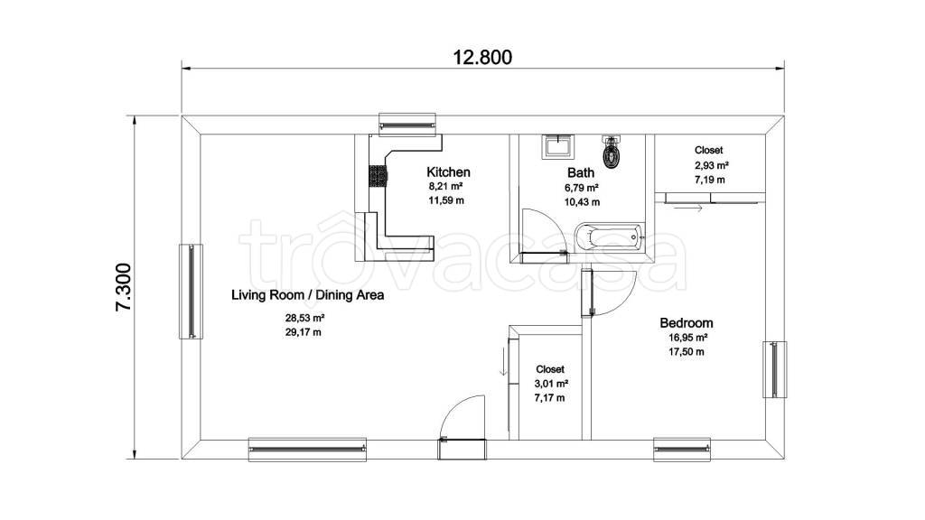
Asta appartamento a Modugno (BA) [SY603271] Via Porto Torres, 78, 70026 Modugno BA, Italia Appartamento al primo piano costituito da un ingresso in soggiorno e cucinino; dal corridoio posto sulla destra dell’ingresso si accede al servizio igienico, a […]
