Valutazione immobiliare indipendente, accurata e gratuita
L'Opinione di Caasa® per l'appartamento in vendita a Locorotondo a 200.000 € (cod.6552c153)
Secondo Caasa, per l'appartamento in vendita a Locorotondo, la richiesta di 200.000 € è significativamente svantaggiosa rispetto agli annunci simili.
Analisi immobiliare
L'appartamento, situato nella zona OMI B4, è proposto in vendita (da Affiliato tecnocasa: studio la fenice) a
200.000 € per una
superficie commerciale di
85 m² e quindi ad un prezzo per metro quadrato pari a
2352 €/m²
.
Tale valore
è decisamente superiore a quello stimato da Caasa per immobili in vendita simili per tipologia, caratteristiche, classe energetica e localizzati nella stessa zona OMI, che è compreso tra
1.660 €/m² e
1.843 €/m².
La conoscenza con buona approssimazione della localizzazione dell'immobile ha consentito di utilizzare come raffronto i dati medi elaborati esattamente nella zona OMI di appertenenza (VIE:E.DE NICOLA, GORIZ, CISTERNINO, DE GASPERI, P.ZZA MARCONI, MARTINA FRANCA...). Inoltre, Caasa ha potuto affinare la stima anche con la conoscenza della classe energetica (F) oltre che dello stato dell'immobile (da ristrutturare) e di alcune caratteristiche significative come il garage. Per queste considerazioni i valori accettabili per l'offerta costituiscono un intervallo abbastanza limitato.
Mercato immobiliare a Locorotondo
Per quanto riguarda più in generale il comune di Locorotondo, sono presenti al momento più di 150 annunci per
appartamenti in vendita (meno del 5% dell'intera provincia) .
La dinamica dei prezzi in tutto il comune mostra che negli ultimi 6 mesi, i prezzi per appartamenti in vendita sono
sostanzialmente stabili (-0,07%).
NOVITÀ Il risultato che vedi dipende dai dati che siamo riusciti ad estrarre dall'annuncio: ottieni una stima più accuranta di questo immobile, inserendo dati più precisi.
N.B. L'Opinione di Caasa® è un servizio sperimentale realizzato tramite tecniche di Intelligenza Artificiale, fornito senza alcuna garanzia di correttezza e completezza. Leggi il disclaimer o segnalaci un problema.
IMMAGINI
IN SINTESI
PROPOSTO DA:
Affiliato tecnocasa: studio la fenice
Corso xx settembre 102, Locorotondo (BA)
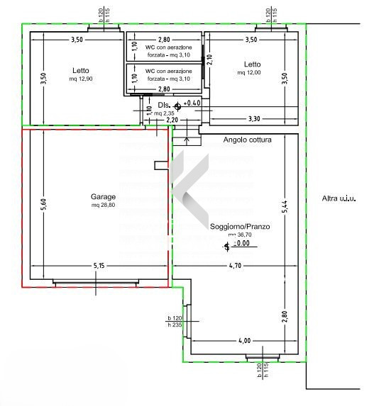
DESCRIZIONE
da ristrutturare da ristrutturare con termocondizionamento con angolo cottura con posto auto senza ascensore con garage con riscaldamento autonomo
In posizione centrale, a pochi passi dal cuore di Locorotondo, proponiamo in vendita un comodissimo appartamento al piano terra, attualmente in fase di ristrutturazione, ideale per chi cerca comfort, modernità e praticità. L'immobile si apre su un luminoso soggiorno-pranzo open space, perfetto per la vita quotidiana e si completa con due camere da letto, due bagni e un comodo garage a piano strada, un valore aggiunto raro e prezioso in zona centrale. La ristrutturazione prevede rifiniture di alto livello, pensate per garantire benessere, sicurezza ed efficienza energetica: -Infissi Nurith motorizzati con tapparelle coibentate e motorizzate -Portone d'ingresso blindato e porta di servizio interna blindata -Saracinesca del garage motorizzata con telecomando -Porte interne a scrigno per i bagni e porte a battente in laminato per le camere -Pavimentazione SPC water resistant, elegante e resistente -Climatizzazione canalizzata e riscaldamento con pompa di calore, distribuiti in tutte le stanze Una soluzione abitativa chiavi in mano, perfetta per chi desidera vivere il centro senza rinunciare a comfort moderni e spazi funzionali





