Valutazione immobiliare indipendente, accurata e gratuita
L'Opinione di Caasa® per la casa indipendente in vendita a Locorotondo a 135.000 € (cod.64f2baad)
Secondo Caasa, per la casa indipendente in vendita a Locorotondo, la richiesta di 135.000 € è leggermente vantaggiosa rispetto agli annunci simili.
Analisi immobiliare
La casa indipendente, situata nella zona OMI B1, è proposta in vendita (da Affiliato tecnocasa: studio la fenice) a
135.000 € per una
superficie commerciale di
85 m² e quindi ad un prezzo per metro quadrato pari a
1588 €/m²
.
Tale prezzo
è di poco inferiore a quello stimato da Caasa per immobili in vendita simili per tipologia, caratteristiche, classe energetica e localizzati nella stessa zona OMI, che è compreso tra
1.637 €/m² e
1.902 €/m².
La conoscenza con buona approssimazione della localizzazione dell'immobile ha consentito di utilizzare come raffronto i dati medi elaborati esattamente nella zona OMI di appertenenza (CENTRO STORICO - VIE:NARDELLI, S.D ACQUISTO, CISTERNINO, MARTINA FRANCA.). Inoltre, Caasa ha potuto affinare la stima anche con la conoscenza della classe energetica (G) oltre che dello stato dell'immobile (da ristrutturare). Per questi motivi i valori accettabili per l'offerta costituiscono un intervallo abbastanza limitato.
Mercato immobiliare a Locorotondo
Per quanto riguarda più in generale il comune di Locorotondo, sono presenti al momento più di 200 annunci per
case indipendenti in vendita (meno del 5% dell'intera provincia) .
Relativamente alla dinamica dei prezzi, possiamo dire che negli ultimi 6 mesi i prezzi medi in tutto il comune per case indipendenti in vendita sono
sostanzialmente stabili (+1,12%).
NOVITÀ Il risultato che vedi dipende dai dati che siamo riusciti ad estrarre dall'annuncio: ottieni una stima più accuranta di questo immobile, inserendo dati più precisi.
N.B. L'Opinione di Caasa® è un servizio sperimentale realizzato tramite tecniche di Intelligenza Artificiale, fornito senza alcuna garanzia di correttezza e completezza. Leggi il disclaimer o segnalaci un problema.
IMMAGINI
IN SINTESI
PROPOSTO DA:
Affiliato tecnocasa: studio la fenice
Corso xx settembre 102, Locorotondo (BA)
DESCRIZIONE
da ristrutturare da ristrutturare con terrazza senza ascensore con balcone per vacanza
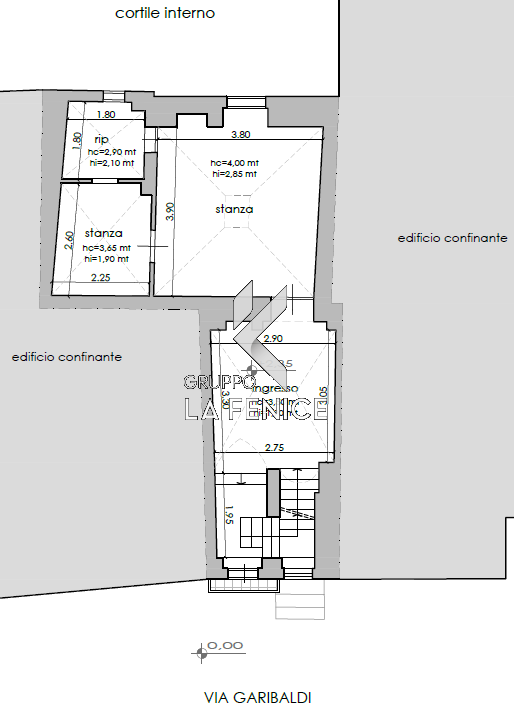
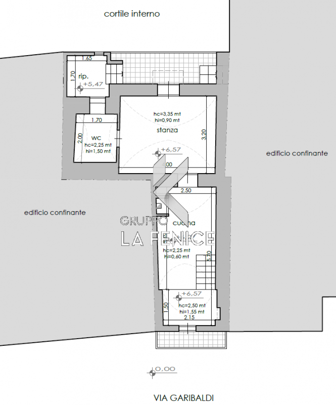
Via Garibaldi, nel cuore del centro storico di Locorotondo, in uno dei bianchi e caratteristici vicoli, proponiamo in vendita tipica casa in pietra, indipendente e da ristrutturare, con vista panoramica ed affaccio suggestivo sulla Valle d'Itria. ideale da adibire a casa vacanza o da destinare ad investimento. L'immobile è suddiviso sue due livelli. Accediamo tramite una scala di ingresso, che ci conduce al piano primo in cui troviamo: zona d'ingresso con soffitto con volte a stella, una stanza comoda con finestra e con soffitto a botte, ulteriore stanza piccola e vano da poter adibire a bagno. La zona d'ingresso è dotata di balcone che ha affaccio su via Garibaldi. Tramite una scala interna, si giunge al secondo ed ultimo piano dove troviamo due stanze a cummersa e bagno. Una delle due stanze è dotato di un balcone con affaccio panoramico su via Nardelli e sul paesaggio della Valle d'Itria. L'immobile necessita di lavori di ristrutturazione ed è dotato di allaccio ad utenze acqua e fogna






