Valutazione immobiliare indipendente, accurata e gratuita
Casa indipendente in vendita a Grumo Appula a 35.700 € (cod.6539bd45)
Caasa non ha sufficienti informazioni per commentare la casa indipendente in vendita a Grumo Appula - 6539bd45.
Analisi immobiliare
I dati in posseso di Caasa per quest'immobile sono insufficienti, inaffidabili o contraddittori per proporre un'analisi attendibile.
Mercato immobiliare a Grumo Appula
Per quanto riguarda più in generale il comune di Grumo Appula, sono presenti al momento circa cento annunci per
case indipendenti in vendita (meno dell'1% dell'intera provincia) .
Relativamente alla dinamica dei prezzi, possiamo dire che negli ultimi 6 mesi i prezzi medi in tutto il comune per case indipendenti in vendita sono
in sostanziale calo (-5,69%).
NOVITÀ Il risultato che vedi dipende dai dati che siamo riusciti ad estrarre dall'annuncio: ottieni una stima più accuranta di questo immobile, inserendo dati più precisi.
N.B. L'Opinione di Caasa® è un servizio sperimentale realizzato tramite tecniche di Intelligenza Artificiale, fornito senza alcuna garanzia di correttezza e completezza. Leggi il disclaimer o segnalaci un problema.
IMMAGINI
IN SINTESI
PROPOSTO DA:
Centro Aste Bari
DESCRIZIONE
di nuova costruzione in asta giudiziaria di nuova costruzione con giardino
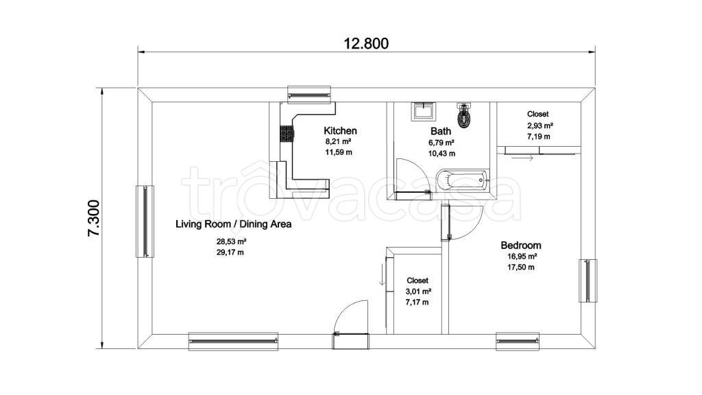
Asta appartamento a Grumo Appula (BA) [SY480215] Via Clivie, 70025 Villaggio Quadrifoglio BA, Italia Villino al piano terra, nel “Villaggio il Quadrifoglio” vani 4,5, superficie catastale totale 68 mq, totale escluse aree scoperte 53 mq Proposta immo […]
