Valutazione immobiliare indipendente, accurata e gratuita
Appartamento in vendita a Grumo Appula a 40.905 € (cod.65348eed)
Caasa non ha sufficienti informazioni per commentare l'appartamento in vendita a Grumo Appula - 65348eed.
Analisi immobiliare
I dati in posseso di Caasa per quest'immobile sono insufficienti, inaffidabili o contraddittori per proporre un'analisi attendibile.
Mercato immobiliare a Grumo Appula
Per quanto riguarda più in generale il comune di Grumo Appula, sono presenti al momento più di cento annunci per
appartamenti in vendita (meno dell'1% dell'intera provincia) .
Relativamente alla dinamica dei prezzi, possiamo dire che negli ultimi 6 mesi i prezzi medi in tutto il comune per appartamenti in vendita sono
in deciso aumento (+9,95%).
NOVITÀ Il risultato che vedi dipende dai dati che siamo riusciti ad estrarre dall'annuncio: ottieni una stima più accuranta di questo immobile, inserendo dati più precisi.
N.B. L'Opinione di Caasa® è un servizio sperimentale realizzato tramite tecniche di Intelligenza Artificiale, fornito senza alcuna garanzia di correttezza e completezza. Leggi il disclaimer o segnalaci un problema.
IMMAGINI
IN SINTESI
PROPOSTO DA:
Centro Aste Bari
DESCRIZIONE
di nuova costruzione in asta giudiziaria di nuova costruzione con cucina abitabile
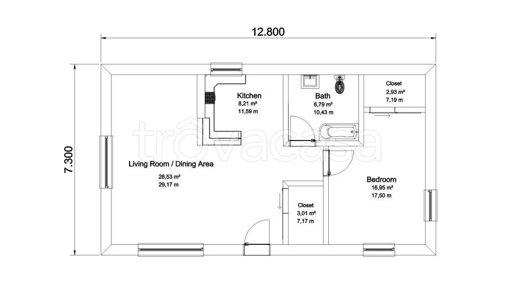
Asta appartamento a Grumo Appula (BA) [SY587456] Via Ciancio Stefano, 26, 70025 Grumo Appula BA, Italia Piena proprietà di appartamento allo stato dei luoghi composto da un salone, cucina abitabile, 1 bagni, 1 camera da letto matrimoniale ed un’altra […]
