Valutazione immobiliare indipendente, accurata e gratuita
Appartamento in vendita a Gioia del Colle a 30.501 € (cod.6539bd41)
Caasa non ha sufficienti informazioni per commentare l'appartamento in vendita a Gioia del Colle - 6539bd41.
Analisi immobiliare
I dati in posseso di Caasa per quest'immobile sono insufficienti, inaffidabili o contraddittori per proporre un'analisi attendibile.
Mercato immobiliare a Gioia del Colle
Per quanto riguarda più in generale la città di Gioia del Colle, sono presenti al momento più di 300 annunci per
appartamenti in vendita (meno del 5% dell'intera provincia) .
Relativamente alla dinamica dei prezzi, possiamo dire che negli ultimi 6 mesi i prezzi medi in tutta la città per appartamenti in vendita sono
in debole diminuzione (-1,64%).
NOVITÀ Il risultato che vedi dipende dai dati che siamo riusciti ad estrarre dall'annuncio: ottieni una stima più accuranta di questo immobile, inserendo dati più precisi.
N.B. L'Opinione di Caasa® è un servizio sperimentale realizzato tramite tecniche di Intelligenza Artificiale, fornito senza alcuna garanzia di correttezza e completezza. Leggi il disclaimer o segnalaci un problema.
IMMAGINI
IN SINTESI
PROPOSTO DA:
Centro Aste Firenze
DESCRIZIONE
di nuova costruzione con cantina in asta giudiziaria di nuova costruzione
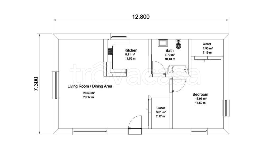
Asta appartamento a Gioia del Colle (BA) [SY424780] Piazza Don Luigi Sturzo, 6, 70023 Gioia del Colle BA, Italia Piena proprietà di appartamento situato al piano secondo composto da ingresso, 3 vani, cucina, ripostiglio, bagno, due balconi parzialmen […]
