Valutazione immobiliare indipendente, accurata e gratuita
Appartamento in vendita a Corato a 32.112 € (cod.6562c4e6)
Caasa non ha sufficienti informazioni per commentare l'appartamento in vendita a Corato - 6562c4e6.
Analisi immobiliare
I dati in posseso di Caasa per quest'immobile sono insufficienti, inaffidabili o contraddittori per proporre un'analisi attendibile.
Mercato immobiliare a Corato
Per quanto riguarda più in generale la città di Corato, sono presenti al momento più di 300 annunci per
appartamenti in vendita (meno del 5% dell'intera provincia)
e il maggior numero di annunci per questa tipologia sono relativi alla zona di Centro Storico.
Possiamo inoltre considerare che in tutta la città negli ultimi 6 mesi, i prezzi per appartamenti in vendita sono
in sostanziale calo (-5,91%).
NOVITÀ Il risultato che vedi dipende dai dati che siamo riusciti ad estrarre dall'annuncio: ottieni una stima più accuranta di questo immobile, inserendo dati più precisi.
N.B. L'Opinione di Caasa® è un servizio sperimentale realizzato tramite tecniche di Intelligenza Artificiale, fornito senza alcuna garanzia di correttezza e completezza. Leggi il disclaimer o segnalaci un problema.
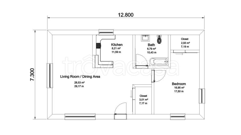
IMMAGINI
IN SINTESI
DESCRIZIONE
di nuova costruzione in asta giudiziaria di nuova costruzione
Asta appartamento a Corato (BA) [SY604747] Via A. Scacchi, 16, 70033 Corato BA, Italia Piena Proprietà per la quota di 1/1 di appartamento ubicato in Corato alla Via Arcangelo Scacchi n.16, piano secondo, della superficie di mq. 53,60. Proposta immob […]
