Valutazione immobiliare indipendente, accurata e gratuita
Appartamento in vendita a Conversano a 89.250 € (cod.6539a1d8)
Caasa non ha sufficienti informazioni per commentare l'appartamento in vendita a Conversano - 6539a1d8.
Analisi immobiliare
I dati in posseso di Caasa per quest'immobile sono insufficienti, inaffidabili o contraddittori per proporre un'analisi attendibile.
Mercato immobiliare a Conversano
Per quanto riguarda più in generale la città di Conversano, sono presenti al momento più di 200 annunci per
appartamenti in vendita (meno del 5% dell'intera provincia) .
Per quanto riguarda la dinamica dei prezzi, negli ultimi 6 mesi i prezzi medi in tutta la città per appartamenti in vendita sono
in leggera diminuzione (-2,72%).
NOVITÀ Il risultato che vedi dipende dai dati che siamo riusciti ad estrarre dall'annuncio: ottieni una stima più accuranta di questo immobile, inserendo dati più precisi.
N.B. L'Opinione di Caasa® è un servizio sperimentale realizzato tramite tecniche di Intelligenza Artificiale, fornito senza alcuna garanzia di correttezza e completezza. Leggi il disclaimer o segnalaci un problema.
IMMAGINI
IN SINTESI
PROPOSTO DA:
Centro Aste Bari
DESCRIZIONE
di nuova costruzione con balcone con cantina di nuova costruzione in asta giudiziaria
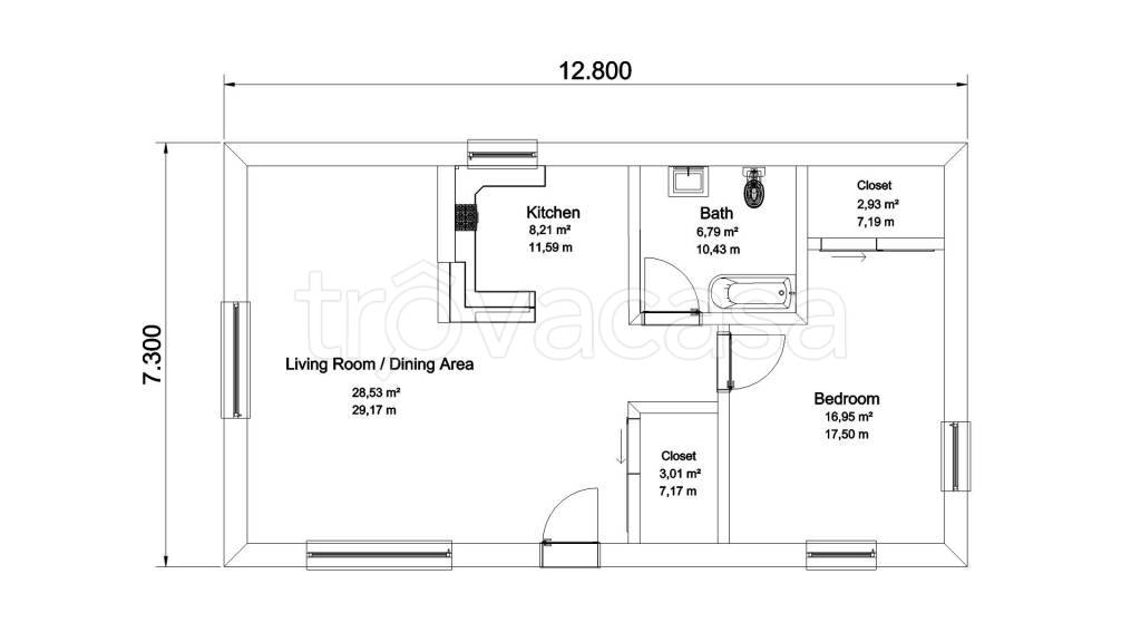
Asta appartamento a Conversano (BA) [SY597028] Via Gian Battista Vico, 10, 70014 Conversano BA, Italia Abitazione al piano primo, della superficie di mq 109,00, oltre mq 6,70 di balconi. L’appartamento è organizzato con ampio disimpegno prospicente l […]
