Valutazione immobiliare indipendente, accurata e gratuita
Appartamento in vendita a Conversano a 170.000 € (cod.651b6b3f)
Caasa non ha sufficienti informazioni per commentare l'appartamento in vendita a Conversano - 651b6b3f.
Analisi immobiliare
I dati in posseso di Caasa per quest'immobile sono insufficienti, inaffidabili o contraddittori per proporre un'analisi attendibile.
Mercato immobiliare a Conversano
Per quanto riguarda più in generale la città di Conversano, sono presenti al momento più di 200 annunci per
appartamenti in vendita (meno del 5% dell'intera provincia) .
La dinamica dei prezzi in tutta la città mostra che negli ultimi 6 mesi, i prezzi per appartamenti in vendita sono
in leggera diminuzione (-2,72%).
NOVITÀ Il risultato che vedi dipende dai dati che siamo riusciti ad estrarre dall'annuncio: ottieni una stima più accuranta di questo immobile, inserendo dati più precisi.
N.B. L'Opinione di Caasa® è un servizio sperimentale realizzato tramite tecniche di Intelligenza Artificiale, fornito senza alcuna garanzia di correttezza e completezza. Leggi il disclaimer o segnalaci un problema.
IMMAGINI
IN SINTESI
DESCRIZIONE
di nuova costruzione con terrazza con balcone di nuova costruzione con angolo cottura
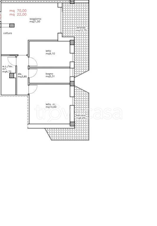
Ref. CN 117C Nel cuore raffinato di Conversano, a pochi passi da tutti i servizi, dai principali punti d’interesse e dalle suggestive vie del centro storico, nasce una nuova ed esclusiva realizzazione residenziale pensata per offrire comfort moderno, qualità costruttiva e spazi perfettamente distribuiti. L’appartamento, posto al secondo piano, si estende su circa 70 mq interni e colpisce sin dall’ingresso per la luminosità e la funzionalità degli ambienti. La zona living ospita un elegante soggiorno con angolo cottura di oltre 21 mq, un ambiente ampio e accogliente che si affaccia direttamente sulla splendida veranda esterna di circa 13 mq, perfetta per cene all’aperto, momenti di relax e come naturale estensione della zona giorno. La zona notte è composta da due camere: una camera matrimoniale di 14 mq con accesso al balcone privato da 9 mq e una seconda camera ideale come cameretta, studio o stanza ospiti. Completano l’abitazione due bagni: un comodo bagno principale e un pratico w.c./lavanderia, insieme a un disimpegno ben organizzato. Gli spazi esterni della casa, tra veranda e balcone, aggiungono valore e vivibilità, rendendo questa soluzione ideale sia per chi cerca una prima casa moderna, sia per chi desidera un investimento di qualità nel cuore della città. La palazzina, di recentissima costruzione, si distingue per efficienza energetica, design contemporaneo e attenzione ai dettagli: un contesto esclusivo dove vivere con stile, tranquillità e massimo comfort. Un’opportunità imperdibile per chi sogna una casa nuova in pieno centro senza rinunciare a spazi aperti e qualità costruttiva. INTERNO: L'IMMOBILE E' DI NUOVA REALIZZAZIONE ESTERNO: L'IMMOBILE E' DI NUOVA REALIZZAZIONE POSIZIONE: NEL CENTRO ABITATO DI CONVERSANO A DUE PASSI DA SCUOLE E PRINCIPALI SERVIZI QUATTRO BUONI MOTIVI PER SCEGLIERE QUESTO IMMOBILE: METRATURE COMODE NUOVA REALIZZAZIONE POSIZIONE CENTRALE CAPITOLATO A SCELTA Per avere ulteriori informazioni potete contattarci senza impegno

