Valutazione immobiliare indipendente, accurata e gratuita
Casa indipendente in vendita a Cassano delle Murge a 322.275 € (cod.6539bd58)
Caasa non ha sufficienti informazioni per commentare la casa indipendente in vendita a Cassano delle Murge - 6539bd58.
Analisi immobiliare
I dati in posseso di Caasa per quest'immobile sono insufficienti, inaffidabili o contraddittori per proporre un'analisi attendibile.
Mercato immobiliare a Cassano delle Murge
Per quanto riguarda più in generale la città di Cassano delle Murge, sono presenti al momento oltre 500 annunci per
case indipendenti in vendita (meno del 10% dell'intera provincia) .
Per quanto riguarda la dinamica dei prezzi, negli ultimi 6 mesi i prezzi medi in tutta la città per case indipendenti in vendita sono
in aumento (+3,80%).
NOVITÀ Il risultato che vedi dipende dai dati che siamo riusciti ad estrarre dall'annuncio: ottieni una stima più accuranta di questo immobile, inserendo dati più precisi.
N.B. L'Opinione di Caasa® è un servizio sperimentale realizzato tramite tecniche di Intelligenza Artificiale, fornito senza alcuna garanzia di correttezza e completezza. Leggi il disclaimer o segnalaci un problema.
IMMAGINI
IN SINTESI
PROPOSTO DA:
Simplex Domus S.R.L.
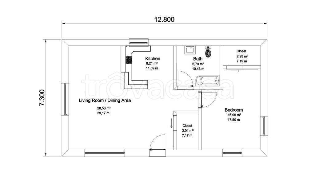
DESCRIZIONE
di nuova costruzione con posto auto con giardino con garage in asta giudiziaria di nuova costruzione
Asta appartamento a Cassano delle Murge (BA) [SY596387] Via Bitetto, 70020 Cassano delle Murge BA, Italia Intero fabbricato da terra a cielo con circostante giardino composto da: appartamento al piano terra e primo nonché sottotetto al secondo piano […]
