Valutazione immobiliare indipendente, accurata e gratuita
Appartamento in vendita a Casamassima a 32.845 € (cod.6562c501)
Caasa non ha sufficienti informazioni per commentare l'appartamento in vendita a Casamassima - 6562c501.
Analisi immobiliare
I dati in posseso di Caasa per quest'immobile sono insufficienti, inaffidabili o contraddittori per proporre un'analisi attendibile.
Mercato immobiliare a Casamassima
Per quanto riguarda più in generale la città di Casamassima, sono presenti al momento più di 300 annunci per
appartamenti in vendita (meno del 5% dell'intera provincia) .
Relativamente alla dinamica dei prezzi, possiamo dire che negli ultimi 6 mesi i prezzi medi in tutta la città per appartamenti in vendita sono
in forte aumento (+18,39%).
NOVITÀ Il risultato che vedi dipende dai dati che siamo riusciti ad estrarre dall'annuncio: ottieni una stima più accuranta di questo immobile, inserendo dati più precisi.
N.B. L'Opinione di Caasa® è un servizio sperimentale realizzato tramite tecniche di Intelligenza Artificiale, fornito senza alcuna garanzia di correttezza e completezza. Leggi il disclaimer o segnalaci un problema.
IMMAGINI
IN SINTESI
DESCRIZIONE
di nuova costruzione di nuova costruzione con angolo cottura in asta giudiziaria
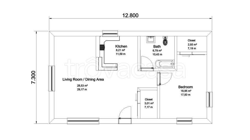
Asta appartamento a Casamassima (BA) [SY545242] Via Don Giuseppe Mazzone, 38, 70010 Casamassima BA, Italia Appartamento al piano terra composto da soggiorno pranzo angolo cottura, bagno e camera da letto oltre ad antistante e retrostante area pertine […]
