Valutazione immobiliare indipendente, accurata e gratuita
L'Opinione di Caasa® per l'appartamento in vendita a Casamassima a 284.433 € (cod.650b3001)
Secondo Caasa, per l'appartamento in vendita a Casamassima, la richiesta di 284.433 € è significativamente svantaggiosa rispetto agli annunci simili.
Analisi immobiliare
L'appartamento è proposto in vendita (da Tecnocasa Casamassima) a
284.433 € per una
superficie commerciale di
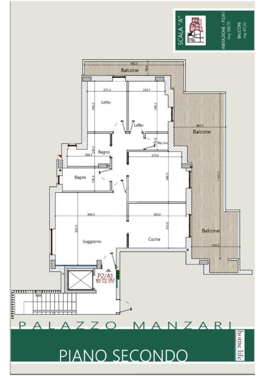
108 m² e quindi ad un prezzo per metro quadrato pari a
2633 €/m²
.
Tale prezzo
è meno conveniente di quello stimato da Caasa per immobili in vendita simili per tipologia, caratteristiche e classe energetica, che è compreso tra
1.937 €/m² e
2.179 €/m².
Sono stati utilizzati in raffronto i soli valori medi cittadini per appartamenti (da 1.215 €/m² a 2.335 €/m²) e per quadrivani (da 1.100 €/m² a 2.320 €/m²), visto che non è stato possibile determinare in modo affidabile la posizione dell'immobile. All'elaborazione della stima ha però contribuito anche la classe energetica (A+) oltre alla condizione dell'immobile (di nuova costruzione). Per questi motivi i valori considerati accettabili per l'offerta costituiscono un intervallo comunque ampio.
Mercato immobiliare a Casamassima
Per quanto riguarda più in generale la città di Casamassima, sono presenti al momento più di 300 annunci per
appartamenti in vendita (meno del 5% dell'intera provincia) .
Relativamente alla dinamica dei prezzi, possiamo dire che negli ultimi 6 mesi i prezzi medi in tutta la città per appartamenti in vendita sono
in forte aumento (+16,31%).
NOVITÀ Il risultato che vedi dipende dai dati che siamo riusciti ad estrarre dall'annuncio: ottieni una stima più accuranta di questo immobile, inserendo dati più precisi.
N.B. L'Opinione di Caasa® è un servizio sperimentale realizzato tramite tecniche di Intelligenza Artificiale, fornito senza alcuna garanzia di correttezza e completezza. Leggi il disclaimer o segnalaci un problema.
IMMAGINI
IN SINTESI
PROPOSTO DA:
Tecnocasa Casamassima
Corso Vittorio Emanuele, 1/3, Casamassima (BA)
Verificata da Caasa®
DESCRIZIONE
di nuova costruzione di nuova costruzione con cucina abitabile con termocondizionamento con riscaldamento autonomo
Nel cuore del comune di Casamassima, proponiamo un appartamento di nuova costruzione, disponibile per la vendita. Situato al piano medio di un moderno complesso residenziale, l'immobile si estende su una superficie di 108 mq, offrendo spazi ben distribuiti e funzionali. L'appartamento è composto da quattro locali, ideali per accogliere una famiglia o per chi desidera ampi spazi abitativi. La disposizione interna prevede un soggiorno luminoso, una cucina abitabile, due camere da letto e un bagno. La costruzione, prevista per il 2026, rispetta le normative vigenti in materia di efficienza energetica e sostenibilità ambientale. Gli immobili verranno realizzati con rifiniture di pregio, materiale di ottima qualità ma soprattutto con massimi standard di efficienza energetica con l'installazione di impianti fotovoltaici per la promozione delle fonti rinnovabili. Saranno provvisti di impermealizzazione e coibentazione del lastrico solare, riscaldamento autonomo a pavimento a pompa di calore, serbatoio acqua calda con capacità pari a 150 litri, impianto fotovoltaico di 1 kW, predisposizione aria condizionata canalizzata, predisposizione impianto allarme volumetrico, predisposizione della fibra ottica, porte blindate, porte interne bianche lisce, infissi in legno o alluminio a taglio termico con vetro camera basso emissivo, tapparelle elettriche


