Valutazione immobiliare indipendente, accurata e gratuita
Appartamento in vendita a Bitonto a 185.250 € (cod.659918b9)
Caasa non ha sufficienti informazioni per commentare l'appartamento in vendita a Bitonto - 659918b9.
Analisi immobiliare
I dati in posseso di Caasa per quest'immobile sono insufficienti, inaffidabili o contraddittori per proporre un'analisi attendibile.
Mercato immobiliare a Bitonto
Per quanto riguarda più in generale la città di Bitonto, sono presenti al momento quasi 500 annunci per
appartamenti in vendita (meno del 5% dell'intera provincia)
e il maggior numero di annunci per questa tipologia sono relativi alla zona di Borgo Antico.
Relativamente alla dinamica dei prezzi, possiamo dire che negli ultimi 6 mesi i prezzi medi in tutta la città per appartamenti in vendita sono
sostanzialmente stabili (-0,94%).
NOVITÀ Il risultato che vedi dipende dai dati che siamo riusciti ad estrarre dall'annuncio: ottieni una stima più accuranta di questo immobile, inserendo dati più precisi.
N.B. L'Opinione di Caasa® è un servizio sperimentale realizzato tramite tecniche di Intelligenza Artificiale, fornito senza alcuna garanzia di correttezza e completezza. Leggi il disclaimer o segnalaci un problema.
IMMAGINI
IN SINTESI
DESCRIZIONE
di nuova costruzione in asta giudiziaria di nuova costruzione con ascensore
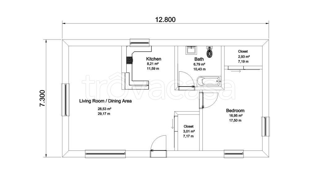
Asta appartamento a Bitonto (BA) [SY612847] Via Giandomenico Romano, 22, 70032 Bitonto BA, Italia Abitazione di tipo civile composta da quattro vani e accessori, con ascensore. Stato dell’immobile buono. Proposta immobiliare in asta. Info dettagliate […]
