Valutazione immobiliare indipendente, accurata e gratuita
Appartamento in vendita a Bitonto in zona Centro Città a 74.751 € (cod.65849f74)
Caasa non ha sufficienti informazioni per commentare l'appartamento a Bitonto in zona Centro Città - 65849f74.
Analisi immobiliare
I dati in posseso di Caasa per quest'immobile sono insufficienti, inaffidabili o contraddittori per proporre un'analisi attendibile.
Mercato immobiliare a Bitonto
Per quanto riguarda più in generale la città di Bitonto, sono presenti al momento quasi 500 annunci per
appartamenti in vendita (meno del 5% dell'intera provincia)
e il maggior numero di annunci per questa tipologia sono relativi alla zona di Borgo Antico, mentre nella zona di Centro Città è presente un numero significativamente inferiore di annunci.
La richiesta media nella zona dove sorge l'appartamento (Centro Città pressi Corso Vittorio Emanuele) è pari a
1.550 €/m² e ne fa la più pregiata della città .
Per quanto riguarda la dinamica dei prezzi, negli ultimi 6 mesi i prezzi medi in tutta la città per appartamenti in vendita sono
sostanzialmente stabili (-1,18%).
NOVITÀ Il risultato che vedi dipende dai dati che siamo riusciti ad estrarre dall'annuncio: ottieni una stima più accuranta di questo immobile, inserendo dati più precisi.
N.B. L'Opinione di Caasa® è un servizio sperimentale realizzato tramite tecniche di Intelligenza Artificiale, fornito senza alcuna garanzia di correttezza e completezza. Leggi il disclaimer o segnalaci un problema.
IMMAGINI
IN SINTESI
DESCRIZIONE
di nuova costruzione in asta giudiziaria di nuova costruzione
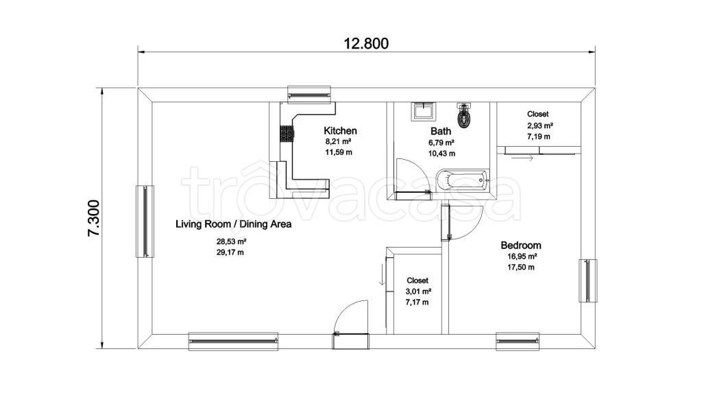
Asta appartamento a Bitonto (BA) [SY470205] Corso Vittorio Emanuele, 118, 70032 Palombaio BA, Italia Appartamento al piano rialzato composto da cinque vani ed accessori con sottostante locale deposito al piano seminterrato. Locale deposito di mq 29 a […]
