Valutazione immobiliare indipendente, accurata e gratuita
Appartamento in vendita a Bitonto in zona Borgo Antico a 31.767 € (cod.653fc684)
Caasa non ha sufficienti informazioni per commentare l'appartamento a Bitonto in zona Borgo Antico - 653fc684.
Analisi immobiliare
I dati in posseso di Caasa per quest'immobile sono insufficienti, inaffidabili o contraddittori per proporre un'analisi attendibile.
Mercato immobiliare a Bitonto
Per quanto riguarda più in generale la città di Bitonto, sono presenti al momento quasi 500 annunci per
appartamenti in vendita (meno del 5% dell'intera provincia)
e il maggior numero di annunci per questa tipologia sono relativi proprio alla zona di Borgo Antico.
La richiesta media nella zona dove sorge l'appartamento (Borgo Antico pressi Piazza Cattedrale) è pari a
1.315 €/m², molto vicina ai valori della zona Centro Città che sono i più alti della città .
Per quanto riguarda la dinamica dei prezzi, negli ultimi 6 mesi i prezzi medi in tutta la città per appartamenti in vendita sono
sostanzialmente stabili (-0,94%).
NOVITÀ Il risultato che vedi dipende dai dati che siamo riusciti ad estrarre dall'annuncio: ottieni una stima più accuranta di questo immobile, inserendo dati più precisi.
N.B. L'Opinione di Caasa® è un servizio sperimentale realizzato tramite tecniche di Intelligenza Artificiale, fornito senza alcuna garanzia di correttezza e completezza. Leggi il disclaimer o segnalaci un problema.
IMMAGINI
IN SINTESI
DESCRIZIONE
di nuova costruzione con terrazza con balcone in asta giudiziaria di nuova costruzione
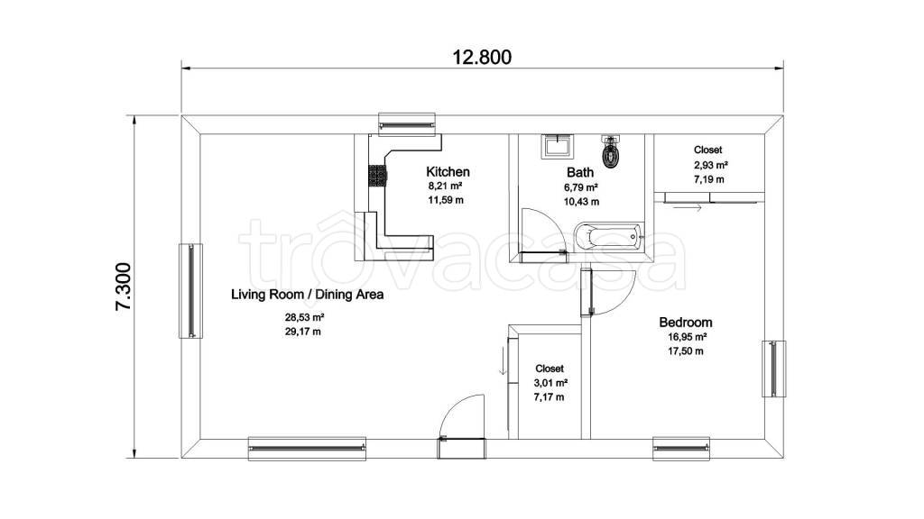
Asta appartamento a Bitonto (BA) [SY571821] Piazza Cattedrale, 35, 70032 Bitonto BA, Italia Piena proprietà di appartamento per civile abitazione ubicato nel centro storico di Bitonto, posto al primo piano, costituito da due camere da letto, un soggi […]
