Valutazione immobiliare indipendente, accurata e gratuita
Appartamento in vendita a Bitonto a 29.109 € (cod.6539bd6f)
Caasa non ha sufficienti informazioni per commentare l'appartamento in vendita a Bitonto - 6539bd6f.
Analisi immobiliare
I dati in posseso di Caasa per quest'immobile sono insufficienti, inaffidabili o contraddittori per proporre un'analisi attendibile.
Mercato immobiliare a Bitonto
Per quanto riguarda più in generale la città di Bitonto, sono presenti al momento oltre 500 annunci per
appartamenti in vendita (meno del 5% dell'intera provincia)
e il maggior numero di annunci per questa tipologia sono relativi alla zona di Borgo Antico.
La dinamica dei prezzi in tutta la città mostra che negli ultimi 6 mesi, i prezzi per appartamenti in vendita sono
in leggera diminuzione (-3,12%).
NOVITÀ Il risultato che vedi dipende dai dati che siamo riusciti ad estrarre dall'annuncio: ottieni una stima più accuranta di questo immobile, inserendo dati più precisi.
N.B. L'Opinione di Caasa® è un servizio sperimentale realizzato tramite tecniche di Intelligenza Artificiale, fornito senza alcuna garanzia di correttezza e completezza. Leggi il disclaimer o segnalaci un problema.
IMMAGINI
IN SINTESI
DESCRIZIONE
di nuova costruzione in asta giudiziaria di nuova costruzione
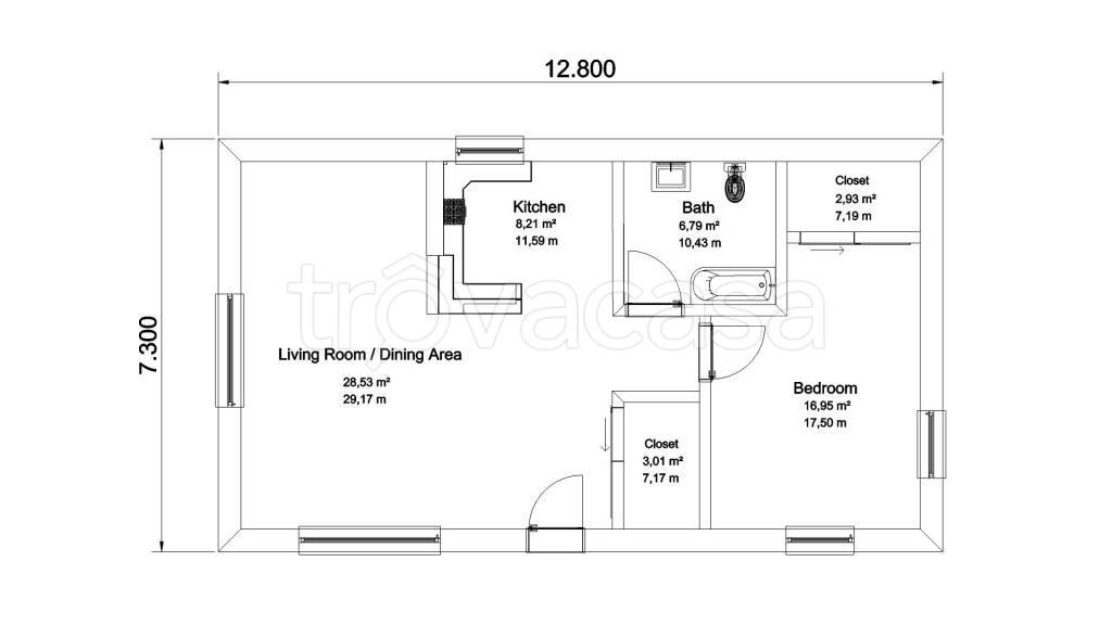
Asta appartamento a Bitonto (BA) [SY467337] Via Monsignor F. P. Calamita, 42, 70032 Bitonto BA, Italia Appartamento al secondo piano composto da tre vani ed accessori posti su due piani comunicanti tra loro tramite una scala a chiocciola. Dotato al t […]
