Valutazione immobiliare indipendente, accurata e gratuita
Appartamento in vendita a Bitonto in zona Borgo Antico a 93.375 € (cod.6534b003)
Caasa non ha sufficienti informazioni per commentare l'appartamento a Bitonto in zona Borgo Antico - 6534b003.
Analisi immobiliare
I dati in posseso di Caasa per quest'immobile sono insufficienti, inaffidabili o contraddittori per proporre un'analisi attendibile.
Mercato immobiliare a Bitonto
Per quanto riguarda più in generale la città di Bitonto, sono presenti al momento quasi 500 annunci per
appartamenti in vendita (meno del 5% dell'intera provincia)
e il maggior numero di annunci per questa tipologia sono relativi proprio alla zona di Borgo Antico.
La richiesta media nella zona dove sorge l'appartamento (Borgo Antico pressi Piazza Cattedrale) è pari a
1.415 €/m², molto vicina ai valori della zona Centro Città che sono i più alti della città .
La dinamica dei prezzi in tutta la città mostra che negli ultimi 6 mesi, i prezzi per appartamenti in vendita sono
in forte aumento (+11,10%).
NOVITÀ Il risultato che vedi dipende dai dati che siamo riusciti ad estrarre dall'annuncio: ottieni una stima più accuranta di questo immobile, inserendo dati più precisi.
N.B. L'Opinione di Caasa® è un servizio sperimentale realizzato tramite tecniche di Intelligenza Artificiale, fornito senza alcuna garanzia di correttezza e completezza. Leggi il disclaimer o segnalaci un problema.
IMMAGINI
IN SINTESI
PROPOSTO DA:
Centro Aste Bari
DESCRIZIONE
di nuova costruzione con terrazza con balcone in asta giudiziaria di nuova costruzione
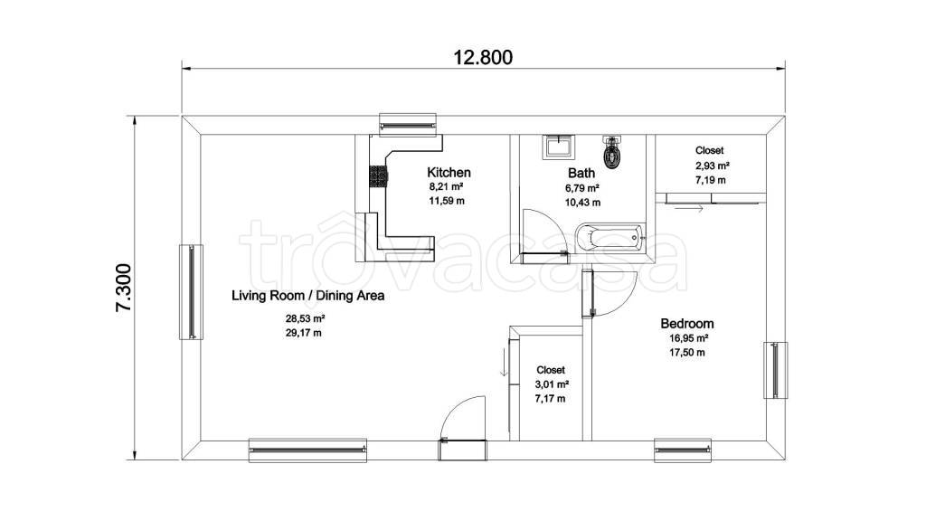
Asta appartamento a Bitonto (BA) [SY582091] Piazza Cattedrale, 23, 70032 Bitonto BA, Italia Alloggio su n. 2 livelli. Il primo, ubicato al secondo livello è costituito da una cucina, dalla quale si accede direttamente ad un soggiorno munito di balcon […]
