Valutazione immobiliare indipendente, accurata e gratuita
Appartamento in vendita a Bari in zona Libertà a 41.700 € (cod.65725243)
Caasa non ha sufficienti informazioni per commentare l'appartamento in vendita a Bari in zona Libertà - 65725243.
Analisi immobiliare
I dati in posseso di Caasa per quest'immobile sono insufficienti, inaffidabili o contraddittori per proporre un'analisi attendibile.
Mercato immobiliare a Bari
Per quanto riguarda più in generale la città di Bari, sono presenti al momento ben oltre 3.000 annunci per
appartamenti in vendita (meno di un terzo dell'intera provincia)
e il maggior numero di annunci per questa tipologia sono relativi proprio alla zona di Libertà.
La richiesta media nella zona dove sorge l'appartamento (Libertà pressi Via Gian Battista Trevisani) è pari a
2.155 €/m², molto vicina ai valori della zona Murat che sono i più alti della città .
La dinamica dei prezzi in tutta la città mostra che negli ultimi 6 mesi, i prezzi per appartamenti in vendita sono
in leggero aumento (+3,04%).
NOVITÀ Il risultato che vedi dipende dai dati che siamo riusciti ad estrarre dall'annuncio: ottieni una stima più accuranta di questo immobile, inserendo dati più precisi.
N.B. L'Opinione di Caasa® è un servizio sperimentale realizzato tramite tecniche di Intelligenza Artificiale, fornito senza alcuna garanzia di correttezza e completezza. Leggi il disclaimer o segnalaci un problema.
IMMAGINI
IN SINTESI
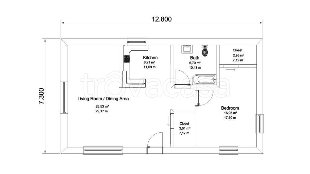
DESCRIZIONE
di nuova costruzione di nuova costruzione in asta giudiziaria
Asta appartamento a Bari (BA) [SY580618] Via Trevisani, 136, 70122 Bari BA, Italia Abitazione di tipo popolare al primo piano Proposta immobiliare in asta. Info dettagliate in agenzia o telefonicamente. Possibilita’ di Mutuo al 100% Per maggiori info […]
