Valutazione immobiliare indipendente, accurata e gratuita
Appartamento in vendita a Bari in zona San Pasquale a 205.302 € (cod.65348eeb)
Caasa non ha sufficienti informazioni per commentare l'appartamento a Bari in zona San Pasquale - 65348eeb.
Analisi immobiliare
I dati in posseso di Caasa per quest'immobile sono insufficienti, inaffidabili o contraddittori per proporre un'analisi attendibile.
Mercato immobiliare a Bari
Per quanto riguarda più in generale la città di Bari, sono presenti al momento ben oltre 3.000 annunci per
appartamenti in vendita (meno di un terzo dell'intera provincia)
e il maggior numero di annunci per questa tipologia sono relativi alla zona di Libertà, mentre nella zona di San Pasquale è presente un numero significativamente inferiore di annunci.
La richiesta media nella zona dove sorge l'appartamento (San Pasquale pressi Via Sigismondo Castromediano) è pari a
2.340 €/m², molto vicina ai valori della zona San Giorgio che sono i più alti della città .
La dinamica dei prezzi in tutta la città mostra che negli ultimi 6 mesi, i prezzi per appartamenti in vendita sono
in sostanziale aumento (+5,48%).
NOVITÀ Il risultato che vedi dipende dai dati che siamo riusciti ad estrarre dall'annuncio: ottieni una stima più accuranta di questo immobile, inserendo dati più precisi.
N.B. L'Opinione di Caasa® è un servizio sperimentale realizzato tramite tecniche di Intelligenza Artificiale, fornito senza alcuna garanzia di correttezza e completezza. Leggi il disclaimer o segnalaci un problema.
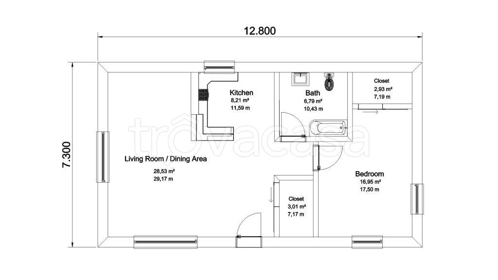
IMMAGINI
IN SINTESI
PROPOSTO DA:
Centro Aste Bari
DESCRIZIONE
di nuova costruzione di nuova costruzione in asta giudiziaria
Asta appartamento a Bari (BA) [SY601684] Via Sigismondo Castromediano, 132, 70126 Bari BA, Italia Appartamento a piano 8. Proposta immobiliare in asta. Info dettagliate in agenzia o telefonicamente. Possibilita’ di Mutuo al 100% Per maggiori informaz […]
