Valutazione immobiliare indipendente, accurata e gratuita
Appartamento in vendita a Bari in zona San Pasquale a 255.193 € (cod.65348ee5)
Caasa non ha sufficienti informazioni per commentare l'appartamento a Bari in zona San Pasquale - 65348ee5.
Analisi immobiliare
I dati in posseso di Caasa per quest'immobile sono insufficienti, inaffidabili o contraddittori per proporre un'analisi attendibile.
Mercato immobiliare a Bari
Per quanto riguarda più in generale la città di Bari, sono presenti al momento ben oltre 3.000 annunci per
appartamenti in vendita (meno di un terzo dell'intera provincia)
e il maggior numero di annunci per questa tipologia sono relativi alla zona di Libertà, mentre nella zona di San Pasquale è presente un numero significativamente inferiore di annunci.
La richiesta media nella zona dove sorge l'appartamento (San Pasquale pressi Via Robert Schuman) è pari a
2.340 €/m², molto vicina ai valori della zona San Giorgio che sono i più alti della città .
Relativamente alla dinamica dei prezzi, possiamo dire che negli ultimi 6 mesi i prezzi medi in tutta la città per appartamenti in vendita sono
in sostanziale aumento (+5,48%).
NOVITÀ Il risultato che vedi dipende dai dati che siamo riusciti ad estrarre dall'annuncio: ottieni una stima più accuranta di questo immobile, inserendo dati più precisi.
N.B. L'Opinione di Caasa® è un servizio sperimentale realizzato tramite tecniche di Intelligenza Artificiale, fornito senza alcuna garanzia di correttezza e completezza. Leggi il disclaimer o segnalaci un problema.
IMMAGINI
IN SINTESI
DESCRIZIONE
di nuova costruzione di nuova costruzione in asta giudiziaria
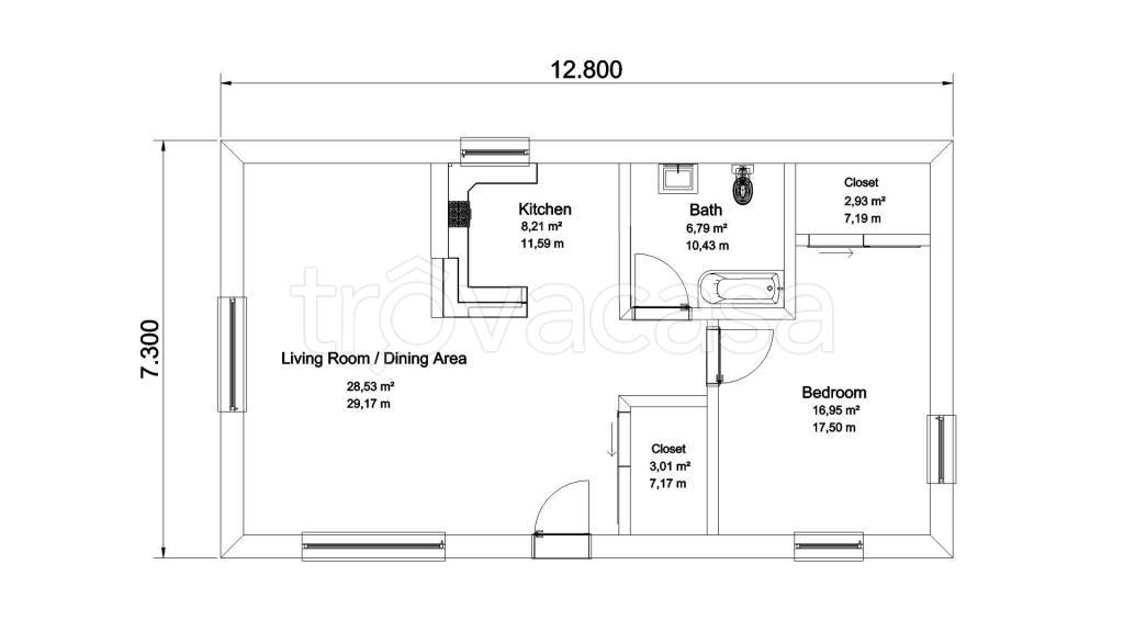
Asta appartamento a Bari (BA) [SY539244] Via Robert Schuman, 15, 70126 Bari BA, Italia Appartamento al piano primo nel complesso edilizio denominato "Punta L" composto da quattro vani e accessori. E' vano accessorio del bene, di pertinenza esclusiva, […]
