Valutazione immobiliare indipendente, accurata e gratuita
Appartamento in vendita a Bari in zona Loseto a 72.750 € (cod.64f9f19b)
Caasa non ha sufficienti informazioni per commentare l'appartamento in vendita a Bari in zona Loseto - 64f9f19b.
Analisi immobiliare
I dati in posseso di Caasa per quest'immobile sono insufficienti, inaffidabili o contraddittori per proporre un'analisi attendibile.
Mercato immobiliare a Bari
Per quanto riguarda più in generale la città di Bari, sono presenti al momento ben oltre 3.000 annunci per
appartamenti in vendita (meno di un terzo dell'intera provincia)
e il maggior numero di annunci per questa tipologia sono relativi alla zona di Libertà, mentre la zona di Loseto risulta molto meno attiva considerando il numero di annunci presenti.
La richiesta media nella zona dove sorge l'appartamento (Loseto pressi Via Giulio Petroni) è pari a
1.450 €/m² che la rende la più economica della città .
La dinamica dei prezzi in tutta la città mostra che negli ultimi 6 mesi, i prezzi per appartamenti in vendita sono
in sostanziale aumento (+5,48%).
NOVITÀ Il risultato che vedi dipende dai dati che siamo riusciti ad estrarre dall'annuncio: ottieni una stima più accuranta di questo immobile, inserendo dati più precisi.
N.B. L'Opinione di Caasa® è un servizio sperimentale realizzato tramite tecniche di Intelligenza Artificiale, fornito senza alcuna garanzia di correttezza e completezza. Leggi il disclaimer o segnalaci un problema.
IMMAGINI
IN SINTESI
DESCRIZIONE
da ristrutturare con balcone con terrazza con ascensore da ristrutturare in asta giudiziaria
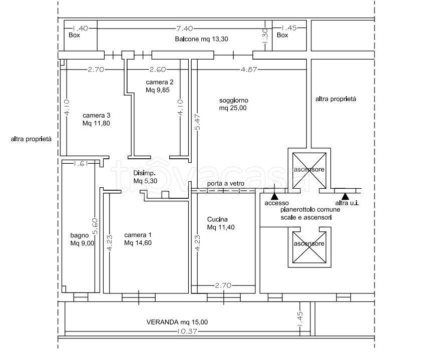
Vendesi in asta giudiziaria, trilocale di 120 mq complessivi, posto all'ottavo piano con ascensore, ubicato a Loseto, in Via Zaccaria 16, si trova in una zona residenziale tranquilla a circa 8 km dal centro di Bari e 3 km dalla tangenziale. Ben collegata a Via G. Petroni e alle principali arterie cittadine, l’area offre servizi, negozi e collegamenti comodi con autobus e viabilità principale. VALORE DI PERIZIA - STIMA DI MERCATO € 115.000 L'appartamento ha una superficie interna di 101 mq, è da ristrutturare ed è composto da: - ampio ambiente soggiorno - cucina, - 3 camere da letto, - disimpegno, - ampio bagno, - balcone di 14 mq, - veranda di 16 mq. OTTIMO RAPPORTO €/mq considerando le quotazioni della zona. Il prezzo a cui ci si riferisce è l’OFFERTA MINIMA da presentare per partecipare. CONTATTACI AL N. 375.785. 21.70 PER FISSARE UN APPUNTAMENTO PRESSO LA NOSTRA SEDE DI BARI. Siamo anche disponibili presso le nostre sedi di CAGLIARI, LECCE, TARANTO, LIVORNO, FIRENZE, BRESCIA E MILANO. I dati inseriti sono stati estratti dalla perizia e dell'avviso di vendita. Per visionare le FOTO INTERNE e avere MAGGIORI INFORMAZIONI sull’immobile, prego contattare telefonicamente per fissare un APPUNTAMENTO nelle nostre sedi. Il team di AVVOCATI e PROFESSIONISTI IMMOBILIARI di Valore Aggiunto Consulting sarà lieto di spiegarvi i vantaggi di questa ed altre opportunità presenti, offrendovi il servizio più completo sul mercato, prevenendo ogni problema. Infatti, ci occuperemo di: •Effettuare uno STUDIO APPROFONDITO della perizia e degli altri documenti della procedura •Organizzare per voi il SOPRALLUOGO sull’immobile •Pianificare e redigere l’OFFERTA DI ACQUISTO (anche per procedure telematiche) •Consigliarvi le MIGLIORI STRATEGIE per avere successo in sede di gara •Vi indichiamo convenzioni per il MUTUO •Vi supportiamo nelle scelte di intestazione della proprietà •Vi assistiamo nella LIBERAZIONE dell'immobile •Prepariamo l’ANALISI DI MERCATO sull’immobile •Pianifichiamo l’aspetto FISCALE dell’acquisto •Valutazione fat[…]

