Valutazione immobiliare indipendente, accurata e gratuita
Appartamento in vendita ad Altamura a 32.941 € (cod.6539a1db)
Caasa non ha sufficienti informazioni per commentare l'appartamento in vendita ad Altamura - 6539a1db.
Analisi immobiliare
I dati in posseso di Caasa per quest'immobile sono insufficienti, inaffidabili o contraddittori per proporre un'analisi attendibile.
Mercato immobiliare ad Altamura
Per quanto riguarda più in generale la città di Altamura, sono presenti al momento oltre 500 annunci per
appartamenti in vendita (meno del 5% dell'intera provincia)
e il maggior numero di annunci per questa tipologia sono relativi alla zona di Centro Storico.
La dinamica dei prezzi in tutta la città mostra che negli ultimi 6 mesi, i prezzi per appartamenti in vendita sono
in aumento (+4,76%).
NOVITÀ Il risultato che vedi dipende dai dati che siamo riusciti ad estrarre dall'annuncio: ottieni una stima più accuranta di questo immobile, inserendo dati più precisi.
N.B. L'Opinione di Caasa® è un servizio sperimentale realizzato tramite tecniche di Intelligenza Artificiale, fornito senza alcuna garanzia di correttezza e completezza. Leggi il disclaimer o segnalaci un problema.
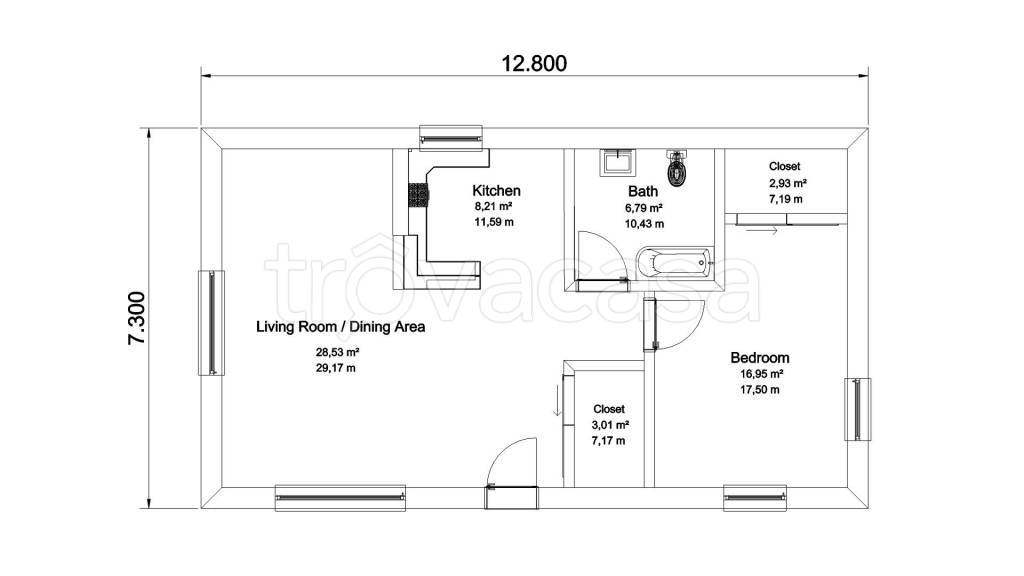
IMMAGINI
IN SINTESI
PROPOSTO DA:
Centro Aste Bari
DESCRIZIONE
di nuova costruzione di nuova costruzione in asta giudiziaria
Asta appartamento a Altamura (BA) [SY375400] Via Santa Rita, 7, 70022 Altamura BA, Italia Piena proprietà dell'appartamento al primo piano dello stabile in Altamura alla via Santa Rita n. 7 (catastalmente 5), esteso mq 56,67, composto da un vano, cuc […]
