N.B. Tutti le informazioni immobiliari sono fornite senza alcuna garanzia. Leggi il disclaimer.
Locali commerciali o negozi con giardino in vendita a Santa Maria a Monte - pg. 2 di 3
MODIFICA QUESTA RICERCAVilla unifamiliare in vendita a Santa Maria A Monte PREMIUM
- prezzo medio villa in zona OMI B1 : 1964 €/m²
- prezzo medio villa a Santa Maria a Monte : 1853 €/m²
vendita appartamento Santa Maria a Monte
negozio 115.000 €
Santa Maria a Monte, loc. Ponticelli - In zona residenziale in vicinanza della COOP e dall'ingresso della FI-PI-LI, PROPONIAMO IN ESCLUSIVA un appartamento al secondo ed ultimo piano di un un più ampio fabbricato, con ingresso a comune da scale esterne e composto da terrazzo di ingresso, ampio e luminoso […]
LEGGI ANCORA
- prezzo medio appartamento in zona OMI R1 : 1384 €/m²
- prezzo medio attico in zona OMI R1 : 1538 €/m²
Immobile in vendita a Santa Maria a Monte(PI
vendita locale commerciale Santa Maria a Monte
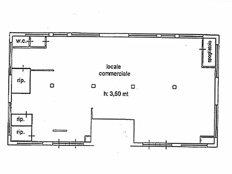
locale commerciale Montecalvoli 140.000 €
Santa Maria a Monte – Montecalvoli Vendesi ( o Affittasi ) Fondo Commerciale di 190 mq con Ottima Visibilità In posizione strategica, su strada ad alto transito veicolare, proponiamo in vendita o locazione un fondo commerciale di circa 190 mq, posto a livello strada, con doppio ingresso e due ampie vetri […]
LEGGI ANCORA
- prezzo medio loft in zona Montecalvoli : 1923 €/m²
- prezzo medio loft a Santa Maria a Monte : 2016 €/m²
azienda commerciale in vendita a Montecalvoli
negozio Montecalvoli 68.000 €
L'immobile commerciale di 90 mq in vendita zona commerciale di ottimi flussi veicolari e pedonali Rif.2025p027L'immobile oggetto della vendita è un luminoso e spazioso Fondo Commerciale situato nella zona di Montecalvoli, nel comune di Santa Maria a Monte. La sua posizione strategica lo rende ideale per […]
LEGGI ANCORA
Villa unifamiliare a Santa Maria a Monte Centro di 477 m² in vendita
negozio Pregiuntino 550.000 €
VILLA IN POSIZIONE PANORAMICA E IMMERSA NELLA NATURA. “Il silenzio delle colline, la luce delle vetrate, il calore del camino. Una casa da vivere in ogni stagione.” Nella parte collinare del comune di Santa Maria a Monte, in zona panoramica ed esclusiva ben lontana dal tram tram giornaliero, proponiamo i […]
LEGGI ANCORA
- prezzo medio casa indipendente in zona OMI B1 : 1766 €/m²
- prezzo medio villa in zona OMI B1 : 1964 €/m²
Capannone industriale in vendita a Santa Maria a Monte PREMIUM
Villa con giardino a Santa Maria a Monte
negozio 550.000 €
Rif.Ag. V318 - Pisa, località Santa Maria a Monte (codice immobile V318) - Info WhatsApp al nr.3356523752 Periferia di Pisa, ubicata in posizione rialzata, nella verde e tranquilla zona semi collinare, proponiamo in vendita grande Villa libera su quattro lati, circondata da un bel giardino a parco di 2.5 […]
LEGGI ANCORA
- prezzo medio casa indipendente in zona OMI R1 : 1550 €/m²
- prezzo medio villa in zona OMI R1 : 1725 €/m²
Negozio in vendita ad Arezzo, San Donato - Ospedale
negozio San Donato 122.000 €
Via De Gasperi, angolo Via Nenni, locale artigianale di circa mq. 80, posto al piano terra con 3 vetrine fronte strada. Il locale è dotato di canna fumaria. Attualmente è un unico vano con bagno. Ci sono lavori di rifinitura da ultimare, in funzione all'esigenza della futura attività. Esiste una pratica […]
LEGGI ANCORA
Attività commerciale in vendita a Santa Maria A Monte
negozio 80.000 €
VENDESI rosticceria nella zona del Comprensorio del Cuoio in fondo di circa 80mq oltre magazzino in strada di grande passaggio, con un grande avviamento commerciale. Nella vendita sono compresi buona parte degli elettrodomestici in cucina - OCCASIONE - MAGGIORI INFO SOLO PRESSO I NOSTRI UFFICI - Rif. S18 […]
LEGGI ANCORA
Laboratorio in vendita a Santa Maria a Monte via Francesca Sud
Proposto da:
negozio 49.000 €
Rif.Ag. WV3836BK - Frazione di S. Maria a Monte - VENDESI nr. 3 fondi artigianali al piano terra di piccolo condominio in zona residenziale. I 3 fondi sono quasi identici ed affiancati, ma indipendenti, ciascuno con bagno a norma. Resede di proprietà ad uso esclusivo di fronte all'ingresso oltre a parche […]
LEGGI ANCORA
Negozio in vendita a Santa Maria a Monte via Grazie
negozio 89.000 €
Santa Maria a Monte - Vendesi per INVESTIMENTO Locale commerciale regolarmente AFFITTATO con un canone mensile di euro 640. L'immobile completamente ristrutturato a nuovo è adibito a scuola di cucina e si compone in un unico ampio vano in open space corredato da due bagni e un ripostiglio. Completa la pr […]
LEGGI ANCORA
Negozio in vendita a Santa Maria a Monte via Giosuè Carducci, 6 PREMIUM
Proposto da:
Laboratorio in vendita a Santa Maria a Monte 90 mq Rif: 1339211
locale commerciale 49.000 €
Cod.01575 - Frazione di S. Maria a Monte - VENDESI nr. 3 fondi artigianali al piano terra di piccolo condominio in zona residenziale. I 3 fondi sono quasi identici ed affiancati, ma indipendenti, ciascuno con bagno a norma. Resede di propriet ad uso esclusivo di fronte all'ingresso oltre a parcheggio con […]
LEGGI ANCORA
Capannone industriale in vendita a Santa Maria a Monte
locale commerciale 649.000 €
Santa Maria a Monte – Via Provinciale Francesca Nord, 157 Capannone con piazzale di 3.000 mq DESCRIZIONE E PARTICOLARITÀ Proponiamo in vendita un capannone artigianale indipendente di circa 1.000 mq, composto da una zona produttiva di 800 mq, un laboratorio di 200 mq, una zona uffici e un appartamento di […]
LEGGI ANCORA
Villa a schiera in vendita a Santa Maria a Monte via Sottogiardini, 32
negozio Montecalvoli 350.000 €
Questa affascinante casa a schiera d'angolo, indipendente su tre lati, è in ottime condizioni e colpisce per le sue stanze luminose e ben progettate e per la sua posizione tranquilla ma centrale. A soli due minuti a piedi dal centro di Montecalvoli, si può godere del perfetto equilibrio tra privacy e vic […]
LEGGI ANCORA
- prezzo medio casa indipendente in zona OMI E1 : 1668 €/m²
- prezzo medio villetta a schiera in zona OMI E1 : 1667 €/m²
Stabile/Palazzo nuovo, Santa Maria a Monte ponticelli
negozio 1.100.000 €
Rif.Ag. SDN275V - Scopri l'opportunità unica di acquistare uno stabile di nuova costruzione a Santa Maria a Monte, in provincia di Pisa. Questo complesso offre una superficie totale di 101479 mq, garantendo ampi spazi per ogni esigenza. Situato nella zona di Ponticelli, il progetto vanta un'esposizione p […]
LEGGI ANCORA
Villa singola in vendita a Santa Maria a Monte via Capilato,, 56020
negozio 550.000 €
Pisa, località Santa Maria a Monte (codice immobile V318) - Info WhatsApp al nr.3356523752 Periferia di Pisa, ubicata in posizione rialzata, nella verde e tranquilla zona semi collinare, proponiamo in vendita grande Villa libera su quattro lati, circondata da un bel giardino a parco di 2.500 mq e arricch […]
LEGGI ANCORA
- prezzo medio casa indipendente in zona OMI R1 : 1550 €/m²
- prezzo medio villa in zona OMI R1 : 1725 €/m²
Villa unifamiliare in vendita a Santa Maria A Monte PREMIUM
- prezzo medio villa in zona OMI B1 : 1964 €/m²
- prezzo medio villa a Santa Maria a Monte : 1853 €/m²
Appartamento in vendita a Santa Maria A Monte
negozio Montecalvoli 53.999 €
NEWS DEL GIORNO !!! OCCASIONE DA NON FARSI SFUGGIRE ... CO-ESCLUSIVA Santa Maria Monte - Montecalvoli Alto - Appartamento situato nel centro storico di un piccolo Borgo. Il paese è servito dai servizi principali, scuola elementare, asilo, bar, alimentari, Chiesa, ambulatorio medico, ecc... L’immobile che […]
LEGGI ANCORA
- prezzo medio appartamento in zona Montecalvoli : 1409 €/m²
- prezzo medio casa indipendente in zona Montecalvoli : 1646 €/m²
PIZZERIA PARCO SAN DONATO NOVOLI 105mq
negozio San Donato 450.000 €
PIZZERIA PARCO SAN DONATO NOVOLI 105mq Firenze Firenze Toscana pressi palestra san donato cedesi ben avviata pizzeria. se siete interessati alla nostra proposta chiama subito siamo a vostra disposizione per maggiori informazioni o per vagliare altre soluzioni e per fare una ricerca mirata alle tue esigen […]
LEGGI ANCORA
vendita appartamento Santa Maria a Monte
negozio Montecalvoli 49.999 €
NEWS DEL GIORNO !!! OCCASIONE DA NON FARSI SFUGGIRE ... CO-ESCLUSIVA Santa Maria Monte - Montecalvoli Alto - Appartamento situato nel centro storico di un piccolo Borgo. Il paese è servito dai servizi principali, scuola elementare, asilo, bar, alimentari, Chiesa, ambulatorio medico, ecc... L’immobile che […]
LEGGI ANCORA
- prezzo medio appartamento in zona OMI E1 : 1412 €/m²
- prezzo medio casa indipendente in zona OMI E1 : 1668 €/m²
Non perdere gli altri 35 annunci!













