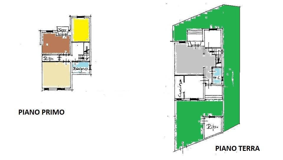
Valore case indipendenti in vendita in zona Pratale / Don Bosco
Per numero di annunci delle case indipendenti in vendita attualmente presenti, la zona Pratale / Don Bosco è tra quelle più significative a Pisa. Il prezzo al m² mediamente richiesto in zona è attualmente pari a 3.130 €/m² ed è nella maggioranza dei casi compreso tra 2.200 €/m² e 3.950 €/m². Questo valore è circa il 36% superiore alla media cittadina e rende la zona una delle più costose di Pisa per questa tipologia. LEGGI ANCORA
Sulla base dei dati ufficiali sulle compravendite diffusi dall' Agenzia delle Entrate riferiti alla zona OMI C1 (ZONE: CONGRESSI, DON BOSCO, PRATALE, STADIO, INGEGNERIA, ...), che è quella più vicina alla zona Pratale / Don Bosco, i prezzi al m² per una casa indipendente in vendita sono compresi tra 1.595 €/m² e 2.225 €/m².
N.B. Tutti le informazioni immobiliari sono fornite senza alcuna garanzia. Leggi il disclaimer.














