N.B. Tutti le informazioni immobiliari sono fornite senza alcuna garanzia. Leggi il disclaimer.
capannone in vendita a Pisa in zona Ospedaletto PREMIUM
Capannone industriale in vendita a Pisa via del Fosso Vecchio, Ospedaletto
Capannone industriale in vendita a Pisa via Gronchi, Ospedaletto
                                                capannone Ospedaletto Via Giovanni Gronchi 890.000 €
                                                
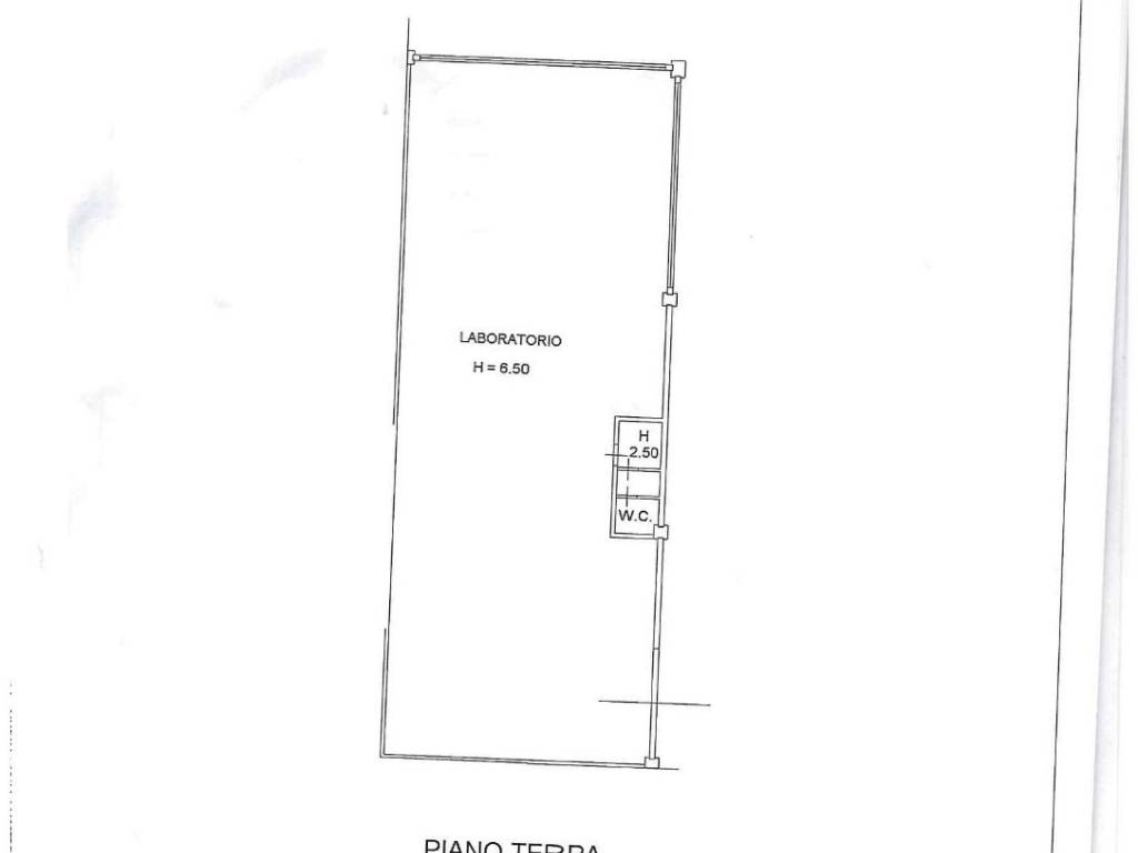
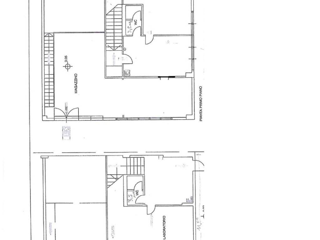
                                                OSPEDALETTO - PISA D/7 - CAPANNONE INDUSTRIALE Proponiamo in vendita un capannone industriale in zona strategica ad Ospedaletto (PI), di 650 mq, dotato una porzione commerciale. DESCRIZIONE E PARTICOLARITA' Il capannone proposto in vendita si sviluppa al piano terra, e dispone di una metratura calpestabi […]
LEGGI ANCORA
                                            
- prezzo medio locale commerciale in zona OMI E1 : 999 €/m²
- prezzo medio locale commerciale in zona Ospedaletto : 952 €/m²
Immobile in vendita a Pisa(PI
                                                capannone Ospedaletto 190.000 €
                                                
                                                Locale commerciale - VENDESI CAPANNONE ARTIGIANALE DI MQ 160 FACENTE PARTE DI UN MAGGIOR FABBRICATO DIREZIONALE ARTIGIANALE COSì COMPOSTO: MQ 130 AL PIANO TERRA CON NR 1 PORTELLONE INDUSTRIALE CON ALTEZZA INTERNA DI MT 7
LEGGI ANCORA
                                            
- prezzo medio locale commerciale in zona Ospedaletto : 952 €/m²
- prezzo medio locale commerciale a Pisa : 1299 €/m²
Capannone industriale in vendita a Pisa, Ospedaletto
                                                capannone Ospedaletto 1.650.000 €
                                                
                                                PISA – OSPEDALETTO Proponiamo in vendita un capannone industriale di 1980 mq libero su quattro lati con piazzale di 1600 mq dotato di accesso per bilici. DESCRIZIONE E PARTICOLARITA’ Il capannone proposto si sviluppa su due livelli. Il piano terra è diviso in due ambienti separati tra loro anche, il più  […]
LEGGI ANCORA
                                            
- prezzo medio locale commerciale in zona OMI E1 : 999 €/m²
- prezzo medio locale commerciale in zona Ospedaletto : 952 €/m²
Attività  commerciale in Vendita a Pisa Via Ferraris14
                                                capannone Ospedaletto Via Galileo Ferraris 850.000 €
                                                
                                                In affitto Capannone di circa 600 mq per attività produttive in zona Ospedaletto.Rif. PI2021088 - L 'immobile è suddiviso da : un grande vano, vano magazzino, locale aggiuntivo, ufficio, servizi a norma. Spazio esterno su tutti i lati, e area recintata.Per informazioni contattare l 'Agenzia
LEGGI ANCORA
                                            
- prezzo medio ufficio in zona OMI E1 : 1235 €/m²
- prezzo medio ufficio in zona Ospedaletto : 1279 €/m²
Capannone commerciale in buono stato di 435 mq. a Ospedaletto
Proposto da:
 
                                                    
                                                capannone Ospedaletto 600.000 €
                                                
                                                OSPEDALETTO: (Riferimento agenzia n°: 292) Ideale per chi ha bisogno di inglobare attività e abitazione, vendesi capannone di complessivi 435 mq di cui 280 mq con altezze 4.5 MT (destinazione d'uso C/3) con uffici e soppalco abitazione posta al 1° piano di 95 mq in perfette condizioni con bella terrazza  […]
LEGGI ANCORA
                                            
- prezzo medio casa indipendente in zona OMI E1 : 1955 €/m²
- prezzo medio casa semindipendente in zona OMI E1 : 2013 €/m²
capannone in vendita a Pisa in zona Ospedaletto
                                                capannone Ospedaletto 125.000 €
                                                
                                                PISA ndash; OSPEDALETTO     D/7 ndash; CAPANNONE INDUSTRIALEProponiamo in vendita un capannone di 215 mq con piazzale di circa 55 mq.     DESCRIZIONE E PARTICOLARITA'     Il capannone proposto in vendita gode di una superficie calpestabile di 215 mq ed è alto 5,00m.  Attraverso il portellone industriale  […]
LEGGI ANCORA
                                            
Immobile in vendita a Pisa(PI
- prezzo medio locale commerciale in zona OMI E1 : 999 €/m²
- prezzo medio locale commerciale in zona Ospedaletto : 952 €/m²
Vendesi capannone industriale a Pisa via Galielo Ferraris, 1, Ospedaletto
                                                capannone Ospedaletto 1.740.000 €
                                                
                                                PISA – OSPEDALETTO D/8 – CAPANNONE COMMERCIALE Proponiamo in vendita un capannone commerciale di 3.550 mq, libero su quattro lati, dotato di un piazzale di circa 2.600 mq. DESCRIZIONE E PARTICOLARITA’ Il capannone proposto in vendita gode di una superficie calpestabile di 3.550 mq, ed è composto dalla zo […]
LEGGI ANCORA
                                            
Villa con giardino, Pisa riglione oratoio PREMIUM
                                                    
                                                    Rif.Ag. MA3398 - ORATOIO (PI) Porzione di casale con ampi spazi, GIARDINO PRIVATO DI OLTRE 1.000 MQ In contesto tranquillo e ben servito, proponiamo in vendita la porzione finale di un caratteristico casale toscano, con accesso da cancello  […]
LEGGI ANCORA
                                                
- prezzo medio casa indipendente in zona OMI E1 : 1955 €/m²
- prezzo medio villa in zona OMI E1 : 2019 €/m²
Vendita negozi uffici capannoni a Pisa
Proposto da:
 
                                                    
                                                capannone Ospedaletto 400.000 €
                                                
                                                Rif: 959136/1192/vfa010 - ospedaletto zona metro - pisa - rif. Vfa010 - si vende locato x investimento porzione di capannone artigianale di superficie coperta circa 650 mq con altezza 6 metri e area scoperta recintata su 3 lati di circa 600 mq, doppio ingresso anche per mezzi alti, locali per uffici, mag […]
LEGGI ANCORA
                                            
vendita capannone artigianale Pisa
Proposto da:
 
                                                    
                                                capannone Ospedaletto 321.200 €
                                                
                                                PISA-OSPEDALETTO Vendesi capannone artigianale con uffici. Proponiamo in vendita un capannone di circa 350 mq, ideale per attività artigianali.la struttura include due bagni (uno per piano )e un'area uffici al primo piano. Gli uffici sono accessibili sia dall'interno del capannone che tramite ingresso in […]
LEGGI ANCORA
                                            
- prezzo medio casa semindipendente in zona OMI E1 : 2013 €/m²
- prezzo medio casa semindipendente in zona Ospedaletto : 2248 €/m²
Immobile in vendita a Pisa(PI
- prezzo medio locale commerciale in zona OMI E1 : 999 €/m²
- prezzo medio locale commerciale in zona Ospedaletto : 952 €/m²
Attività artigianale in vendita a Pisa
Proposto da:
 
                                                    
                                                capannone Ospedaletto 230.000 €
                                                
                                                Pisa (Ospedaletto) - Vendesi capannone artigianale in ottimo stato/ristrutturato di circa 200 mq comprensivo di un soppalco, composto da 2 vani piano terra per circa 185 mq e da 2 uffici ammobiliati e bagno sul soppalco per oltre 30 mq. Posto auto nello spazio esterno. Ingresso indipendente.  Riscaldamen […]
LEGGI ANCORA
                                            
- prezzo medio casa semindipendente in zona Ospedaletto : 2248 €/m²
- prezzo medio casa semindipendente a Pisa : 2222 €/m²
capannone in vendita a Pisa in zona Ospedaletto
                                                capannone Ospedaletto Via Giuseppe Ravizza 600.000 €
                                                
                                                PISA ndash; OSPEDALETTO     CAPANNONE RECENTEMENTE RISTRUTTURATO     COSA SAPERE DELL'IMMOBILE     Proponiamo in locazione capannone di 860 mq con piazzale angolare, situato nella zona industriale di Ospedaletto a Pisa.     DESCRIZIONE E PARTICOLARITA'     Il capannone proposto in affitto gode di una sup […]
LEGGI ANCORA
                                            
capannone in vendita a Pisa in zona Ospedaletto PREMIUM
Immobile in vendita a Pisa(PI
- prezzo medio locale commerciale in zona Ospedaletto : 952 €/m²
- prezzo medio locale commerciale a Pisa : 1299 €/m²
Capannone industriale in vendita a Pisa via Archiemede Bellatalla, Ospedaletto
                                                capannone Ospedaletto 520.000 €
                                                
                                                Proponiamo in vendita un capannone industriale di 747 mq, libero su tre lati, con piazzale di 600 mq dotato di accesso per bilici. DESCRIZIONE E PARTICOLARITÀ Il capannone proposto si sviluppa su due livelli. Il piano terra è diviso in due ambienti comunicanti tra loro: il più piccolo, di 230 mq e alto 6 […]
LEGGI ANCORA
                                            
- prezzo medio locale commerciale in zona OMI E1 : 999 €/m²
- prezzo medio ufficio in zona OMI E1 : 1235 €/m²
capannone in vendita a Pisa in zona Ospedaletto
                                                capannone Ospedaletto 1.800.000 €
                                                
                                                OSPEDALETTO: Capannone direzionale artigianale Nota Bene... PER MAGGIORI INFORMAZIONI E FOTO CHIAMA GIONATA. , continua a leggere.. . di 3000 metri quadrati di superficie sviluppati al piano Terra oltre a 150 metri quadrati di uffici al piano primo con piazzale di 3000mq su quattro lati, tre accessi per  […]
LEGGI ANCORA
                                            
Non perdere gli altri 18 annunci!
 
                                     
                                                
 
                                             
                                                     
                                            
 
                                            
 
                                             
                                             
                                            

 
                                            
 
                                             
                                             
                                                 
                                            

 
                                            

 
                                             
                                             
                                             
                                             
                                            