N.B. Tutti le informazioni immobiliari sono fornite senza alcuna garanzia. Leggi il disclaimer.
Locali commerciali o negozi o trivani con ascensore e senza ascensore, di recente costruzione o di recente ristrutturazione in vendita a Pisa in zona Centro Storico - pg. 6 di 40
MODIFICA QUESTA RICERCATrilocale in vendita a Pisa, San Francesco PREMIUM
Proposto da:
- prezzo medio appartamento in zona OMI B1 : 3066 €/m²
- prezzo medio attico in zona OMI B1 : 2735 €/m²
Locale commerciale in Vendita a Pisa
Locale comm.le/Fondo in vendita a Pisa 20 mq Rif: 1298549
Locale commerciale in vendita, Pisa santa marta
Locale comm.le/Fondo in vendita a Pisa 20 mq Rif: 1320156
Locale commerciale in buono stato di 19 mq
locale commerciale Santa Marta
PISA - Santa Marta - VENDESI piccolo fondo commerciale di 19 mq. In zona ad alto passaggio veicolare e pedonale. Prezzo € 36.000. Rif. YN2201K Tipo di contratto: vendita Categoria: commerciale Tipologia immobile: locale commerciale Quartiere: Santa Marta Provincia: PI (CAP: 56121) Stato: buono Piano: su […]
LEGGI ANCORA
AttivitĂ commerciale in vendita, Pisa san francesco
negozio Quartiere San Francesco
Rif.Ag. 1859 - Vendesi Edicola storica di Pisa punto di riferimento di Quartiere situata in zona con forte passaggio sia veicolare che pedonale, buon avviamento con clientela ormai fidelizzata nel corso degli anni. Al momento vende solo prodotti Editoriali questo da il vantaggio di non avere magazzino qu […]
LEGGI ANCORA
AttivitĂ / Licenza in vendita a Pisa(PI
Locale commerciale in buono stato di 17 mq
locale commerciale Stazione
Pisa - Piccolo fondo commerciale di 17 mq con bagno in zona di grande passaggio veicolare e anche pedonale, vicino alla Stazione Ferroviaria. Prezzo € 65.000. Rif. PL10026K Tipo di contratto: vendita Categoria: commerciale Tipologia immobile: locale commerciale Provincia: PI (CAP: 56121) Stato: buono Pi […]
LEGGI ANCORA
Ristorante in buono stato di 20 mq
negozio Quartiere San Francesco
San Francesco. Nel cuore della città vendesi attività di pizza da asporto. Attrezzatura nuova, canna fumaria già presente. Il locale è composto da un unico vano oltre servizio. Canone di locazione mensile di € 550 con prima scadenza tra 11 anni. OCCASIONE Tipo di contratto: vendita Categoria: commerciale […]
LEGGI ANCORA
Locale commerciale in vendita a Pisa
Appartamento in vendita a Pisa PREMIUM
Cod.01224 Rif.Ag. 42 - Pisa, centro, quartiere porta a Lucca in prossimità dei Bagni di Nerone, a soli 100 metri dalle Mura del centro storico e precisamente in via Luigi Bianchi, disponiamo in vendita questo interessante appartamento clima […]
LEGGI ANCORA
- prezzo medio appartamento in zona OMI C1 : 2967 €/m²
- prezzo medio trivano in zona OMI C1 : 2902 €/m²
AttivitĂ / Licenza in vendita a Pisa(PI
Locale commerciale ristrutturata, Pisa tribunale
locale commerciale Tribunale
Rif.Ag. 4121 - Tribunale: In pieno centro, fondo commerciale di 20 mq., limmobile sarà consegnato completamente ristrutturato. Rif. 4121 - SC9266099
LEGGI ANCORA
AttivitĂ commerciale in vendita a Pisa via Guglielmo Oberdan, Centro Storico
negozio Centro Storico Via Guglielmo Oberdan
Rif.Ag. a39/481 - PISA ....CENTRO STORICO PARTE DI TRAMONTANA...VENDESI LICENZA DI TABACCHERIA....Canone di locazione di 400 euro contratto stipulato nel 2022 ( 6+6), proponiamo una tabaccheria situata al piano terra, con una superficie di 18 mq. Prezzo interessante di 55.000 Euro. IMPIANTO DI ALLARME E […]
LEGGI ANCORA
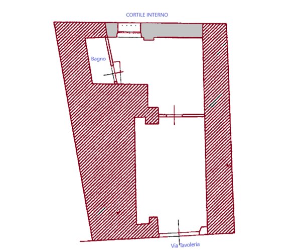
Negozio in vendita, Pisa centro storico
negozio Centro Storico Via Tavoleria 60.000 €
Rif.Ag. IV-0068 - PISA - VIA TAVOLERIA N. 8 - NEGOZIO cat. C/1 - Immediate vicinanze Borgo Stretto, Piazza dei Cavalieri, Piazza Garibaldi, La Sapienza, VENDESI MURA locale commerciale uso negozio CON CANNA FUMARIA della superficie di circa 35 mq con altezze m 3.90, composto da due vani oltre bagno, soff […]
LEGGI ANCORA
Locale commerciale in vendita a Pisa
Trilocale in vendita a Pisa, San Francesco PREMIUM
Proposto da:
- prezzo medio appartamento in zona OMI B1 : 3066 €/m²
- prezzo medio attico in zona OMI B1 : 2735 €/m²
Locale commerciale in Vendita a Pisa Santa Marta
locale commerciale Santa Marta
RIF. VIA3054 - FONDO COMMERCIALE IN PIENO CENTRO In pieno centro proponiamo in vendita FONDO COMMERCIALE COMPLETAMENTE RISTRUTTURATO di 25 mq circa. L 'immobile pronto da vivere si presta a molteplici soluzioni, posto in zona strategica con alto passaggio pedonale e veicolare
LEGGI ANCORA
Locale commerciale in vendita a Pisa
locale commerciale Tribunale
Tribunale: In pieno centro, fondo commerciale di 20 mq., l’immobile sarà consegnato completamente ristrutturato. Rif. 4121
LEGGI ANCORA
Locale commerciale in vendita a Pisa
Non perdere gli altri centinaia di annunci!







