N.B. Tutti le informazioni immobiliari sono fornite senza alcuna garanzia. Leggi il disclaimer.
Capannoni o casali o loft in vendita a Cascina in zona Via Carecciole - pg. 20 di 23
MODIFICA QUESTA RICERCAVilletta a schiera in Vendita a Cascina Via Tosco Romagnola
casale 395.000 €
CASCINA: Vicinissima al centro e ai principali servizi villetta d 'angolo in fase di completa ristrutturazione, con ampio giardino sui tre lati , composta al piano terra da ampio soggiorno, cucina abitabile, bagno e ripostiglio, al piano primo due camere matrimoniali con terrazzo , cameretta e bagno. Cos […]
LEGGI ANCORA
- prezzo medio casa indipendente in zona OMI B1 : 2192 €/m²
- prezzo medio casale in zona OMI B1 : 1982 €/m²
vendita appartamento Cascina
casale 140.000 €
Nel centro storico di Cascina proponiamo appartamento in scala di sole due famiglie posto al piano primo. Si accede direttamente nel soggiorno separato dalla cucina abitabile. La cucina è dotata di ripostiglio e accesso al balcone. Tramite la rampa di scale interne raggiungiamo il piano superiore ed ulti […]
LEGGI ANCORA
- prezzo medio appartamento in zona OMI B1 : 2205 €/m²
- prezzo medio casale in zona OMI B1 : 1982 €/m²
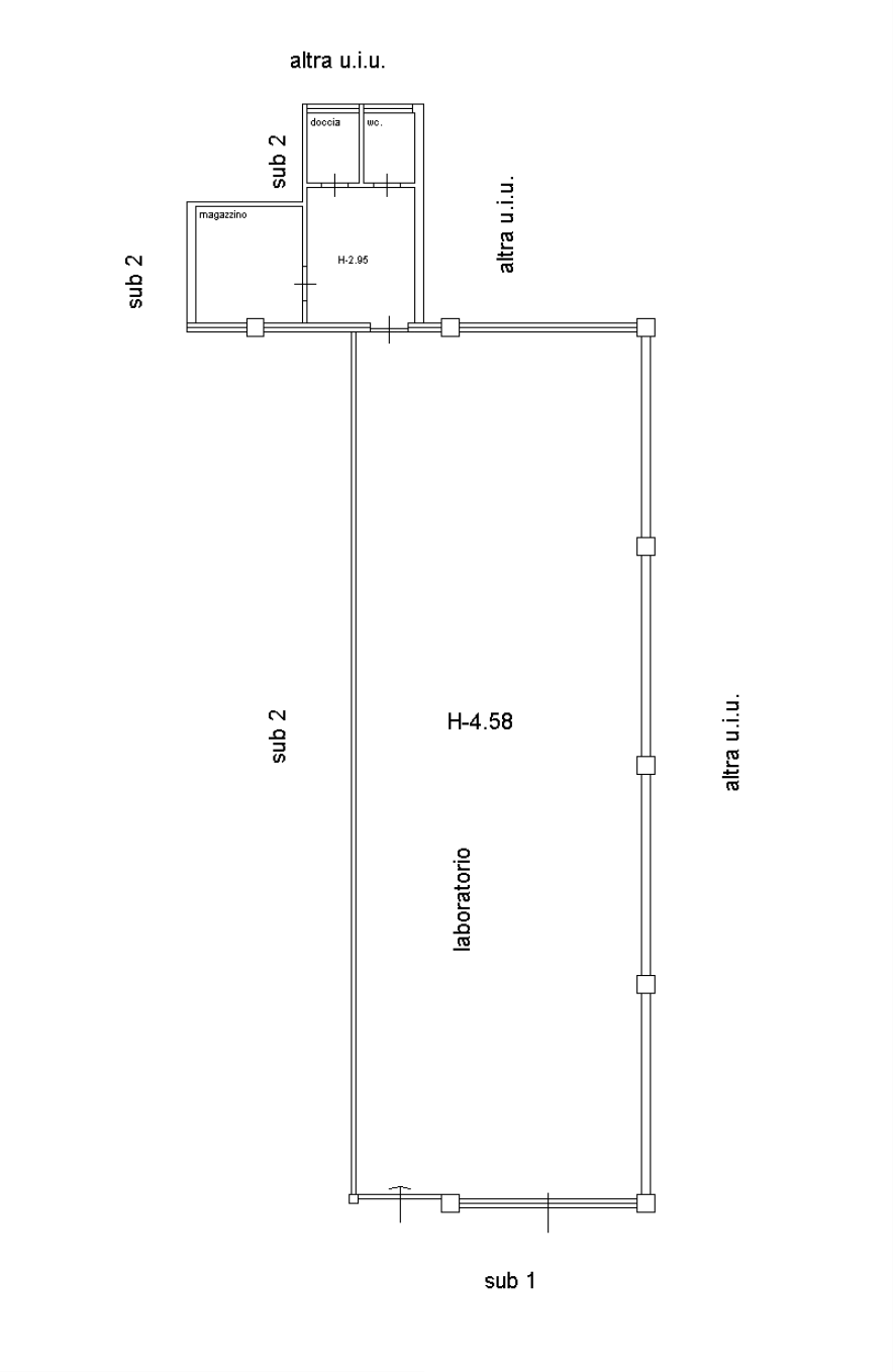
Capannone in vendita a Cascina
casale 105.000 €
Rif.Ag. 1432 - CASCINA uscita FI-PI-LI, zona artigianale, capannone artigianale di circa 160 mq, con parcheggio acessibile da cancello automatico. Il capannone si compone da unico grande vano, ripostiglio, antibagno e bagno con finestra. Altezza del capannone 4,50 metri. L'immobile si presenta in ottimo […]
LEGGI ANCORA
- prezzo medio casale in zona OMI B1 : 1982 €/m²
- prezzo medio casale a Cascina : 2124 €/m²
Villa bifamiliare in vendita a Cascina, Semicentro
Proposto da:
casale 450.000 €
Cascina - € 450.000 NUOVA COSTRUZIONE IN CLASSE "A4" CON IMPIANTO FOTOVOLTAICO. A pochi passi dal centro di Cascina è in fase di esecuzione l'intervento di riqualificazione denominato "LA VECCHIA FALEGNAMERIA" in cui verranno realizzate 12 unità immobiliari di tipo appartamento e villette con CLASSE ENER […]
LEGGI ANCORA
- prezzo medio casa indipendente in zona OMI B1 : 2192 €/m²
- prezzo medio villa in zona OMI B1 : 2218 €/m²
esavano in vendita a Cascina
- prezzo medio casa indipendente in zona OMI B1 : 2192 €/m²
- prezzo medio casale in zona OMI B1 : 1982 €/m²
Appartamento in Vendita a Cascina Via Montanara PREMIUM
Situato al secondo piano con ascensore, questo appartamento offre ambienti comodi e luminosi grazie allâ esposizione Est/Sud/Ovest. Lâ ingresso si apre su un soggiorno/pranzo con accesso a un terrazzo, proseguendo troviamo un cucinotto con […]
LEGGI ANCORA
- prezzo medio appartamento in zona OMI B1 : 2205 €/m²
- prezzo medio casale in zona OMI B1 : 1982 €/m²
villa in vendita a Cascina
Proposto da:
casale 378.000 €
A Cascina, nei pressi del centro, con tutti i servizi a portata di mano, proponiamo in vendita questa villa; libera su quattro lati, è composta da due appartamenti indipendenti, uno al piano primo di cinque vani con terrazza ed un ampio bilocale indipendente al piano terra. La proprietà ha di corredo un […]
LEGGI ANCORA
- prezzo medio casa indipendente in zona OMI B1 : 2192 €/m²
- prezzo medio casale in zona OMI B1 : 1982 €/m²
casale in vendita a Cascina
casale 120.000 €
CASCINA - CAPOLUOGO APPARTAMENTO 4 LOCALI CON TERRAZZA A Cascina, nel cuore del capoluogo ma appena fuori dal centro storico, proponiamo un appartamento situato al primo piano di un piccolo condominio composto da sole tre unità abitative. La posizione è ideale per chi desidera vivere vicino a tutti i p […]
LEGGI ANCORA
- prezzo medio appartamento in zona OMI B1 : 2205 €/m²
- prezzo medio casale in zona OMI B1 : 1982 €/m²
Vendita casa indipendente corso matteotti Cascina (PI
casale Corso Giacomo Matteotti 260.000 €
palazzo in centro storico con possibilità di realizzazione di più appartamenti<br>Rif. 2024233 in centro di cascina palazzo storico di 700 mq calpestabili attualmente composto da 2 unità immobiliari molto grandi che si sviluppano su due livelli più tutto il piano terra suddiviso in 4 ambienti uso garage […]
LEGGI ANCORA
- prezzo medio casa indipendente in zona OMI B1 : 2192 €/m²
- prezzo medio casale in zona OMI B1 : 1982 €/m²
Vendita Ufficio Cascina
casale 124.999 €
Siamo lieti di presentarvi un'opportunità imperdibile per l'acquisto di un prestigioso ufficio open space situato al secondo piano di un moderno edificio commerciale nel cuore del comune di Cascina. Con una superficie totale di 140 mq, questo luminosissimo ufficio, in , è progettato per offrire massima f […]
LEGGI ANCORA
- prezzo medio casale in zona OMI B1 : 1982 €/m²
- prezzo medio ufficio in zona OMI B1 : 1214 €/m²
villa in vendita a Cascina in zona Visignano
casale Visignano 445.000 €
Visignano - Cascina- NUOVA LOTTIZZAZIONE IN CLASSE A - In ottima zona residenziale e prossima ai principali servizi, proponiamo villette bifamiliari in vendita con ingresso indipendente, di 5 vani, con giardino, garage e posto auto. Queste graziosissime unità sono caratterizzate da un grande e luminoso s […]
LEGGI ANCORA
- prezzo medio casa indipendente in zona OMI B1 : 2192 €/m²
- prezzo medio casa semindipendente in zona OMI B1 : 2207 €/m²
Ufficio in Vendita a Cascina Corso Giacomo Matteotti, 1 PREMIUM
Proposto da:
2V IMMOBILIARE DI GIUNTINI VERONICA
NUOVO UFFICIO IN AFFITTO A CASCINA! â ¨ V395U - In via Tosco Romagnola a pochi passi dal centro storico e a soli 5 minuti dalla stazione ferroviaria, proponiamo ufficio di 51 mq al 1° piano con ascensore. Spazi moderni e funzionali, divisi […]
LEGGI ANCORA
- prezzo medio casale in zona OMI B1 : 1982 €/m²
- prezzo medio ufficio in zona OMI B1 : 1214 €/m²
casale in vendita a Cascina
casale 150.000 €
Cascina (frazione) - Bar-Pasticceria in vendita, "bellissimo", come nuovo: rinnovato completamente sia negli arredi che nelle attrezzature solo 3 anni fa. Superficie totale interna 170 mq, ampio spazio privato esterno da attrezzare per la bella stagione. Ottimi incassi annuali, con possibilità di increme […]
LEGGI ANCORA
- prezzo medio casale in zona OMI B1 : 1982 €/m²
- prezzo medio casale a Cascina : 2124 €/m²
Villa in vendita a Cascina(PI
- prezzo medio casa indipendente in zona OMI R2 : 1872 €/m²
- prezzo medio villa in zona OMI R2 : 1976 €/m²
vendita appartamento Cascina
casale 248.000 €
In prossimità del centro di Cascina, all'interno di un piccolo contesto di corte proponiamo APPARTAMENTO INDIPENDENTE con accesso tramite scala esterna. L'ingresso è diretto nella zona soggiorno con cucina abitabile a vista dove è possibile tramite porta finestra accedere al balcone di servizio con ripos […]
LEGGI ANCORA
- prezzo medio appartamento in zona OMI B1 : 2205 €/m²
- prezzo medio casale in zona OMI B1 : 1982 €/m²
Trilocale in vendita a Cascina via San Sebastiano, 15, Centro
casale Via San Sebastiano 278.000 €
Ingresso FI-PI-LI: 2 km circa. Pisa Centro: 15 km (circa 15-20 minuti di auto). ???? Gli Interni: Design e Funzionalità Frutto di un'attenta e appena terminata ristrutturazione, l'appartamento di circa 90mq è un perfetto connubio tra storia e tecnologia. Zona Giorno: Ingresso su living luminoso con cucin […]
LEGGI ANCORA
- prezzo medio appartamento in zona OMI B1 : 2205 €/m²
- prezzo medio casale in zona OMI B1 : 1982 €/m²
casale in vendita a Cascina
- prezzo medio casale in zona OMI B1 : 1982 €/m²
- prezzo medio casale a Cascina : 2124 €/m²
Appartamento Indipendente in vendita a Cascina, Cascina
casale Navacchio 265.000 €
CASCINA: Appartamento in fase di completa ristrutturazione! Nel centro del paese e vicino ai principali servizi, proponiamo in vendita questo appartamento, posto al piano terra rialzato e corredato loggia coperta, oltre resede con casetta in legno. L'ingresso avviene, tramite la loggia coperta, direttame […]
LEGGI ANCORA
- prezzo medio appartamento in zona OMI B1 : 2205 €/m²
- prezzo medio casale in zona OMI B1 : 1982 €/m²
Quadrilocale con giardino a Cascina
casale 270.000 €
Rif.Ag. SDN163V - CASCINA Oggi siamo a Cascina e vi proponiamo un appartamento posto al PIANO TERRA con LOGGIA COPERTA e casetta in legno!! l'immobile è oggetto di una importante e accurata ristrutturazione, paragonabile AL NUOVO, vanta un'ottima posizione, vicinissimo alle principali attività raggiungib […]
LEGGI ANCORA
- prezzo medio appartamento in zona OMI B1 : 2205 €/m²
- prezzo medio casale in zona OMI B1 : 1982 €/m²
Villetta a schiera in Vendita a Cascina Via Indipendenza, 80
casale Via Indipendenza 275.000 €
CAPOLUOGO - Cascina NOSTRA ESCLUSIVA!! Nella zona centrale, vicino a tutti i servizi, troviamo questo intervento di recupero e ristrutturazione totale di un piccolo complesso esistente. L 'operazione prevede la costruzione di tre appartamenti indipendenti con posti auto privati e giardino e un ulteriore […]
LEGGI ANCORA
- prezzo medio casa indipendente in zona OMI B1 : 2192 €/m²
- prezzo medio casale in zona OMI B1 : 1982 €/m²
Non perdere gli altri 392 annunci!














