N.B. Tutti le informazioni immobiliari sono fornite senza alcuna garanzia. Leggi il disclaimer.
Casali o locali commerciali con ascensore e senza ascensore, di recente costruzione o di recente ristrutturazione in vendita a Cascina in zona Latignano - pg. 4 di 5
MODIFICA QUESTA RICERCAvilla in vendita a Cascina PREMIUM
- prezzo medio casa indipendente in zona OMI R2 : 1811 €/m²
- prezzo medio casale in zona OMI R2 : 1824 €/m²
Villa in vendita a Cascina, Latignano
Proposto da:
casale Latignano 230.000 €
LATIGNANO, nel comune di Cascina- Proponiamo villa storica di circa 400 mq. La villa disposta su due piani, piano terra e primo piano pi piano ammezzato. Al piano terra si trova la zona giorno con ampio ingresso centrale, sala da pranzo, salone doppio con camino, cucina abitabile, bagno, locale lavanderi […]
LEGGI ANCORA
- prezzo medio casa indipendente in zona OMI R2 : 1811 €/m²
- prezzo medio villa in zona OMI R2 : 1983 €/m²
Rustico / Casale in vendita a Cascina(PI
casale Latignano 245.000 €
Cascina in località Santo Stefano Macerata, immerso nel verde della campagna, a 5 minuti dal Polo di Montacchiello, privato vende terratetto con giardino e ingresso indipendente. L’abitazione di circa 220 mq. si sviluppa su piano terra e primo ed è composta da: Piano terra: Cucina, ripostiglio, e ampio l […]
LEGGI ANCORA
- prezzo medio casa indipendente in zona OMI R2 : 1811 €/m²
- prezzo medio casale in zona OMI R2 : 1824 €/m²
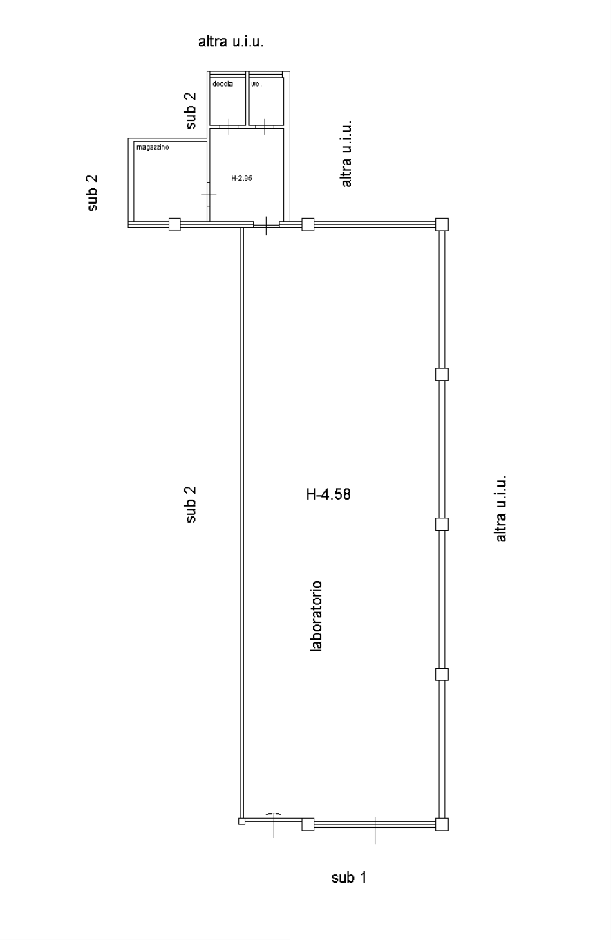
Laboratorio in Vendita a Cascina Via Palermo, 56021
casale 295.000 €
CASCINA - All 'interno della zona industriale, ben collegato con la FI-PI-LI ed il paese, proponiamo in vendita immobile con 8 locali e 3 bagni, per una superficie totale di circa 340 mq. La struttura è una porzione di capannone in ottimo stato di manutenzione, suddivisa in un laboratorio di 146 mq con […]
LEGGI ANCORA
- prezzo medio casale in zona OMI B1 : 2055 €/m²
- prezzo medio appartamento in zona OMI B1 : 2220 €/m²
Rustico a Cascina Latignano di 200 m² con 7 locali in vendita
casale Latignano 890.000 €
Splendido RUSTICO Toscano con MERAVIGLIOSA Piscina Privata Situato in una tranquilla zona , ma a breve distanza da tutti i principali servizi, questo incantevole rustico è l'ideale per famiglie e investitori alla ricerca di un'opportunità unica. Il rustico si presenta ELEGANTE e SIGNORILE con la zona gio […]
LEGGI ANCORA
- prezzo medio casale in zona OMI R2 : 1824 €/m²
- prezzo medio appartamento in zona OMI R2 : 1928 €/m²
Capannone in Vendita a Cascina Sardegna
casale 105.000 €
CASCINA uscita FI-PI-LI, zona artigianale, capannone artigianale di circa 160 mq, con parcheggio acessibile da cancello automatico. Il capannone si compone da unico grande vano, ripostiglio, antibagno e bagno con finestra. Altezza del capannone 4,50 metri. L 'immobile si presenta in ottimo stato di manut […]
LEGGI ANCORA
- prezzo medio casale in zona OMI B1 : 2055 €/m²
- prezzo medio casale a Cascina : 2170 €/m²
Rustico / Casale in vendita a Cascina(PI PREMIUM
- prezzo medio casa indipendente in zona OMI R2 : 1811 €/m²
- prezzo medio casale in zona OMI R2 : 1824 €/m²
Immobile in vendita a Cascina(PI
- prezzo medio casale in zona OMI B1 : 2055 €/m²
- prezzo medio casale a Cascina : 2170 €/m²
villa in vendita a Cascina
casale 330.000 €
Questa villa in stile Liberty si trova nel centro di Cascina. Pur necessitando di una ristrutturazione totale, presenta alcune caratteristiche interessanti che meritano di essere conservate, come gli archi a tutto sesto e i preziosi dipinti murali. Anche i mobili antichi del XVIII secolo comprendono alcu […]
LEGGI ANCORA
- prezzo medio casa indipendente in zona OMI R2 : 1811 €/m²
- prezzo medio casale in zona OMI R2 : 1824 €/m²
Rustico / Casale in vendita a Cascina(PI
casale Latignano 75.000 €
Agenzia Immobiliare Frontello propone in vendita nella prima campagna di Cascina, rustico completamente da ristrutturare con 20.000 MQ di terreno. A pochi minuti dal centro di Cascina proponiamo rustico completamente da ristrutturare suddiviso in 3 unità abitative per totali 300mq circa. L'immobile si pr […]
LEGGI ANCORA
- prezzo medio casa indipendente in zona OMI R2 : 1811 €/m²
- prezzo medio casale in zona OMI R2 : 1824 €/m²
esavano in vendita a Cascina in zona Latignano
casale Latignano 156.000 €
Abitazione terratetto, facente parte di un maggior fabbricato isolato composto da due abitazioni dislocate su due piani fuori terra e ricavata dalla ristrutturazione di una casa colonica-rurale di remota edificazione posta nella campagna della frazione "Latignano". La proprietà è corredata da ampio resed […]
LEGGI ANCORA
- prezzo medio casa indipendente in zona OMI R2 : 1811 €/m²
- prezzo medio casa semindipendente in zona OMI R2 : 1899 €/m²
Villa quadrilocale 86mq
casale 222.000 €
Villa quadrilocale 86mq Cascina Pisa Toscana rif.ag. ncl008 - ad.ze cascina in contesto residenziale di recente costruzione villetta finale con giardino e garage. la casa con doppio ingresso sia pedonale che carrabile dotata al piano terra di grande garage di circa mq. 18 e di giardino distribuito su tre […]
LEGGI ANCORA
- prezzo medio casa indipendente in zona OMI R2 : 1811 €/m²
- prezzo medio villa in zona OMI R2 : 1983 €/m²
Casa Bi - Trifamiliare in Vendita a Cascina Viale IV Novembre PREMIUM
- prezzo medio casale in zona OMI R2 : 1824 €/m²
- prezzo medio casa indipendente in zona OMI R2 : 1811 €/m²
Rustico / Casale in vendita a Cascina(PI
casale Latignano 310.000 €
LOCALITA' PARDOSSI (Pisa), immersa nel verde della campagna Toscana, Vendesi splendido podere rustico che dista 10 minuti da tutti i principali servizi. La proprietà è composta da vari locali al piano terra (circa 200 mq) da completare, con solai e tetto nuovi in stile rustico. Al primo piano si accede […]
LEGGI ANCORA
- prezzo medio casa indipendente in zona OMI R2 : 1811 €/m²
- prezzo medio casale in zona OMI R2 : 1824 €/m²
Villa con giardino a Cascina
casale 245.000 €
Rif.Ag. ICT757 - VIC.ZE CASCINA : Villa storica di metà 800, vicino ai primari servizi in centro paese, con giardino esclusivo su due lati, disposta su due livelli, composta al piano terra da ampio ingresso centrale, sala da pranzo, salone doppio, cucina abitabile e bagno, ampio vano scala per l'accesso […]
LEGGI ANCORA
- prezzo medio casa indipendente in zona OMI R2 : 1811 €/m²
- prezzo medio villa in zona OMI R2 : 1983 €/m²
Appartamento in vendita a Cascina viale Campania, 1, Semicentro
casale Viale Campania 295.000 €
CASCINA – All'interno della zona industriale, in posizione strategica tra FI-PI-LI ed i principali servizi del paese, proponiamo una soluzione versatile composta da appartamento più laboratorio, in un unico immobile, ideale per chi cerca spaziosità, funzionalità e indipendenza lavorativa. La proprietà è […]
LEGGI ANCORA
- prezzo medio appartamento in zona OMI B1 : 2220 €/m²
- prezzo medio casale in zona OMI B1 : 2055 €/m²
casale in vendita a Cascina
- prezzo medio casale in zona OMI R2 : 1824 €/m²
- prezzo medio casa indipendente in zona OMI R2 : 1811 €/m²
Appartamento in vendita a Cascina, Latignano
casale Latignano Via Nazario Sauro 156.000 €
Highlights Via Nazario Sauro 320, Cascina (PI) 2 livelli • 2 camere • 2 bagni 4500 m² di giardino privato + 2 posti auto Impianti recenti (2008-2009) con certificazioni ? Ambienti luminosi, charme rustico & comfort moderno ?? Vendita tramite asta giudiziaria (occupato dall’esecutata) Distribuzione intern […]
LEGGI ANCORA
- prezzo medio appartamento in zona OMI R2 : 1928 €/m²
- prezzo medio casale in zona OMI R2 : 1824 €/m²
villa in vendita a Cascina PREMIUM
- prezzo medio casa indipendente in zona OMI R2 : 1811 €/m²
- prezzo medio casale in zona OMI R2 : 1824 €/m²
Stabile/palazzo in vendita a Cascina, Latignano
casale Latignano Via Nazario Sauro 156.000 €
Via Nazario Sauro, , 56021 Cascina PI, Italia, Cascina (Pisa) - APPARTAMENTO PER CIVILE ABITAZIONE - Sono Valerio Pisano, il Consulente Aste Immobiliari con piu recensioni in Italia. Ho alle spalle oltre 10 anni di esperienza che mi guidano nella mia missione; aiutare privati e investitori DI TUTTA ITALI […]
LEGGI ANCORA
Quadrilocale in vendita a Cascina via Nazario Sauro, Arnaccio - Chiesanuova
casale Via Nazario Sauro 156.000 €
Abitazione terra-tetto, facente parte di un maggior fabbricato isolato composto da due abitazioni dislocate su due piani fuori terra e ricavata dalla ristrutturazione di una casa colonica-rurale. La proprietà è corredata da ampio resede a comune con l'altra unità che circonda l'edificio sui quattro lati […]
LEGGI ANCORA
- prezzo medio appartamento in zona OMI R2 : 1928 €/m²
- prezzo medio casale in zona OMI R2 : 1824 €/m²
Vendesi villa singola a Cascina via Nazario Sauro 320, Arnaccio - Chiesanuova
casale Latignano Via Nazario Sauro 156.000 €
Casa Indipendente in Vendita a Latignano, Cascina**Scopri il fascino di questa splendida abitazione terra-tetto, parte di un maggior fabbricato isolato, situata nella tranquilla campagna della frazione "Latignano" di Cascina. Questa casa colonica-rurale e stata completamente ristrutturata, combinando il […]
LEGGI ANCORA
- prezzo medio casa indipendente in zona OMI R2 : 1811 €/m²
- prezzo medio villa in zona OMI R2 : 1983 €/m²
Non perdere gli altri 60 annunci!











