N.B. Tutti le informazioni immobiliari sono fornite senza alcuna garanzia. Leggi il disclaimer.
Terreni edificabili con giardino, di nuova costruzione in vendita a Casciana Terme Lari in zona Casciana Terme
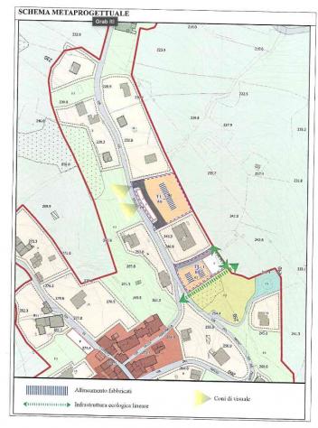
MODIFICA QUESTA RICERCATerreno edif. residenziale in vendita a Casciana Terme - Casciana Terme Lari 2600 mq Rif: 1302305 PREMIUM
Terreno edificabile residenziale in vendita a Casciana Terme Lari
terreno edificabile Casciana Terme 90.000 €
Rif: 886 - Casciana Terme , terreno edificabile residenziale di circa 1000 Mq. dove si possono costruire ( da presentare progetto ) 3 villettine terratetti indipendenti, tutte con giardino , garage e posti auto esterni. con possibilita' di variare progetto e fare 2 terratetti e 2 appartamenti sempre tutt […]
LEGGI ANCORA
Terreno edif. residenziale in vendita a Casciana Terme - Casciana Terme Lari 2600 mq Rif: 1302305
terreno edificabile Casciana Terme 50.000 €
Cod.11119 - Pisa, comune di Casciana Terme - a 10 minuti dalle terme di Casciana, ampio terreno edificabile di circa 2.600 mq in bella posizione panoramica con indice di edificabilit del 20% dove è possibile edificare fino a circa 510 mq di edifici residenziali, villa singola, bifamiliare oppure appartam […]
LEGGI ANCORA
vendita terreno residenziale Casciana Terme Lari
terreno edificabile Casciana Terme
CASCIANA TERME - CEPPATO Vendesi terreno edificabile, in zona centrale e con ottima vista panoramica. La morfologia del terreno pianeggiante consente un intervento realizzabile coi minimi costi. RIF.: 0053.2
LEGGI ANCORA
Terreno edificabile residenziale in vendita a Casciana Terme Lari
terreno edificabile Casciana Terme
Casciana Terme (Pisa), località Pruneta, terreno di circa 50.000 mq. sulle colline toscane. Il comune ha autorizzato il cambio di destinazione d’uso e la riqualificazione dell’area con il recupero a civile abitazione per circa 4.800mq, dei quali circa 2.400 in situ e altri 2.400 mq da utilizzare come vol […]
LEGGI ANCORA
Terreno residenziale in vendita a Casciana Terme Lari
terreno edificabile Casciana Terme
Rif.Ag. 2880a - Casciana Terme - Casciana Terme Lari Ti proponiamo un terreno edificabile di circa 2.500 mq situato in una posizione collinare dominante. Qui, la pace della natura toscana incontra il fascino senza tempo di un borgo storico famoso per le sue acque curative. Vivi a un passo dalle Terme di […]
LEGGI ANCORA
Rustico in vendita a Casciana Terme Lari PREMIUM
- prezzo medio casale in zona OMI R2 : 1539 €/m²
- prezzo medio casa indipendente in zona OMI R2 : 1389 €/m²
Terreno edificabile in Vendita a Casciana Terme Lari Via Guglielmo Marconi
terreno edificabile Casciana Alta 55.000 €
Casciana Alta nel comune di Casciana Terme Lari Terreno in vendita di 5000 mq in parte edificabile residenziale per 800 mq. in vendita, posizione panoramicissima su strada dotata di tutte le utenze, possibilità di costruire una singola abitazione o più unita abitative. E ' possibile visionare il terren […]
LEGGI ANCORA
vendita colonica/casale Casciana Terme Lari
Proposto da:
terreno edificabile Casciana Terme 1.600.000 €
Casciana Terme Lari Sulle caratteristiche colline di Casciana Terme vi è un'interessante proprietà, di circa 750 mq, ben tenuta provvista di ristorante e 10 appartamenti di varie dimensioni. Il terreno collinare che circonda questa interessante proprietà è circa 2,5 ettari e presenta sia ulivi che piante […]
LEGGI ANCORA
- prezzo medio casa indipendente in zona OMI R2 : 1389 €/m²
- prezzo medio casale in zona OMI R2 : 1539 €/m²
vendita terreno residenziale Casciana Terme Lari
terreno edificabile Casciana Terme 120.000 €
Casciana Terme - Casciana Terme Lari Ti proponiamo un terreno edificabile di circa 2.500 mq situato in una posizione collinare dominante. Qui, la pace della natura toscana incontra il fascino senza tempo di un borgo storico famoso per le sue acque curative. Vivi a un passo dalle Terme di Casciana. Immagi […]
LEGGI ANCORA
Terreno residenziale in vendita a Casciana Terme Lari
terreno edificabile Casciana Terme
Pisa, comune di Casciana Terme - a 10 minuti dalle terme di Casciana, ampio terreno edificabile di circa 2.600 mq in bella posizione panoramica con indice di edificabilità del 20% dove è possibile edificare fino a circa 510 mq di edifici residenziali, villa singola, bifamiliare oppure appartamenti. Il te […]
LEGGI ANCORA
Vendesi terreno residenziale a Casciana Terme Lari
terreno edificabile Parlascio
Casciana Terme (PI) vi proponiamo questo terreno edificabile per la realizzazione di civili abitazioni, il lotto è di mq. 2600 con edificabilità fino a 510 mq. L'area in oggetto è ubicata all'interno dell'Insediamento Urbano di Parlascio TUC9 a prevalente carattere residenziale L'intervento si configura […]
LEGGI ANCORA
vendita villa Casciana Terme Lari PREMIUM
LARI - In posizione panoramica caratteristica villa singola con circa 2700 mq di parco che circonda la proprietà. L'abitazione è composta da un ampio salone conviviale con importante camino centrale che si affaccia su di una stupenda e ampi […]
LEGGI ANCORA
- prezzo medio casa indipendente in zona OMI B1 : 1657 €/m²
- prezzo medio villa in zona OMI B1 : 1594 €/m²
Vendesi terreno residenziale a Casciana Terme Lari via Sassogrosso
terreno edificabile Casciana Terme 120.000 €
Casciana Terme - Casciana Terme Lari Ti proponiamo un terreno edificabile di circa 2.500 mq situato in una posizione collinare dominante. Qui, la pace della natura toscana incontra il fascino senza tempo di un borgo storico famoso per le sue acque curative. Vivi a un passo dalle Terme di Casciana. Immagi […]
LEGGI ANCORA
Rustico in vendita a Casciana Terme Lari
terreno edificabile Casciana Terme 850.000 €
A pochi minuti dalla tradizionale cittadina termale di Casciana Terme, si trova questa imponente proprietà - un autentico rustico toscano che non solo colpisce per la sua posizione, ma soprattutto per il suo carattere unico. L'insieme è composto da diversi edifici disposti armoniosamente: una casa princi […]
LEGGI ANCORA
- prezzo medio casale in zona OMI R2 : 1539 €/m²
- prezzo medio casa indipendente in zona OMI R2 : 1389 €/m²
Casale in vendita a Casciana Terme Lari
Proposto da:
terreno edificabile Casciana Terme 850.000 €
Rif.Ag. 730 - - Casciana Terme -Casciana Terme-Lari, (Pisa) antico casale, con chiesa, dependance, garage, cantina, parco e piscina. incantevole casale, un autentico gioiello, immerso in un grande parco esclusivo recintato, piscina e ampie aree esterne. Combinazione di armoniosa eleganza e stile rustico, […]
LEGGI ANCORA
- prezzo medio casa indipendente in zona OMI B2 : 1575 €/m²
- prezzo medio casale in zona OMI B2 : 1518 €/m²
Villa singola in vendita a Casciana Terme Lari via Armenio del Picchia
terreno edificabile Casciana Terme 130.000 €
CASCIANA TERME - TERRENO EDIFICABILE in zona residenziale , vicino al centro, possibile villetta singola o una bifamiliare, il terreno e dirca 1000mq I rendering rappresentano una casa completamente green sia nella costruzione che nell'uso dei materiali di rifinitura. Il costo del solo terreno è di €. 13 […]
LEGGI ANCORA
Terreno edificabile in vendita a Casciana Terme Lari
terreno edificabile Parlascio 59.000 €
Casciana Terme (PI) vi proponiamo questo terreno edificabile per la realizzazione di civili abitazioni, il lotto è di mq. 2600 con edificabilità fino a 510 mq. L'area in oggetto è ubicata all'interno dell'Insediamento Urbano di Parlascio TUC9 a prevalente carattere residenziale L'intervento si configura […]
LEGGI ANCORA
Terreno edif. residenziale in vendita a Casciana Terme - Casciana Terme Lari 2600 mq Rif: 1302305 PREMIUM
Terreno edificabile residenziale in vendita a Casciana Terme Lari
terreno edificabile 150.000 €
Rif: 1359 - Terreno edificabile per Bella Bifamiliare o grande Unifamiliarein Ottima posizione , esposizione solare ,panoramica ecc....in zona residenziale con superficie di circa 860 mq. dove si puo' costruire per circa 1.220 MC. Muretti perimetrali gia' fatti , vista la sua posizione e' ideale anche co […]
LEGGI ANCORA
Terreno residenziale in vendita a Casciana Terme Lari
terreno edificabile Casciana Terme 115.000 €
Casciana Terme - Casciana Terme Lari IA Casciana Terme, in una delle località più apprezzate della Valdera per la qualità della vita e per la bellezza del paesaggio, proponiamo in vendita un terreno edificabile a destinazione residenziale di circa 2.500 mq. Il lotto si trova in una posizione privilegiata […]
LEGGI ANCORA
Terreno residenziale in vendita a Casciana Terme Lari via l. Gherardi
terreno edificabile Casciana Terme 70.000 €
CASCIANA TERME - in zona semicentrale e residenziale TERRENO EDIFICABILE di mq. 1200 circa in bella posizione panoramica.Ideale anche per mono/bifamiliare €.70000,00 Rif. 331T Info e visite : Agenzia immobiliare laffaredicasciana Via Cavour, 13 56034 Casciana Terme – Pisa - Toscana Tel. ( 39) 0587645357 […]
LEGGI ANCORA
Non perdere gli altri 9 annunci!














