N.B. Tutti le informazioni immobiliari sono fornite senza alcuna garanzia. Leggi il disclaimer.
Capannoni o locali commerciali, di recente ristrutturazione in vendita a Bientina - pg. 2 di 3
MODIFICA QUESTA RICERCACapannone in vendita a Bientina PREMIUM
Proposto da:
Terreno in vendita a Bientina, Bientina
capannone 300.000 €
BIENTINA - Vicino al centro. in ottima posizione terreno edificabile . Rif.1290po OTTIMO AFFARE, Vicino al centro terreno edificabile con giardino da costruire, con progetti approssimativi Al momento vi un vecchio capannone da demolire, e con 1500 mt. di terreno edificabile. E' un ottima occasione allego […]
LEGGI ANCORA
capannone in vendita a Bientina
capannone 545.000 €
BIENTINA - CAPANNONE INDIPENDENTE IN ZONA DI PASSAGGIO CON OTTIMA VISIBILITA'. Capannone Indipendente Fronte Strada con Uffici in Vendita. L'immobile vanta una superficie complessiva di mq. 1.110 con Piazzale esclusivo circostante recintato di Mq. 1.270. Al piano terra vanta una superficie di Mq. 794 in […]
LEGGI ANCORA
locale di sgombero in vendita a Bientina
capannone 600.000 €
Bientina: In zona industriale/commerciale, bel capannone artigianale con uffici magazzino e appartamento al piano primo. L'immobile si trova in zona di passaggio, libero su 4 lati e con ampio piazzale. I metri coperti sono circa 1.200. Euro 600.000 tratt. (Rif. 1288
LEGGI ANCORA
Immobile in vendita a Bientina(PI
Proposto da:
- prezzo medio locale commerciale a Bientina : 963 €/m²
Vendesi casa indipendente a Bientina via achille pacini, 67
locale commerciale 500.000 €
BIENTINA Situato in una posizione strategica e visibile nel Comune di Bientina, proponiamo in vendita un intero fabbricato che combina perfettamente investimento commerciale e comfort abitativo. La proprietà si sviluppa su due livelli (piano terra e piano primo); al piano terra troviamo due locali commer […]
LEGGI ANCORA
- prezzo medio casa indipendente in zona OMI R1 : 1647 €/m²
- prezzo medio casa indipendente a Bientina : 1964 €/m²
Terreno in vendita a Bientina, Bientina PREMIUM
capannone in vendita a Bientina
capannone 480.000 €
In vendita un eccezionale complesso immobiliare che offre un'opportunità unica per chi cerca spazio e versatilità. Situato al piano terra, questo complesso si compone di tre unità immobiliari interconnesse. Il cuore della proprietà è un ampio capannone di circa 800 mq, ideale per attività industriali o d […]
LEGGI ANCORA
capannone in vendita a Bientina
capannone 980.000 €
BIENTINA (PI) – Zona industriale – Via Marco Polo Capannone Industriale in VENDITA a Bientina, di mq. 1840 con palazzina Uffici ( Zona Industriale ). Doppio Ingresso, immobile in ottime condizioni con piazzale esclusivo di facile accesso a bilici. Altezza interna mt. 5,00 Immobile così composto: INTERNO […]
LEGGI ANCORA
capannone in vendita a Bientina
capannone 850.000 €
BIENTINA (PI) – ESCLUSIVO CAPANNONE CON PALAZZINA UFFICI IN OTTIMA POSIZIONE FRONTE STRADA. Se Siete alla ricerca di un Capannone Indipendente con Uffici di rappresentanza in Vendita, Questo è l'immobile perfetto per voi! L'immobile vanta una superficie complessiva di mq. 1470 così composta: Il Capanno […]
LEGGI ANCORA
Capannone industriale in vendita a Bientina via Marco Polo
capannone 545.000 €
BIENTINA - CAPANNONE INDIPENDENTE IN ZONA DI PASSAGGIO CON OTTIMA VISIBILITA' . Capannone Indipendente Fronte Strada con Uffici in Vendita. L'immobile vanta una superficie complessiva di mq. 1.110 con Piazzale esclusivo circostante recintato di Mq. 1.270. Al piano terra vanta una superficie di Mq. 794 in […]
LEGGI ANCORA
- prezzo medio locale commerciale a Bientina : 963 €/m²
Locale commerciale in Vendita a Bientina Piazza Vittorio Emanuele II
locale commerciale 495.000 €
CAPOLUOGO - Bientina Centro ECCEZIONALE LOCALE PER ATTIVITA ' COMMERCIALE - Locale comm.le/Fondo in vendita, posizione eccezionale. ideale per ( PIZZERIA, BAR,RISTORANTE, PASTICCERIA,GELATERIA, PUB,BURGHER, ARREDAMENTO/CASALIGHI, BANCA, ASSICURAZIONI, MINIMARKET, PIADINERIA, OTTICA, MODA, ecc.)- L 'immob […]
LEGGI ANCORA
- prezzo medio loft in zona OMI B1 : 2432 €/m²
- prezzo medio locale commerciale a Bientina : 963 €/m²
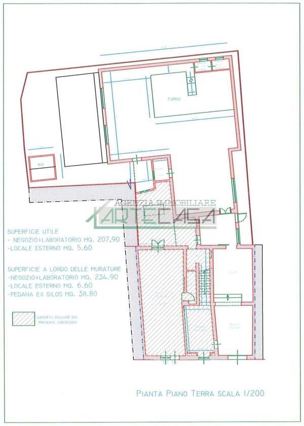
Capannone in vendita a Bientina PREMIUM
Proposto da:
vendita capannone artigianale Bientina
capannone 259.000 €
BIENTINA Proponiamo in vendita OTTIMO capannone artigianale ristrutturato di circa 378 mq. L'immobile è composto da 90 mq di nuovissimi uffici appena realizzati, ampio magazzino, 3 servizi igienici, e piazzale privato di circa 650 mq
LEGGI ANCORA
Capannone in Vendita a Bientina Via Alessandro Volta
capannone 230.000 €
BIENTINA VENDESI ( Possibilità anche di Rent To Buy o AFFITTO ) Porzione di CAPANNONE Soluzione già predisposta per palestra fisioterapia riabilitazione personal training yoga/pilates benessere con POSIBILE RICONVERSIONE AD ALTRE ATTIVITAâ SIMILARI E NON â ARTIGIANALI - INDUSTRIALI SPAZI AMPI E VERSATI […]
LEGGI ANCORA
- prezzo medio appartamento in zona OMI B1 : 2014 €/m²
- prezzo medio appartamento a Bientina : 1978 €/m²
Capannone industriale in vendita a Bientina
Proposto da:
capannone 200.000 €
Capannone artigianale/commerciale soluzione (A e B ), situato a Bientina, in zona ben visibile ad alto flusso veicolare. Con una superficie di 1100 metri quadrati coperti, suddivisi in circa 670 mq a destinazione artigianale con altezza 4,80 mt e circa 340 mq disposti su due livelli a destinazione commer […]
LEGGI ANCORA
- prezzo medio locale commerciale a Bientina : 963 €/m²
Vendesi capannone industriale a Bientina
Proposto da:
capannone 160.000 €
Capannone artigianale/commerciale soluzione (A ), situato a Bientina, in zona ben visibile ad alto flusso veicolare. Con una superficie di 780 metri quadrati coperti, suddivisi in circa 440 mq a destinazione artigianale con altezza 4,80 mt e circa 340 mq disposti su due livelli a destinazione commerciale […]
LEGGI ANCORA
- prezzo medio locale commerciale a Bientina : 963 €/m²
Capannone industriale in vendita a Bientina
capannone 500.000 €
BIENTINA - Fronte Strada di grande scorrimento, Capannone Artigianale di complessivi mq. 1.400, di cui mq. 1000 laboratorio e servizi al piano terra, e mq. 400 Uffici e Appartamento dispostio al piano terra e primo. Provvisto di tutti gli impianti. L'immobile richiede lavori di ammodernamento. Ampio piaz […]
LEGGI ANCORA
- prezzo medio locale commerciale a Bientina : 963 €/m²
Terreno in vendita a Bientina, Bientina PREMIUM
Capannone artigianale in vendita a Bientina 685 mq Rif: 1095669
capannone 375.000 €
Cod.11360 - CAPANNONE INDUSTRIALE DI MQ. 685, INDIPENDENTE CON RESEDE ESCLUSIVO RECINTATO SU 4 LATI Bientina, ZONA INDUSTRIALE, Capannone artigianale con al piano terra ampio laboratorio e servizi igienici, uffici e al piano primo Appartamento per abitazione Classe energetica: In attesa di certificazione […]
LEGGI ANCORA
- prezzo medio appartamento a Bientina : 1978 €/m²
- prezzo medio locale commerciale a Bientina : 963 €/m²
Capannone industriale in vendita a Bientina via del Tiglio, 135
capannone 850.000 €
BIENTINA (PI) – ESCLUSIVO CAPANNONE CON PALAZZINA UFFICI IN OTTIMA POSIZIONE FRONTE STRADA. Se Siete alla ricerca di un Capannone Indipendente con Uffici di rappresentanza in Vendita, Questo è l'immobile perfetto per voi!! L'immobile vanta una superficie complessiva di mq. 1470 così composta: Il Capannon […]
LEGGI ANCORA
- prezzo medio locale commerciale a Bientina : 963 €/m²
Capannone industriale in vendita a Bientina
capannone 420.000 €
BIENTINA- CAPANNONE Zona Industriale , VENDITA CAPANNONE ARTIGIANALE in posizione Angolare, corredato di piazzale Esclusivo - Il Capannone vanta una altezza di ml. 5,40, con una superficie totale di mq. 755; a piano terra trovasi Laboratorio, Magazzino, doppi servizi con antibagno con una superficie di m […]
LEGGI ANCORA
- prezzo medio locale commerciale a Bientina : 963 €/m²
- prezzo medio ufficio a Bientina : 1450 €/m²
Non perdere gli altri 24 annunci!









