Valutazione immobiliare indipendente, accurata e gratuita
Appartamento in vendita a Virle Piemonte a 185.000 € (cod.65057c06)
Caasa non ha sufficienti informazioni per commentare l'appartamento in vendita a Virle Piemonte - 65057c06.
Analisi immobiliare
I dati in posseso di Caasa per quest'immobile sono insufficienti, inaffidabili o contraddittori per proporre un'analisi attendibile.
Mercato immobiliare a Virle Piemonte
Per quanto riguarda più in generale il comune di Virle Piemonte, sono presenti al momento più di venti annunci per
appartamenti in vendita (meno dell'1% dell'intera provincia) .
Possiamo inoltre considerare che in tutto il comune negli ultimi 6 mesi, i prezzi per appartamenti in vendita sono
in sostanziale calo (-5,76%).
NOVITÀ Il risultato che vedi dipende dai dati che siamo riusciti ad estrarre dall'annuncio: ottieni una stima più accuranta di questo immobile, inserendo dati più precisi.
N.B. L'Opinione di Caasa® è un servizio sperimentale realizzato tramite tecniche di Intelligenza Artificiale, fornito senza alcuna garanzia di correttezza e completezza. Leggi il disclaimer o segnalaci un problema.
IMMAGINI
IN SINTESI
PROPOSTO DA:
ABYTARE - Ag. Carignano - IMMOBILIARE FENICE s.n.c di Famulari Paolo & C
Via F. Salotto 1/A, Carignano (TO)
DESCRIZIONE
con giardino con cantina con termocondizionamento con riscaldamento autonomo
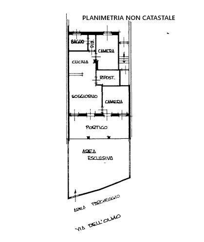
La tua casa da ABYTARE "Iris" In posizione tranquilla e residenziale proponiamo appartamento al piano terra in contesto bifamiliare, senza spese condominiali e riscaldamento autonomo. L’ingresso si apre su un ampio soggiorno living con cucina a vista, ambiente unico e luminoso, perfetto per chi ama gli spazi aperti e conviviali. La zona notte è composta da due camere da letto, uno spazioso bagno con box doccia angolare e comodo ripostiglio. All’esterno una splendida area privata: giardino sfruttabile tutto l’anno e un portico coperto ideale per pranzi, cene, aperitivi, relax Un appartamento che coniuga comfort, privacy e spazi esterni vivibili, perfetto per chi cerca un’oasi di serenità senza rinunciare alla praticità. Se questa soluzione fa al caso tuo, siamo sempre a disposizione sui nostri social Facebook e Instagram chiamaci 333.1824695 mail carignano@abytare.com


