Valutazione immobiliare indipendente, accurata e gratuita
Appartamento in vendita a Villastellone a 22.500 € (cod.64ad2e12)
Caasa non ha sufficienti informazioni per commentare l'appartamento in vendita a Villastellone - 64ad2e12.
Analisi immobiliare
I dati in posseso di Caasa per quest'immobile sono insufficienti, inaffidabili o contraddittori per proporre un'analisi attendibile.
Mercato immobiliare a Villastellone
Per quanto riguarda più in generale il comune di Villastellone, sono presenti al momento più di cinquanta annunci per
appartamenti in vendita (meno dell'1% dell'intera provincia) .
Possiamo inoltre considerare che in tutto il comune negli ultimi 6 mesi, i prezzi per appartamenti in vendita sono
in deciso calo (-7,54%).
NOVITÀ Il risultato che vedi dipende dai dati che siamo riusciti ad estrarre dall'annuncio: ottieni una stima più accuranta di questo immobile, inserendo dati più precisi.
N.B. L'Opinione di Caasa® è un servizio sperimentale realizzato tramite tecniche di Intelligenza Artificiale, fornito senza alcuna garanzia di correttezza e completezza. Leggi il disclaimer o segnalaci un problema.
IMMAGINI
IN SINTESI
DESCRIZIONE
con cantina con balcone con termocondizionamento con terrazza in asta giudiziaria con ascensore con angolo cottura
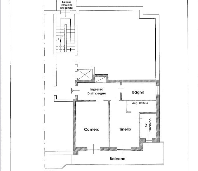
Al piano quarto (5° f.t.), alloggio composto da: ingresso-disimpegno, tinello con angolo cottura, una camera, locale ex cucinino, bagno e balcone, al piano interrato cantina. - Il Prezzo visualizzato è la Base d'Asta in quanto l'immobile è oggetto di […]
