Valutazione immobiliare indipendente, accurata e gratuita
Locale di sgombero in vendita a Trofarello a 160.000 € (cod.652d1f90)
Caasa non ha sufficienti informazioni per commentare il locale di sgombero in vendita a Trofarello - 652d1f90.
Analisi immobiliare
I dati in posseso di Caasa per quest'immobile sono insufficienti, inaffidabili o contraddittori per proporre un'analisi attendibile.
Mercato immobiliare a Trofarello
Per quanto riguarda più in generale il comune di Trofarello, sono presenti al momento più di venti annunci per
locali di sgombero in vendita (meno dell'1% dell'intera provincia)
e il maggior numero di annunci per questa tipologia sono relativi alla zona di Valle Sauglio.
Vedi altre informazioni direttamente su
Mercato-Immobiliare.info
NOVITÀ Il risultato che vedi dipende dai dati che siamo riusciti ad estrarre dall'annuncio: ottieni una stima più accuranta di questo immobile, inserendo dati più precisi.
N.B. L'Opinione di Caasa® è un servizio sperimentale realizzato tramite tecniche di Intelligenza Artificiale, fornito senza alcuna garanzia di correttezza e completezza. Leggi il disclaimer o segnalaci un problema.
IMMAGINI
IN SINTESI
DESCRIZIONE
di recente costruzione con giardino di recente costruzione
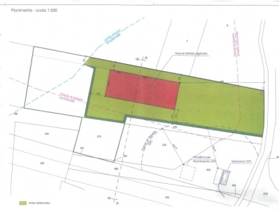
TETTOIA AGRICOLA CON ANNESSO TERRENO _ in posizione visibile dall'autostrada TO-PC e dalla Provinciale 29VAR (circonvallazione Trofarello-Cambiano), proponiamo in vendita tettoia agricola di circa mq 980, costruita nell'anno 2010 _ con struttura in cemento prefabbricato e copertura tetto con manto di lamiera coibentata in color laterizio_ entrostante superficie di terreno agricolo di mq 7.420 _ (volendo altri due lotti di terreno adiacenti per una superficie totale di circa mq 7.300 _ Accessibile tramite strada sterrata comunque comoda, dalla zona industriale del paese _ Il terreno seminativo è pianeggiante, adatto a diversi usi agricoli. Possibilità ALLACCIO ACQUA E LUCE _Possibilità di chiusura della tettoia (attualmente aperta) con muri di tamponamento _ Caratteristiche: Tettoia agricola regolarmente accatastata (D/10) - Ampio terreno di pertinenza - Contesto riservato - Ideale per uso ovviamente agricolo ma anche hobbistico. Richiesta Euro 160.000,00 _. - Immobile non soggetto all'obbligo di certificazione energetica

