Valutazione immobiliare indipendente, accurata e gratuita
Appartamento in vendita a Torino in zona Lucento a 31.275 € (cod.650485f3)
Caasa non ha sufficienti informazioni per commentare l'appartamento in vendita a Torino in zona Lucento - 650485f3.
Analisi immobiliare
I dati in posseso di Caasa per quest'immobile sono insufficienti, inaffidabili o contraddittori per proporre un'analisi attendibile.
Mercato immobiliare a Torino
Per quanto riguarda più in generale la città di Torino, sono presenti al momento ben oltre 10.000 annunci per
appartamenti in vendita (quasi il 40% dell'intera provincia)
e il maggior numero di annunci per questa tipologia sono relativi alla zona di Centro Storico, mentre nella zona di Lucento è presente un numero significativamente inferiore di annunci.
La richiesta media nella zona dove sorge l'appartamento (Lucento) è pari a
1.595 €/m², di poco superiore al valore della zona Falchera che è la più economica della città .
La dinamica dei prezzi in tutta la città mostra che negli ultimi 6 mesi, i prezzi per appartamenti in vendita sono
in deciso aumento (+8,66%).
NOVITÀ Il risultato che vedi dipende dai dati che siamo riusciti ad estrarre dall'annuncio: ottieni una stima più accuranta di questo immobile, inserendo dati più precisi.
N.B. L'Opinione di Caasa® è un servizio sperimentale realizzato tramite tecniche di Intelligenza Artificiale, fornito senza alcuna garanzia di correttezza e completezza. Leggi il disclaimer o segnalaci un problema.
IMMAGINI
IN SINTESI
PROPOSTO DA:
HOME AND BUSINESS PROJECT
DESCRIZIONE
con balcone con cortile in asta giudiziaria con possibilità di mutuo
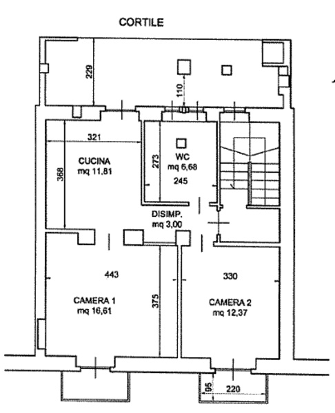
In Comune di Torino, Via Forlì n.146 al piano primo (2 f.t.): appartamento dotato di doppia aria composto da ingresso, cucina, due camere, bagno, e tre balconi posto alle coerenze di: via Forlì, altra ui, (via Forlì 144), cortile, vuoto su altra u.i. (via Forlì 148). L’unità immobiliare è posta all’interno di un fabbricato di civile abitazione, elevato a due piani fuori terra oltre piano sottotetto ed interrato. Cantiere on abitabile Le fotografie allegate hanno finalità puramente illustrative e potrebbero non rappresentare in modo esaustivo l’immobile. L’esattezza di tutti i dati pubblicati sarà verificata e confermata in sede di consulenza. ? Acquistare un immobile all’asta con serenità Se desidera valutare l’acquisto di un immobile in asta in totale trasparenza e sicurezza, si affidi alla nostra competenza e serietà. Offriamo un supporto completo al Cliente, accompagnandolo a 360° lungo tutto il percorso tecnico e finanziario, dalla scelta dell’immobile alla partecipazione alla gara d’asta. ? Consulenza gratuita Contattaci per una consulenza gratuita presso il nostro studio. Gli immobili acquistati tramite aste giudiziarie sono mutuabili e finanziabili alle stesse condizioni di quelli presenti sul mercato libero. ? I nostri servizi Ci dedichiamo con passione e professionalità a: Aste giudiziarie Compravendita immobiliare (residenziale, commerciale e industriale) Cessione d’azienda Il nostro obiettivo è offrire un servizio efficace, su misura e orientato ai risultati. ? Nota per investitori La nostra strategia si focalizza sull’acquisizione a forte sconto di crediti ipotecari e NPL (Non Performing Loans), oggi tra le opportunità di investimento più interessanti. Proponiamo due modalità operative: Saldo e stralcio immobiliare Asta pilotata remissiva stragiudiziale

