Valutazione immobiliare indipendente, accurata e gratuita
L'Opinione di Caasa® per l'appartamento in vendita a Torino in zona Campidoglio a 380.000 € (cod.650172c8)
Secondo Caasa, per l'appartamento a Torino in zona Campidoglio, la richiesta di 380.000 € è significativamente vantaggiosa rispetto agli annunci simili.
Analisi immobiliare
L'appartamento, situato nei pressi di Corso Svizzera nella zona OMI C8, è proposto in vendita a
380.000 € per una
superficie commerciale di
192 m² e quindi ad un prezzo per metro quadrato pari a
1979 €/m²
.
Questo valore
è significativamente più basso di quello stimato da Caasa per immobili in vendita simili per tipologia e caratteristiche e localizzati nella stessa zona OMI, che è compreso tra
2.377 €/m² e
2.569 €/m².
Grazie alla conoscenza con buona approssimazione della localizzazione dell'immobile, è stato possibile utilizzare come raffronto i dati medi elaborati esattamente nella zona OMI di appertenenza (SAN DONATO) per appartamenti (da 1.750 €/m² a 2.845 €/m²) e per attici (da 1.865 €/m² a 3.050 €/m²). Anche se Caasa non è riuscita a determinare la classe energetica, ad affinare la stima ha contribuito anche la presenza di alcune caratteristiche significative come la presenza dell'ascensore. Per questi motivi l'intervallo dei valori accettabili per l'offerta è relativamente limitato.
Mercato immobiliare a Torino
Per quanto riguarda più in generale la città di Torino, sono presenti al momento ben oltre 10.000 annunci per
appartamenti in vendita (quasi il 40% dell'intera provincia)
e il maggior numero di annunci per questa tipologia sono relativi alla zona di Centro Storico, mentre la zona di Campidoglio risulta molto meno attiva considerando il numero di annunci presenti.
La richiesta media nella zona dove sorge l'appartamento (Campidoglio pressi Corso Svizzera) è pari a
2.250 €/m², non troppo distante dai valori medi cittadini per appartamenti in vendita.
Per quanto riguarda la dinamica dei prezzi, negli ultimi 6 mesi i prezzi medi in tutta la città per appartamenti in vendita sono
in aumento (+4,59%).
NOVITÀ Il risultato che vedi dipende dai dati che siamo riusciti ad estrarre dall'annuncio: ottieni una stima più accuranta di questo immobile, inserendo dati più precisi.
N.B. L'Opinione di Caasa® è un servizio sperimentale realizzato tramite tecniche di Intelligenza Artificiale, fornito senza alcuna garanzia di correttezza e completezza. Leggi il disclaimer o segnalaci un problema.
IMMAGINI
IN SINTESI
DESCRIZIONE
con ascensore con cortile con giardino
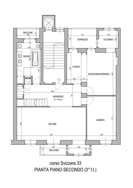
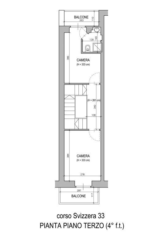
Da Privato. Privato vende appartamento signorile di ampia metratura, con doppia esposizione, distribuito su due livelli collegati da comoda scala interna. L’alloggio è composto al piano secondo da ingresso aperto su salone doppio, soggiorno/pranzo con cucinotta, studio, camera e bagno molto grande. Al piano terzo, camera e cameretta con bagno privato. Marmo rosa nell’ingresso e salone, palchetto nelle camere e nel soggiorno. Lo stabile, ben tenuto nelle parti comuni, è dotato di ascensore e cortile interno piantumato. Immerso nel vivace quartiere Campidoglio, gode di ottimo affaccio sul viale alberato di corso Svizzera; molto comodo ai servizi commerciali della zona e alle scuole, si trova a soli 300 mt. dalla fermata “RACCONIGI” della metropolitana e a pochi passi da giardino pubblico attrezzato. Possibilità di suddivisione in due unità grazie al doppio accesso già esistente al piano secondo. ASTENERSI AGENZIE

