Valutazione immobiliare indipendente, accurata e gratuita
L'Opinione di Caasa® per l'appartamento in affitto a Torino in zona Crocetta a 1.350 € mese (cod.65570198)
Secondo Caasa, per l'appartamento in affitto a Torino in zona Crocetta, la richiesta di 1.350 € mese è significativamente vantaggiosa rispetto agli annunci simili.
Analisi immobiliare
L'appartamento, situato nei pressi di Piazza Madama Cristina nella zona OMI B8, è proposto in affitto a
1.350 € mese per una
superficie commerciale di
75 m² e quindi ad un prezzo per metro quadrato pari a
18 €/m²
.
Questo valore
è significativamente più basso di quello stimato da Caasa per immobili in affitto simili per tipologia, caratteristiche, classe energetica e localizzati nella stessa zona OMI, che è compreso tra
20,6 €/m² mese e
22 €/m² mese.
La conoscenza con buona approssimazione della localizzazione dell'immobile ha consentito di utilizzare come raffronto i dati medi elaborati esattamente nella zona OMI di appertenenza (SAN SALVARIO) per appartamenti (da 9,4 €/m² mese a 17,8 €/m² mese) e per bivani (da 10,1 €/m² mese a 18,1 €/m² mese). Inoltre, Caasa ha potuto affinare la stima anche con la conoscenza della classe energetica (A+) oltre che dello stato dell'immobile (di recente ristrutturazione) e di alcune caratteristiche significative come l'arredamento, la disponibilità di una cantina o la presenza dell'ascensore. Per questi motivi è possibile considerare un intervallo di valori accettabili per l'offerta abbastanza limitato.
Mercato immobiliare a Torino
Per quanto riguarda più in generale la città di Torino, sono presenti al momento ben oltre 5.000 annunci per
appartamenti in affitto (più di due terzi dell'intera provincia)
e il maggior numero di annunci per questa tipologia sono relativi alla zona di Centro Storico, mentre nella zona di Crocetta è presente un numero significativamente inferiore di annunci.
La richiesta media nella zona dove sorge l'appartamento (Crocetta pressi Piazza Madama Cristina) è pari a
13,9 €/m² mese, molto vicina ai valori della zona Centro Storico che sono i più alti della città .
Per quanto riguarda la dinamica dei prezzi, negli ultimi 6 mesi i prezzi medi in tutta la città per appartamenti in affitto sono
in sostanziale aumento (+5,81%).
NOVITÀ Il risultato che vedi dipende dai dati che siamo riusciti ad estrarre dall'annuncio: ottieni una stima più accuranta di questo immobile, inserendo dati più precisi.
N.B. L'Opinione di Caasa® è un servizio sperimentale realizzato tramite tecniche di Intelligenza Artificiale, fornito senza alcuna garanzia di correttezza e completezza. Leggi il disclaimer o segnalaci un problema.
IMMAGINI
IN SINTESI
PROPOSTO DA:
Solocasebelle
DESCRIZIONE
di recente ristrutturazione con arredamento con termocondizionamento di recente ristrutturazione con balcone con ascensore con terrazza con cantina edificio storico di recente costruzione
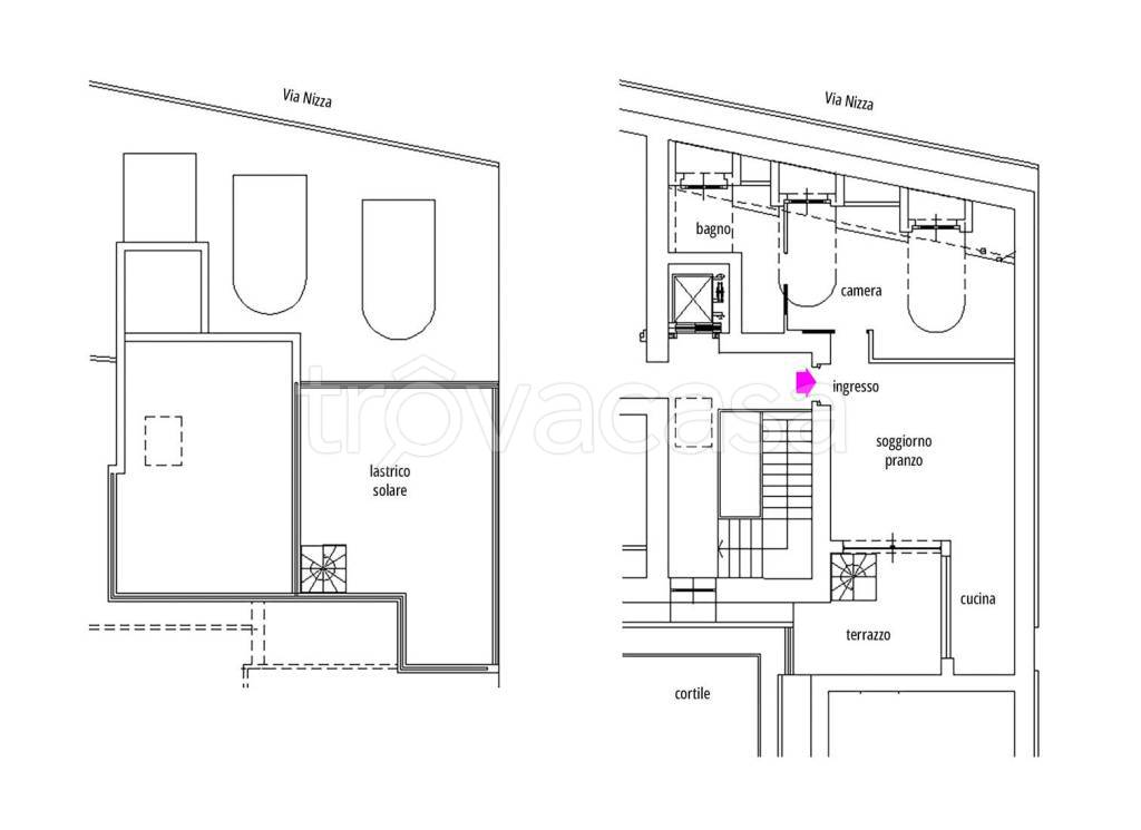
Torino-San Salvario, in Via Nizza a fianco della stazione di Porta Nuova, al 5° piano di un edificio ottocentesco completamente rinnovato e ammodernato nelle parti comuni nel 2020/21, affittiamo elegante appartamento ristrutturato e completamente arredato di 75 mq comm. li con terrazzo e lastrico solare. L'appartamento è composto da ingresso su soggiorno-pranzo, angolo con cucinino, camera da letto mansardata con 2 abbaini-balconcini, bagno con abbaino, terrazzo, scala sul terrazzo porta al lastrico solare. Doppio affaccio; porta blindata; pavimenti sono in parquet; infissi in pvc con doppi vetri; arredi moderni ed eleganti; in cucina fornello a induzione; acqua calda e riscaldamento, con ventilconvettori, centralizzati con teleriscaldamento; aria condizionata centralizzata; il terrazzo ha una bella vista verso le colline. La cantina completa l'offerta. Appartamento libero da Aprile 2026. Il palazzo ha l'ascensore ed è stato ristrutturato con grande attenzione nel mantenere i dettagli originali d'epoca e nella scelta di materiali, impianti e strutture con elevati standard di salvaguardia energetica. San Salvario, dove si trova il palazzo di Via Nizza 21, è un quartiere storico di Torino adiacente al Centro e tra i più verdi della città grazie al Parco del Valentino, che ne segna uno dei confini. Cuore del quartiere è Piazza Madama Cristina, con le sue botteghe artigiane e gastronomiche e il vivace mercato che anima la piazza nei giorni feriali. Il passaggio della Metropolitana sotto Via Nizza con varie fermate fa di San Salvario uno dei quartieri di Torino più comodi dove vivere



