Valutazione immobiliare indipendente, accurata e gratuita
Appartamento in affitto a Torino in zona Regio Parco a 720 € mese (cod.64f9608a)
Caasa non ha sufficienti informazioni per commentare l'appartamento a Torino in zona Regio Parco - 64f9608a.
Analisi immobiliare
I dati in posseso di Caasa per quest'immobile sono insufficienti, inaffidabili o contraddittori per proporre un'analisi attendibile.
Mercato immobiliare a Torino
Per quanto riguarda più in generale la città di Torino, sono presenti al momento ben oltre 3.000 annunci per
appartamenti in affitto (più della metà dell'intera provincia)
e il maggior numero di annunci per questa tipologia sono relativi alla zona di Centro Storico, mentre la zona di Regio Parco risulta molto meno attiva considerando il numero di annunci presenti.
La richiesta media nella zona dove sorge l'appartamento (Regio Parco) è pari a
12 €/m² mese, non troppo distante dai valori medi cittadini per appartamenti in affitto.
Possiamo inoltre considerare che in tutta la città negli ultimi 6 mesi, i prezzi per appartamenti in affitto sono
in calo (-3,52%).
NOVITÀ Il risultato che vedi dipende dai dati che siamo riusciti ad estrarre dall'annuncio: ottieni una stima più accuranta di questo immobile, inserendo dati più precisi.
N.B. L'Opinione di Caasa® è un servizio sperimentale realizzato tramite tecniche di Intelligenza Artificiale, fornito senza alcuna garanzia di correttezza e completezza. Leggi il disclaimer o segnalaci un problema.
IMMAGINI
IN SINTESI
PROPOSTO DA:
In.Coop.Casa Soc. Coop.
DESCRIZIONE
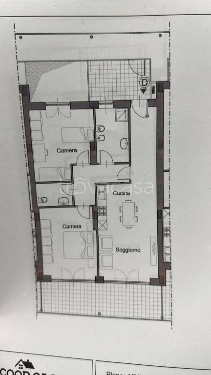
di nuova costruzione con termocondizionamento con terrazza con cantina di nuova costruzione con posto auto
A Torino, In.Coop.Casa Soc. Coop. propone in assegnazione ai soci, 25 unità abitative di varie metrature con cantina, box e posto auto privato, nel complesso di nuova costruzione in Via Botticelli, 75. Canoni sostenibili e ridotte spese condominiali con contratto a tempo indeterminato e futura opzione di acquisto. /A4. Assenza di barriere architettoniche. Adiacente Al centro commerciale Coop, di cui beneficia del sistema di vigilanza. Alloggi ampi e luminosi con terrazzo, videocitofono e termoregolazione autonoma. Incluso nel canone di affitto Box auto e cantina nell'area condominiale situata al piano terra. Riscaldamento centralizzato gestibile con termostato individuale, acqua calda generata dal condominio. L'edificio è provvisto di pompa di calore e fotovoltaico per i consumi condominiali. “Residenza Botticelli”, edificio residenziale composto complessivamente da n. 25 appartamenti, n. 25 cantine e n. 25 box auto. L’edificio si articola su 4 piani fuori terra (dal piano 0 al piano 3). Sono composti da n. 2 scale esterne, con tipologia di alloggi a ringhiera, per un totale di n. 25 alloggi cadauno disposti su 3 piani (dal piano 1 al piano terzo). Al piano terra e piano si trovano i box pertinenziali e le cantine. Ogni alloggio è dotato di box e cantina privati. Sono disponibili locali comuni da adibire a servizi per inquilini (esempio ricovero bici, ecc). Intorno ai due edifici, è presente un’area parcheggio condominiale. Tutta l’area perimetrale sarà dotata di sistema di videosorveglianza collegato ad una società di vigilanza privata. I 25 appartamenti sono di differente metratura (da 2 o 3 camere da letto). L’edificio è realizzato in (su una scala da G a A4). I destinatari dell’intervento potranno usufruire di alloggi nuovi, a canoni di affitto calmierati in forza della Convenzione con il Comune di Torino, e costruiti nel rispetto delle attuali normative ambientali che contribuiranno a ridurre i consumi energetici e un conseguente risparmio economico per gli abitanti. Gli immobili, inoltre, sono in gr[…]

