Valutazione immobiliare indipendente, accurata e gratuita
Appartamento in vendita a San Mauro Torinese a 42.900 € (cod.65558cd2)
Caasa non ha sufficienti informazioni per commentare l'appartamento in vendita a San Mauro Torinese - 65558cd2.
Analisi immobiliare
I dati in posseso di Caasa per quest'immobile sono insufficienti, inaffidabili o contraddittori per proporre un'analisi attendibile.
Mercato immobiliare a San Mauro Torinese
Per quanto riguarda più in generale la città di San Mauro Torinese, sono presenti al momento più di 200 annunci per
appartamenti in vendita (meno dell'1% dell'intera provincia)
e il maggior numero di annunci per questa tipologia sono relativi alla zona di Oltre Po.
Possiamo inoltre considerare che in tutta la città negli ultimi 6 mesi, i prezzi per appartamenti in vendita sono
in debole aumento (+1,72%).
NOVITÀ Il risultato che vedi dipende dai dati che siamo riusciti ad estrarre dall'annuncio: ottieni una stima più accuranta di questo immobile, inserendo dati più precisi.
N.B. L'Opinione di Caasa® è un servizio sperimentale realizzato tramite tecniche di Intelligenza Artificiale, fornito senza alcuna garanzia di correttezza e completezza. Leggi il disclaimer o segnalaci un problema.
IMMAGINI
IN SINTESI
PROPOSTO DA:
Quimmo
DESCRIZIONE
con ascensore senza ascensore in asta giudiziaria
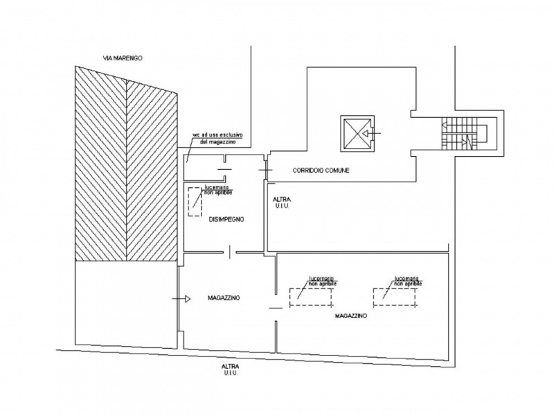
Quest'immobile viene venduto tramite asta online. Magazzino al piano interrato sito a San Mauro Torinese (TO), in via Marengo n.10. Trattasi di ampio magazzino situato al piano seminterrato di un edificio condominiale di quattro piani fuori terra oltre uno interrato, ubicato in zona semiperiferica a destinazione prevalentemente residenziale. Il bene, dotato rampa carrabile ad uso esclusivo e collegamento interno al vano scala condominiale dotato di ascensore, è composto da due locali principali ad uso magazzino, oltre a disimpegno e bagno. Gli ambienti presentano pavimentazione in cemento lisciato nelle aree di deposito e rivestimenti in ceramica nelle zone di servizio, sono presenti impianto elettrico fuori traccia, impianto idrico-sanitario e sistema di allarme antintrusione. Per maggiori informazioni vedasi documentazione allegata. Quimmo.it: iniziativa tech del Gruppo illimity specializzata nell'intermediazione digitale di beni immobili provenienti da tribunali, nuovi sviluppi immobiliari, financial institutions e libero mercato. Da oltre 10 anni Quimmo.it è il portale specializzato nella compravendita di immobili tramite asta giudiziaria. Il portale è infatti iscritto nel Registro Gestori della vendita telematica e nell'elenco dei siti web autorizzati allo svolgimento della pubblicità legale. Con Quimmo puoi scegliere tra migliaia di immobili di ogni tipo e partecipare alle aste online per acquistare la soluzione più adatta alle tue esigenze. Affidati all'esperienza decennale dei nostri esperti e richiedi l'assistenza gratuita per la presentazione e compilazione dell'offerta. Contattaci subito


