Valutazione immobiliare indipendente, accurata e gratuita
Appartamento in vendita a Rivoli a 101.250 € (cod.6589cf07)
Caasa non ha sufficienti informazioni per commentare l'appartamento in vendita a Rivoli - 6589cf07.
Analisi immobiliare
I dati in posseso di Caasa per quest'immobile sono insufficienti, inaffidabili o contraddittori per proporre un'analisi attendibile.
Mercato immobiliare a Rivoli
Per quanto riguarda più in generale la città di Rivoli, sono presenti al momento oltre 500 annunci per
appartamenti in vendita (meno del 5% dell'intera provincia)
e il maggior numero di annunci per questa tipologia sono relativi alla zona di Cascine Vica.
La dinamica dei prezzi in tutta la città mostra che negli ultimi 6 mesi, i prezzi per appartamenti in vendita sono
in leggero aumento (+2,31%).
NOVITÀ Il risultato che vedi dipende dai dati che siamo riusciti ad estrarre dall'annuncio: ottieni una stima più accuranta di questo immobile, inserendo dati più precisi.
N.B. L'Opinione di Caasa® è un servizio sperimentale realizzato tramite tecniche di Intelligenza Artificiale, fornito senza alcuna garanzia di correttezza e completezza. Leggi il disclaimer o segnalaci un problema.
IMMAGINI
IN SINTESI
PROPOSTO DA:
Quimmo
DESCRIZIONE
di recente costruzione con balcone con ascensore di recente costruzione in asta giudiziaria senza ascensore
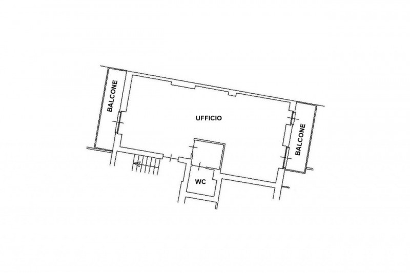
Quest'immobile viene venduto tramite asta online. Ufficio sito a Rivoli (TO). Il contesto è centrale con traffico regolare. La zona è urbanizzata, caratterizzata da edilizia mista con appartamenti, negozi, uffici e servizi. L'area è prossima al centro del paese e ben collegata alla fitta rete infrastrutturale periferica e a Torino. L'unità è parte del Complesso Immobiliare Rivoli Reale, struttura polifunzionale completata nel 2014. Agibilità rilasciata. Ingresso su Corso Susa 2L. Ufficio (sub 413) al piano primo, servito da vano scala condominiale e da ascensore. Vano singolo con bagno cieco disimpegnato e due balconcini sui lati liberi opposti. Ambiente allo stato grezzo avanzato, privo di pavimenti e impianti tecnologici. E' pertinenza dell'ufficio una cantinetta sottostrada (numero 361). Condizioni discrete. Presente materiale di vario genere. Superficie commerciale: 79,00 mq PIANO PRIMO Ufficio rustico con balconcini Identificazione: sigla 03_D12 Piena proprietà Immobile descritto nella perizia allegata come LOTTO 9 Offerta minima: 101250 EURO. Quimmo.it: iniziativa tech del Gruppo illimity specializzata nell'intermediazione digitale di beni immobili provenienti da tribunali, nuovi sviluppi immobiliari, financial institutions e libero mercato. Da oltre 10 anni Quimmo.it è il portale specializzato nella compravendita di immobili tramite asta giudiziaria. Il portale è infatti iscritto nel Registro Gestori della vendita telematica e nell'elenco dei siti web autorizzati allo svolgimento della pubblicità legale. Con Quimmo puoi scegliere tra migliaia di immobili di ogni tipo e partecipare alle aste online per acquistare la soluzione più adatta alle tue esigenze. Affidati all'esperienza decennale dei nostri esperti e richiedi l'assistenza gratuita per la presentazione e compilazione dell'offerta. Contattaci subito

