Valutazione immobiliare indipendente, accurata e gratuita
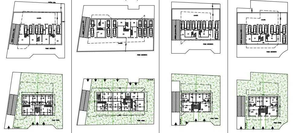
Casa indipendente in vendita a Rivalta di Torino (cod.647ff7ff)
Caasa non ha sufficienti informazioni per commentare la casa indipendente in vendita a Rivalta di Torino - 647ff7ff.
Analisi immobiliare
I dati in posseso di Caasa per quest'immobile sono insufficienti, inaffidabili o contraddittori per proporre un'analisi attendibile.
Mercato immobiliare a Rivalta di Torino
Per quanto riguarda più in generale la città di Rivalta di Torino, sono presenti al momento più di 200 annunci per
case indipendenti in vendita (meno del 5% dell'intera provincia)
e il maggior numero di annunci per questa tipologia sono relativi alla zona di Gerbole.
La dinamica dei prezzi in tutta la città mostra che negli ultimi 6 mesi, i prezzi per case indipendenti in vendita sono
in debole diminuzione (-1,47%).
NOVITÀ Il risultato che vedi dipende dai dati che siamo riusciti ad estrarre dall'annuncio: ottieni una stima più accuranta di questo immobile, inserendo dati più precisi.
N.B. L'Opinione di Caasa® è un servizio sperimentale realizzato tramite tecniche di Intelligenza Artificiale, fornito senza alcuna garanzia di correttezza e completezza. Leggi il disclaimer o segnalaci un problema.
IMMAGINI
IN SINTESI
PROPOSTO DA:
BIMAR S.A.S. DI IVANO ROSSI
