Valutazione immobiliare indipendente, accurata e gratuita
Appartamento in vendita ad Oulx a 295.000 € (cod.65671f20)
Caasa non ha sufficienti informazioni per commentare l'appartamento in vendita ad Oulx - 65671f20.
Analisi immobiliare
I dati in posseso di Caasa per quest'immobile sono insufficienti, inaffidabili o contraddittori per proporre un'analisi attendibile.
Mercato immobiliare ad Oulx
Per quanto riguarda più in generale il comune di Oulx, sono presenti al momento più di 200 annunci per
appartamenti in vendita (meno dell'1% dell'intera provincia)
e il maggior numero di annunci per questa tipologia sono relativi alla zona di Beaulard.
Per quanto riguarda la dinamica dei prezzi, negli ultimi 6 mesi i prezzi medi in tutto il comune per appartamenti in vendita sono
in calo (-3,73%).
NOVITÀ Il risultato che vedi dipende dai dati che siamo riusciti ad estrarre dall'annuncio: ottieni una stima più accuranta di questo immobile, inserendo dati più precisi.
N.B. L'Opinione di Caasa® è un servizio sperimentale realizzato tramite tecniche di Intelligenza Artificiale, fornito senza alcuna garanzia di correttezza e completezza. Leggi il disclaimer o segnalaci un problema.
IMMAGINI
IN SINTESI
PROPOSTO DA:
BIMAR S.A.S. DI IVANO ROSSI
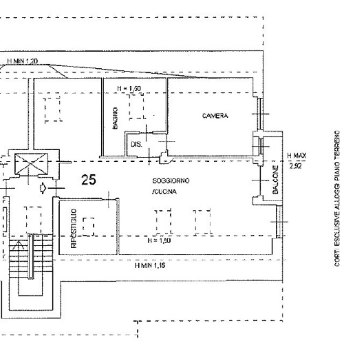
DESCRIZIONE
di recente ristrutturazione con posto auto con terrazza con balcone con cantina con termocondizionamento di recente ristrutturazione con cucina abitabile con ascensore
Nel cuore di Oulx, a pochi passi dal centro commerciale e dai collegamenti con la stazione, proponiamo luminoso attico che coniuga praticità abitativa e qualità della vista. L’immobile si trova all'ultimo piano di una palazzina completamente ristrutturata, in classe A+, con ascensore e basse spese condominiali. L’ingresso introduce direttamente al living: un unico ambiente di oltre 30 mq, con accesso diretto al balcone, orientato a sud-ovest domina la valle e la catena montuosa, con luce naturale per tutto l’arco della giornata. La camera matrimoniale è di generose dimensioni e può accogliere arredi di pregio; a servizio della zona notte un grande vano ripostiglio con armadi a muro su misura, risolve definitivamente il problema dello stivaggio. Il bagno, finestrato e con doccia in cristallo, ha finiture moderne ed eleganti. La cucina abitabile e molto luminosa viene lasciata completa di elettrodomestici nuovi. Il riscaldamento è autonomo a pavimento, la garantisce consumi contenuti. Completa la proprietà un posto auto privato. L’ubicazione consente di muoversi a piedi per la maggior parte delle necessità quotidiane, mentre in pochi minuti d’auto si raggiungono le piste da sci di Bardonecchia e Sestriere. L’appartamento è libero da vincoli di locazione e disponibile per un passaggio di proprietà rapido. Per informazioni chiamare: BIMAR S.A.S. TEL. 0122 831778 - 3351280836 E-MAIL: oulx@bimar.it



