Valutazione immobiliare indipendente, accurata e gratuita
Loft in vendita a Nichelino a 300.000 € (cod.6443ca81)
Caasa non ha sufficienti informazioni per commentare il loft in vendita a Nichelino - 6443ca81.
Analisi immobiliare
I dati in posseso di Caasa per quest'immobile sono insufficienti, inaffidabili o contraddittori per proporre un'analisi attendibile.
Mercato immobiliare a Nichelino
Per quanto riguarda più in generale la città di Nichelino, sono presenti al momento più di trenta annunci per
loft in vendita (meno del 5% dell'intera provincia)
e il maggior numero di annunci per questa tipologia sono relativi alla zona di Crociera.
Relativamente alla dinamica dei prezzi, possiamo dire che negli ultimi 6 mesi i prezzi medi in tutta la città per loft in vendita sono
in forte aumento (+11,42%).
NOVITÀ Il risultato che vedi dipende dai dati che siamo riusciti ad estrarre dall'annuncio: ottieni una stima più accuranta di questo immobile, inserendo dati più precisi.
N.B. L'Opinione di Caasa® è un servizio sperimentale realizzato tramite tecniche di Intelligenza Artificiale, fornito senza alcuna garanzia di correttezza e completezza. Leggi il disclaimer o segnalaci un problema.
IMMAGINI
IN SINTESI
DESCRIZIONE
di nuova costruzione di nuova costruzione
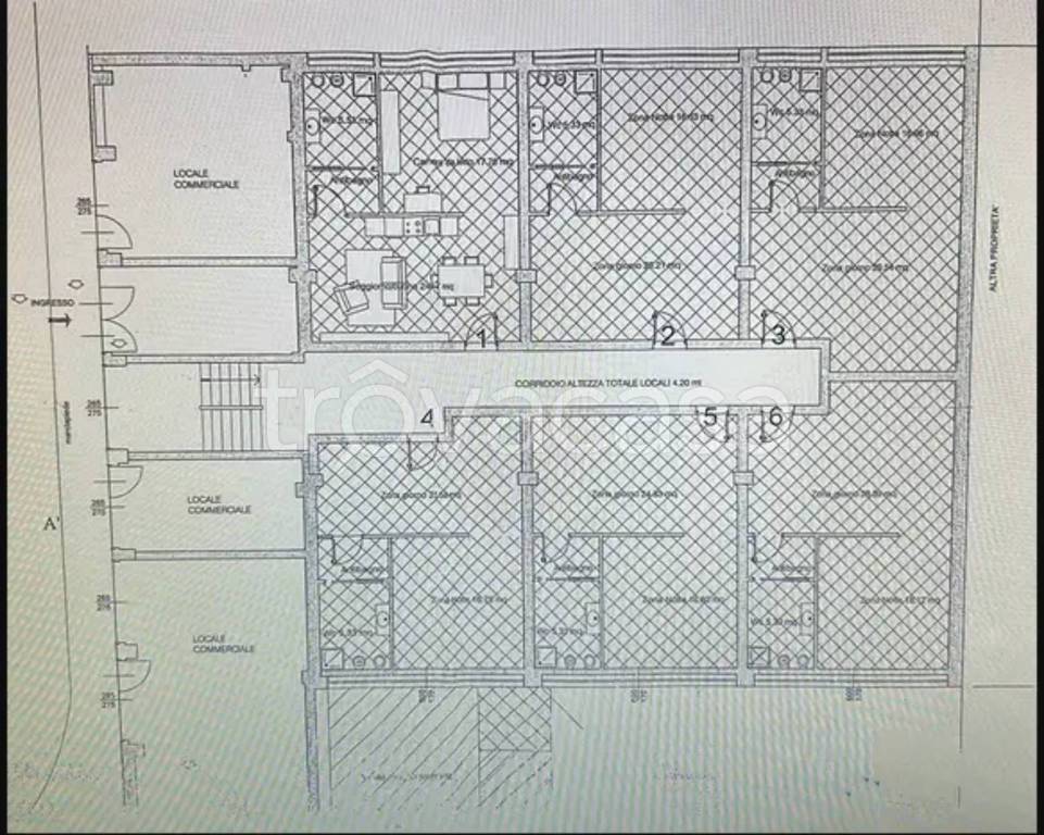
RIF. 376502 - Vendesi stabile di 1100 mq su più livelli. Al piano terreno misure 23 mt x 5,95 mt, possibilità di sviluppare o 4 attività commerciali o 4 unità abitative in stile loft. Un locale adiacente, sempre al piano terreno, con porta autonoma, finestrato e sfruttabile x usi diversi come loft di grossa metratura o altre attività commerciali; sono già presenti predisposizione carichi/scarichi. Piano rialzato n. 6 appartamenti al piano rialzato interno, di circa 60 mq cad con camera da letto, 16/18 mq Sala di circa 24/28 mq Anti bagno Bagno di 5,5 mq Già ACCATASTATI ( da ultimare) Al primo piano Possibilità di realizzazione di 1 oppure 2 appartamenti in area abitabile, di circa 110/115 mq, con 6 finestre. Misure superficie 22,50mt x 5,95 mt . Sotto tetto Possibilità di trasformare in mansarde, con predisposizioni impianti carico/scarico, mq tot 324 circa, Misure 20/30 mt x 16mt circa . Data la conformazione degli alloggi sono affittabili con semplicità : Studenti, comodo al raggiungimento centro di Torino con mezzi pubblici in circa 20 minuti Famiglie Portatori di handicap, Persone di terza età, autosufficienti , non distante vi è una RSA con la quale si possono stringere collaborazioni per assistenze esterne o affitti parenti.sfbc

