Valutazione immobiliare indipendente, accurata e gratuita
Casa indipendente in vendita a Montalto Dora a 29.000 € (cod.6533250d)
Caasa non ha sufficienti informazioni per commentare la casa indipendente in vendita a Montalto Dora - 6533250d.
Analisi immobiliare
I dati in posseso di Caasa per quest'immobile sono insufficienti, inaffidabili o contraddittori per proporre un'analisi attendibile.
Mercato immobiliare a Montalto Dora
Per quanto riguarda più in generale il comune di Montalto Dora, sono presenti al momento più di trenta annunci per
case indipendenti in vendita (meno dell'1% dell'intera provincia) .
Relativamente alla dinamica dei prezzi, possiamo dire che negli ultimi 6 mesi i prezzi medi in tutto il comune per case indipendenti in vendita sono
in forte calo (-34,06%).
NOVITÀ Il risultato che vedi dipende dai dati che siamo riusciti ad estrarre dall'annuncio: ottieni una stima più accuranta di questo immobile, inserendo dati più precisi.
N.B. L'Opinione di Caasa® è un servizio sperimentale realizzato tramite tecniche di Intelligenza Artificiale, fornito senza alcuna garanzia di correttezza e completezza. Leggi il disclaimer o segnalaci un problema.
IMMAGINI
IN SINTESI
PROPOSTO DA:
Affiliato tecnocasa: studio ivrea tre s.a.s.
VIA MAZZINI , 41, Montalto Dora (TO)
DESCRIZIONE
di recente ristrutturazione di recente ristrutturazione da ristrutturare
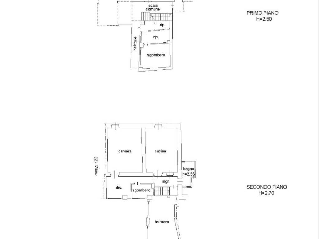
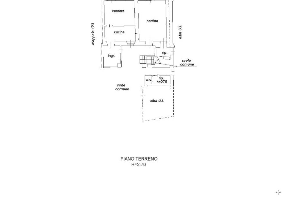
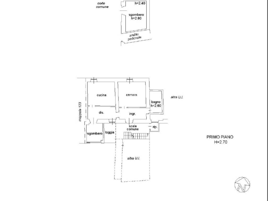
MONTALTO DORA: nel cuore del paese, proponiamo in vendita una casa di corte di 150 mq. Questa proprietà offre una soluzione versatile con due appartamenti distinti, perfetta per chi cerca un investimento immobiliare. La posizione centrale garantisce facile accesso a tutti i servizi del comune, rendendola una scelta pratica per residenti e affittuari. L'immobile necessita di ristrutturazione, offrendo l'opportunità di personalizzare gli spazi secondo le proprie esigenze e gusti. Un ulteriore vantaggio è l'assenza di spese condominiali, che consente di gestire la proprietà con maggiore libertà e controllo sui costi. Questa casa di corte rappresenta un'opportunità unica per chi desidera investire in una zona tranquilla ma ben collegata, con il potenziale di creare un ambiente abitativo su misura o di generare reddito attraverso l'affitto


