Valutazione immobiliare indipendente, accurata e gratuita
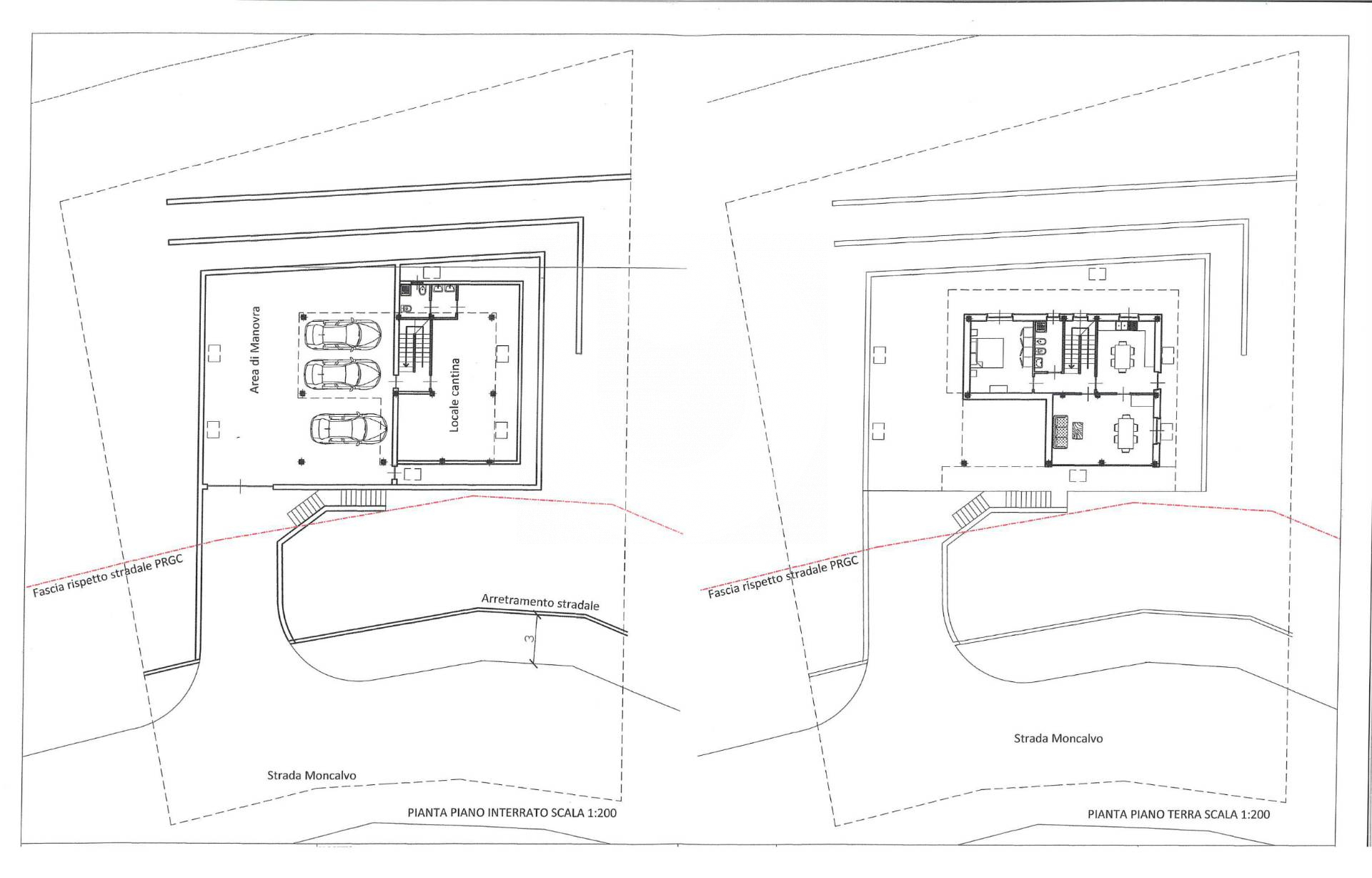
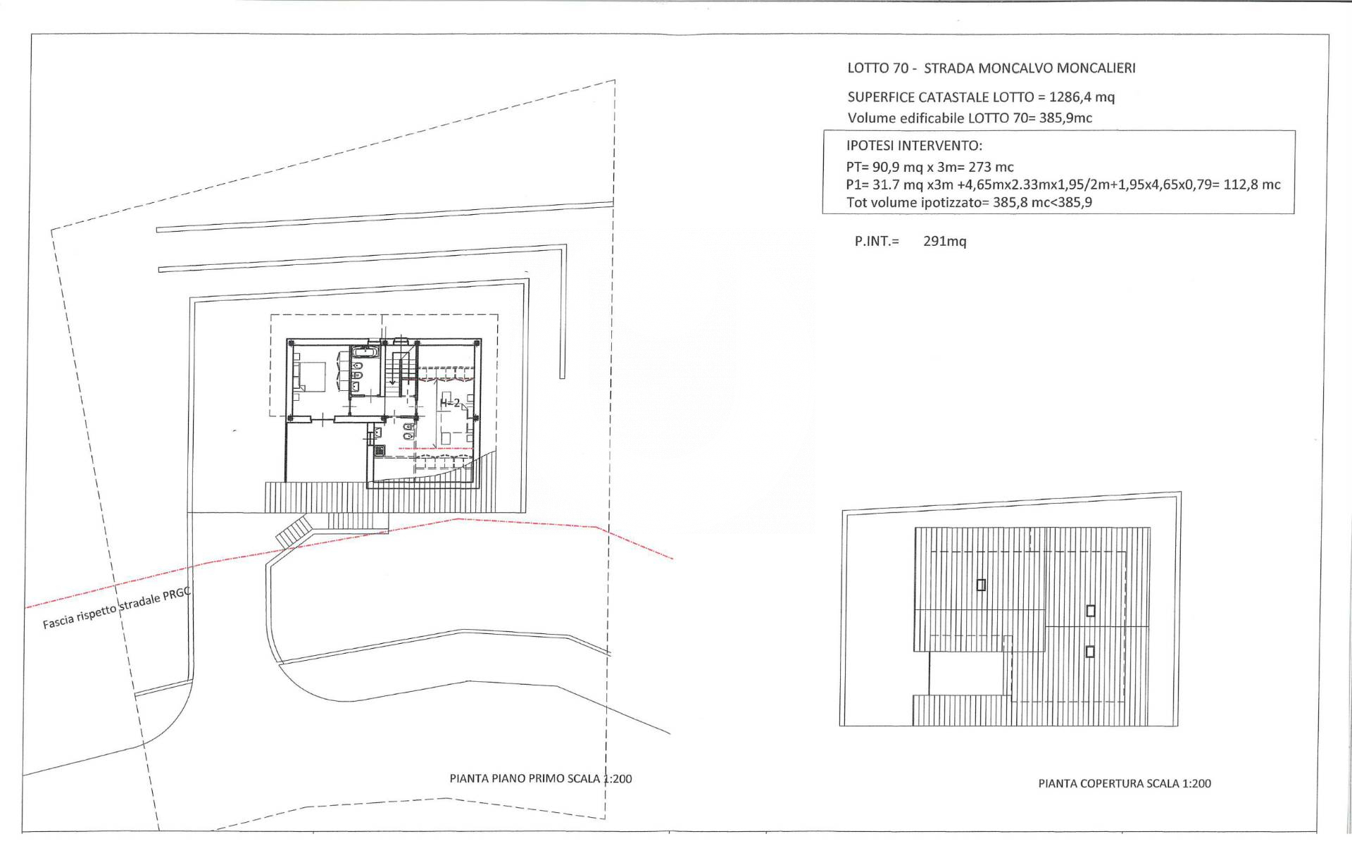
Casa indipendente in vendita a Moncalieri in zona Revigliasco (cod.65368585)
Caasa non ha sufficienti informazioni per commentare la casa indipendente a Moncalieri in zona Revigliasco - 65368585.
Analisi immobiliare
I dati in posseso di Caasa per quest'immobile sono insufficienti, inaffidabili o contraddittori per proporre un'analisi attendibile.
Mercato immobiliare a Moncalieri
Per quanto riguarda più in generale la città di Moncalieri, sono presenti al momento oltre 500 annunci per
case indipendenti in vendita (meno del 5% dell'intera provincia)
e il maggior numero di annunci per questa tipologia sono relativi proprio alla zona di Revigliasco.
La richiesta media nella zona dove sorge la casa indipendente (Revigliasco) è pari a
1.935 €/m², molto vicina ai valori della zona Testona che sono i più alti della città .
Relativamente alla dinamica dei prezzi, possiamo dire che negli ultimi 6 mesi i prezzi medi in tutta la città per case indipendenti in vendita sono
in forte aumento (+10,29%).
NOVITÀ Il risultato che vedi dipende dai dati che siamo riusciti ad estrarre dall'annuncio: ottieni una stima più accuranta di questo immobile, inserendo dati più precisi.
N.B. L'Opinione di Caasa® è un servizio sperimentale realizzato tramite tecniche di Intelligenza Artificiale, fornito senza alcuna garanzia di correttezza e completezza. Leggi il disclaimer o segnalaci un problema.
IMMAGINI
IN SINTESI
PROPOSTO DA:
IMMOBILIARE CHIUSANO - PARTNER UNICA
Via Pastrengo, 29, Torino (TO)
Verificata da Caasa®
