Valutazione immobiliare indipendente, accurata e gratuita
L'Opinione di Caasa® per l'appartamento in vendita a Leinì a 315.000 € (cod.659da769)
Secondo Caasa, per l'appartamento in vendita a Leinì, la richiesta di 315.000 € è significativamente svantaggiosa rispetto agli annunci simili.
Analisi immobiliare
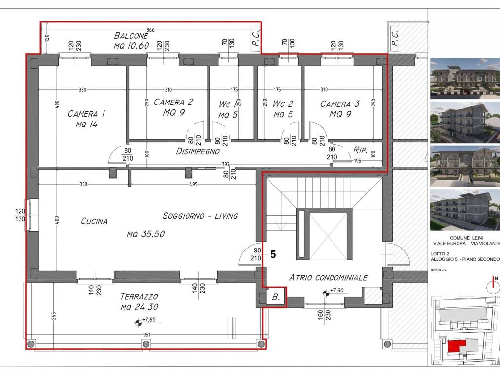
L'appartamento, situato nella zona OMI B1, è proposto in vendita (da LINEA CASA PIU) a
315.000 € per una
superficie commerciale di
127 m² e quindi ad un prezzo per metro quadrato pari a
2480 €/m²
.
Tale prezzo
è meno conveniente di quello stimato da Caasa per immobili in vendita simili per tipologia e caratteristiche e localizzati nella stessa zona OMI, che è compreso tra
1.891 €/m² e
2.033 €/m².
Grazie alla conoscenza con buona approssimazione della localizzazione dell'immobile, è stato possibile utilizzare come raffronto i dati medi elaborati esattamente nella zona OMI di appertenenza (VIA ROMA, S.COM.LEINI CASELLE, S.COM.LEINI SAN FRANCESCO AL CAMPO - CONCENTRI...). Anche se Caasa non è riuscita a determinare la classe energetica, ad affinare la stima ha contribuito anche lo stato dell'immobile (di nuova costruzione). In virtù di queste considerazioni i valori accettabili per l'offerta costituiscono un intervallo relativamente limitato.
Mercato immobiliare a Leinì
Per quanto riguarda più in generale la città di Leinì, sono presenti al momento più di 150 annunci per
appartamenti in vendita (meno dell'1% dell'intera provincia)
e il maggior numero di annunci per questa tipologia sono relativi alla zona di Tedeschi.
Relativamente alla dinamica dei prezzi, possiamo dire che negli ultimi 6 mesi i prezzi medi in tutta la città per appartamenti in vendita sono
in sostanziale aumento (+5,02%).
NOVITÀ Il risultato che vedi dipende dai dati che siamo riusciti ad estrarre dall'annuncio: ottieni una stima più accuranta di questo immobile, inserendo dati più precisi.
N.B. L'Opinione di Caasa® è un servizio sperimentale realizzato tramite tecniche di Intelligenza Artificiale, fornito senza alcuna garanzia di correttezza e completezza. Leggi il disclaimer o segnalaci un problema.
