Valutazione immobiliare indipendente, accurata e gratuita
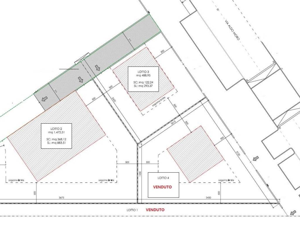
Terreno edificabile in vendita a La Loggia (cod.6544dd9c)
Caasa non ha sufficienti informazioni per commentare il terreno edificabile in vendita a La Loggia - 6544dd9c.
Analisi immobiliare
I dati in posseso di Caasa per quest'immobile sono insufficienti, inaffidabili o contraddittori per proporre un'analisi attendibile.
Mercato immobiliare a La Loggia
Per quanto riguarda più in generale il comune di La Loggia, sono presenti al momento meno di dieci annunci per
terreni edificabili in vendita (meno dell'1% dell'intera provincia) .
Vedi altre informazioni direttamente su
Mercato-Immobiliare.info
NOVITÀ Il risultato che vedi dipende dai dati che siamo riusciti ad estrarre dall'annuncio: ottieni una stima più accuranta di questo immobile, inserendo dati più precisi.
N.B. L'Opinione di Caasa® è un servizio sperimentale realizzato tramite tecniche di Intelligenza Artificiale, fornito senza alcuna garanzia di correttezza e completezza. Leggi il disclaimer o segnalaci un problema.
IMMAGINI
IN SINTESI
PROPOSTO DA:
IMMOBILIARE MULTIMEDIA SRL
