Valutazione immobiliare indipendente, accurata e gratuita
Negozio in affitto ad Ivrea a 500 € mese (cod.64fe0253)
Caasa non ha sufficienti informazioni per commentare il negozio in affitto ad Ivrea - 64fe0253.
Analisi immobiliare
I dati in posseso di Caasa per quest'immobile sono insufficienti, inaffidabili o contraddittori per proporre un'analisi attendibile.
Mercato immobiliare ad Ivrea
Per quanto riguarda più in generale la città di Ivrea, sono presenti al momento più di trenta annunci per
negozi in affitto (meno del 5% dell'intera provincia)
e il maggior numero di annunci per questa tipologia sono relativi alla zona di Bellavista.
Vedi altre informazioni direttamente su
Mercato-Immobiliare.info
NOVITÀ Il risultato che vedi dipende dai dati che siamo riusciti ad estrarre dall'annuncio: ottieni una stima più accuranta di questo immobile, inserendo dati più precisi.
N.B. L'Opinione di Caasa® è un servizio sperimentale realizzato tramite tecniche di Intelligenza Artificiale, fornito senza alcuna garanzia di correttezza e completezza. Leggi il disclaimer o segnalaci un problema.
IMMAGINI
IN SINTESI
DESCRIZIONE
da ristrutturare da ristrutturare
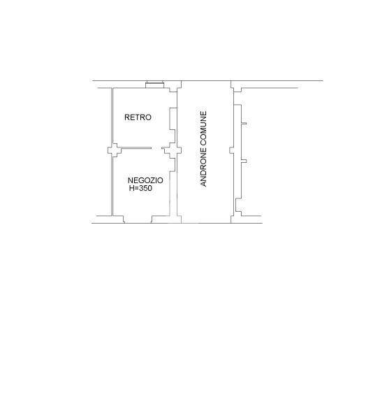
IVREA - COSA SAPERE DELL'IMMOBILE PER INFORMAZIONI ED APPUNTAMENTI CHIAMA 0125.223378 OPPURE WHATSAPP 331.8088138 Nel cuore del comune di Ivrea, proponiamo in locazione un negozio di 40 mq, ideale per chi desidera avviare la propria attività commerciale. DESCRIZIONE E PARTICOLARITA' Costruito nel 1960, l'immobile conserva il fascino dell'epoca, offrendo al contempo uno spazio funzionale e ben distribuito. UBICAZIONE E CONTESTO La posizione strategica garantisce un'ottima visibilità e un flusso costante di passanti, rendendolo perfetto per diverse tipologie di attività. L'interno è luminoso e accogliente, con vetrina che affaccia sulla strada principale, permettendo di esporre al meglio i propri prodotti o servizi. La struttura si presta a diverse personalizzazioni, consentendo di adattare lo spazio alle specifiche esigenze del proprio business. Un'opportunità unica per chi cerca un locale commerciale in una zona vivace e ben servita, nel contesto di una città ricca di storia e cultura


